查看完整案例


收藏

下载
建筑影响自然,自然也同样影响着建筑。除此之外,艺术也是本项目设计中的关键性因素,最终,16-0590-fmM独立住宅以极富美感的几何形态呈现出来,宛如一尊雕塑一般伫立在场地之上。在本项目中,BLAF Architects事务所以建筑的可建造性、可负担性、可持续发展性、能源消耗、经济效率为指导原则,为住宅赋予了简洁而有力的抽象几何形态外观。
Architecture has an influence on nature, and nature has an influence on our architecture. Art also influences our architecture. A sculpture forms the basis of this residential volume. In our quest for buildability, affordability, circular, energetic and economic efficiency, we allow ourselves to be guided by geometric abstraction.
▼项目外观,appearance
圆与方是建筑体量构成中的基本元素。住宅外墙由砖材砌筑,同时也构成了支撑屋顶的基本结构。木制框架以外科手术般的精准度穿插在巨大的几何体量之中,在保证整体建筑保温性能的同时,在立面上创建出开口,使外立面形成富有节奏感的虚实对比,形成室内空间与室外环境的交融。
Circle and square become form-retaining elements in masonry in volume. They form the basic structure that supports the roof. The wooden structure of the insulated volume perforates with surgical precision these massive volumes, creating an alternation of enclosed and open outdoor spaces.
▼北立面,north facade
▼南立面,south facade
▼圆与方是其体量构成中的基本元素,Circle and square become form-retaining elements in masonry in volume
砖墙承载着实心混凝土屋顶,内墙饰面、地面以及天花板均由木材制成。这种混合的建造方式,在最大程度上发挥出每种材料的特点与潜力,确保了建筑的高性能。除此之外,混合材料构成的永久性结构营造出不同的空间氛围与声学环境,为居住者带来丰富的空间体验。在本项目中,结构与材质都呈现出其最本真的姿态。
The brick volumes carry the solid concrete roof between the volumes, in the brick volumes the wall, floor and roof are made of wood. The hybrid way of building uses each material with its specific qualities and ensures a high-performance way of building. In addition to the performance, the hybrid permanent structure ensures different experiences, atmospheres, sounds. Structure and materialization are reduced to the essence.
▼砖墙与玻璃幕墙形成鲜明的虚实对比,Brick wall and glass curtain wall form a sharp contrast between virtual and real
▼项目外观细部,details of the appearance
四个封闭体块围合出一个二层通高的中央空间与四处功能空间,空间四周均设有大面积的玻璃幕墙,营造出开敞通透的室内氛围,住宅也因此没有了正面、侧面或是背面的区别,更多的则是东西南北不同朝向而带来的光线变化。二层通高的中央空间成为人们生活的剧场,在未来需要的时候,还可以在该空间中增设次级结构,形成额外的功能空间满足居住者的需求。
The space between the volumes is open and equally oriented to each side, no front, side or rear sides but rather east, south, west and north. This double-height central space forms the theater for current and future uses. It has the potential to apply secondary structures, allowing it to respond to changes in program.
▼北侧入口、厨房与餐厅,entrance of the north side with the kitchen and dinging area
▼厨房嵌在砖墙体量中,kitchen within the masonry volume
▼电视间,TV room
▼由中央客厅看书房/婴儿房,viewing the office/baby room from the central living room
▼夹层空间,mezzanine
▼空间细部,details
封闭的砖墙体量中涵盖了一系列私人区域与服务功能空间,如卧室、瑜伽室、浴室、储藏室以及入口玄关。这些封闭的体量中均设有独立的小型室外庭院。这些小庭院作为衔接空间将建筑与周边自然环境交织在一起。
The brick volumes include the private and serving functional spaces such as the sleeping quarters, yoga room, bathroom, storage room and entrance. These spaces are related to an enclosed outdoor space. Intermediate spaces are created inside and outside, but all open in relation to the environment.
▼卧室,bedroom
▼封闭的体量中均设有独立的小型室外庭院, These spaces are related to an enclosed outdoor space
▼木制结构与庭院细部,detail of the wooden structure and the outdoor space
▼天井庭院上空,Above the patio courtyard
▼轴测分析图,axonometric diagram
▼总平面图,master plan
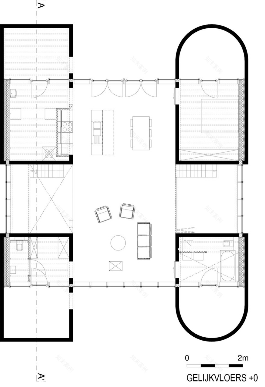
▼底层平面图,ground floor plan
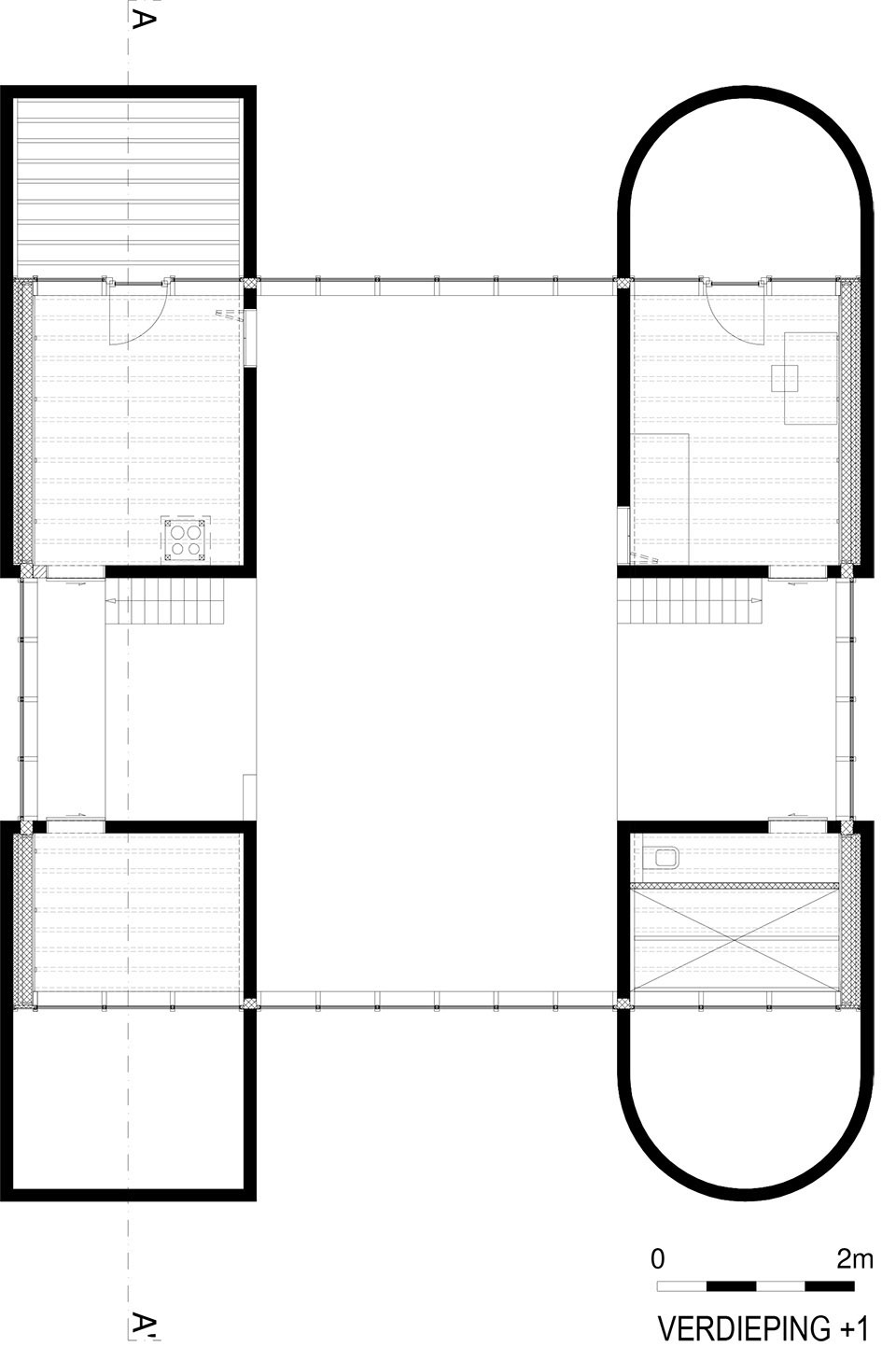
▼夹层平面图,verdieping plan
▼剖面图,section
Client: Private
Designteam: BLAF Architects
Program: Single family house
Bruto floor area: 172,2m2
Completion year: 2019
Photo credit: Stijn Bollaert
客服
消息
收藏
下载
最近

























