创作上传
VIP
收藏下载
登录 | 注册有礼
知末案例
/
家装空间
/
平层
/
现代平层
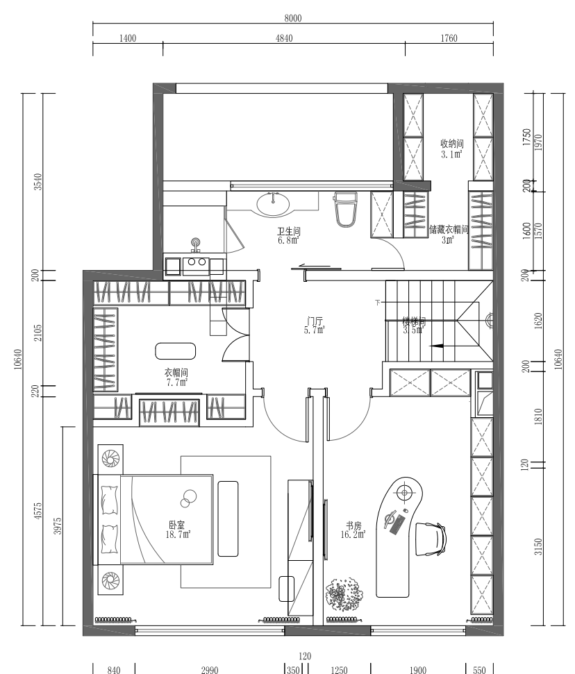
天瑞宸章
2022/07/07 00:00:00
查看完整案例
微信扫一扫
收藏
下载
分享
你可能还喜欢
换一换
西班牙极简主义住宅设计 · NIU 160 住宅
重庆万科悦湾 A2 洋房
沈阳中心城 SOHO 公馆 | 现代简约风格的魅力
简约北欧风,温暖你的家
朗诗绿郡 160m2 美式精装房设计
太平李宅的珥本设计
壹亮马 · 现代简约风格的温馨家居设计
国海广场会所1
国海广场会所2
军威世纪办公楼(房山金融安全产业园)
园中园别墅
高能时代
四元桥办公楼
安中石油办公大楼方案设计
方恒时代(映客直播)
鄂尔多斯会所
UNIQUE咖啡厅
生态餐厅
客服
消息
收藏
下载
最近