创作上传
VIP
收藏下载
登录 | 注册有礼
知末案例
/
ZD左右设计
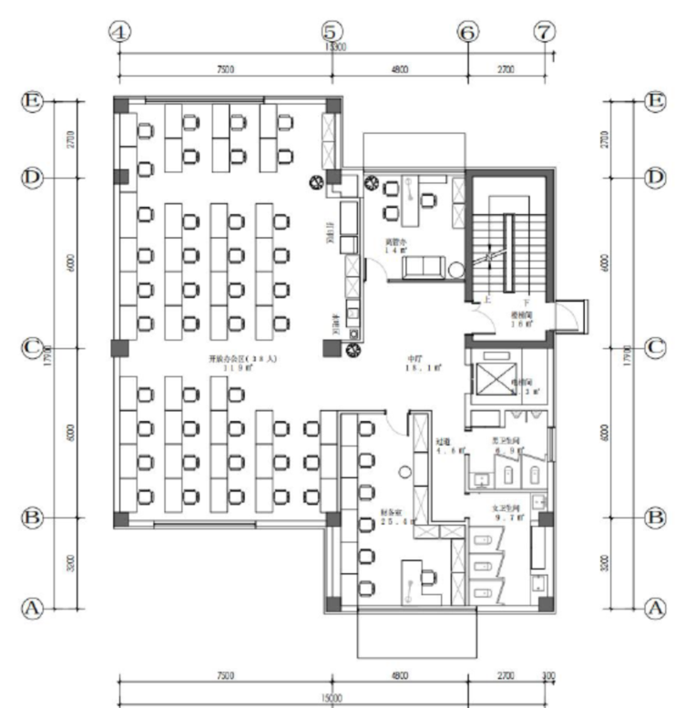
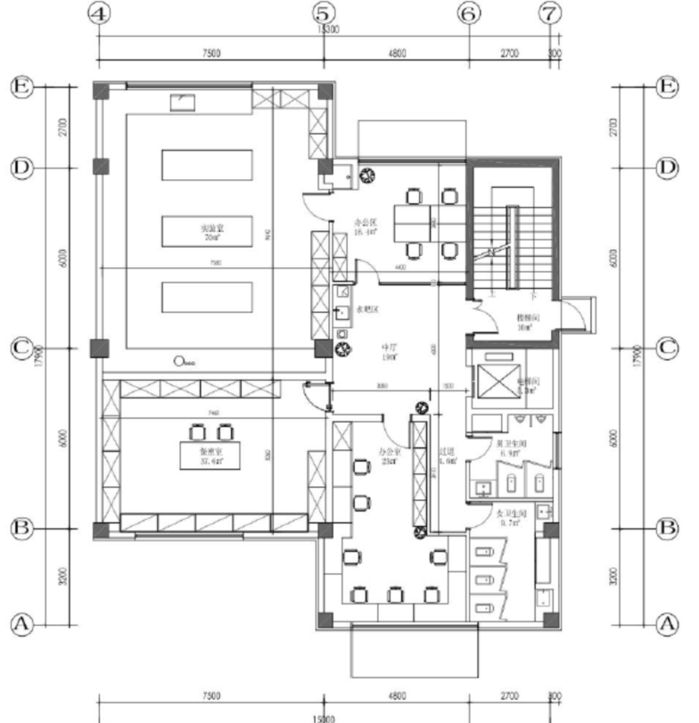
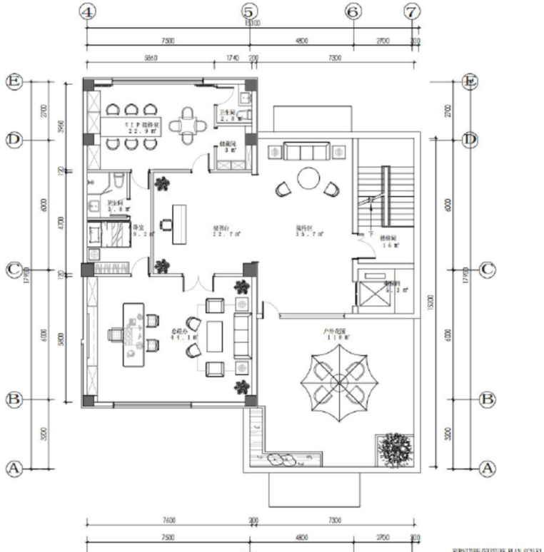
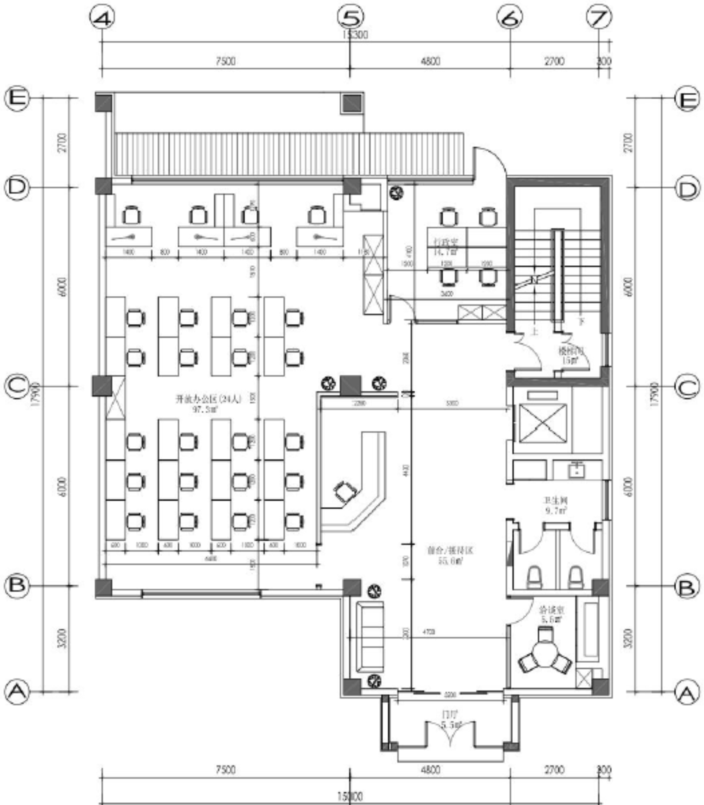
军威世纪办公楼(房山金融安全产业园)
2022/04/15 00:00:00
查看完整案例
微信扫一扫
收藏
下载
分享
你可能还喜欢
换一换
力设计工作室打造鸟语花香的生活空间
银顶小屋
简约北欧风家居设计
比利时布鲁塞尔融合工作与居住空间的现代设计典范
纽约·长老会 David H· Koch 中心
卡朋广州美院店灯光设计
壹亮马 · 现代简约风格的温馨家居设计
天瑞宸章
国海广场会所1
国海广场会所2
园中园别墅
高能时代
四元桥办公楼
安中石油办公大楼方案设计
方恒时代(映客直播)
鄂尔多斯会所
UNIQUE咖啡厅
生态餐厅
客服
消息
收藏
下载
最近