查看完整案例


收藏

下载

翻译
Architects:Kister Architects
Area :375 m²
Year :2021
Photographs :Peter Bennetts
Manufacturers : Godfrey Hirst, Laminex, Lysaght, Miele, Sirius, AWL, Anthony Lynch, Artedomus, Bellevue Architectural, Byzantine, Caesar Stone, Creative Windows, Don Currie Carpets, Franke, Fyber Carpet, ILVE, LWF, Mac, Melbourne Oak Floors, Mercury Heating, +8Mondoluce, Nissl Eichert, ROGER SELLER, Radial Timbers, Tiles Fusion, Toucan, Ventech, Woca-8Godfrey Hirst
Builders :Basis Builders
Landscape Architect :Acre Studio
Interior Design :Kister Architects
Lighting Design :Kister Architects
Electrical :True South Electrical
Landscaping :Form Landscaping
Design Architect : Ilana Kister
Documentation : Danielle Fedden
Joinery : Evolve Joinery
Styling : Jess Kneebone Styling, Jess Kneebone Styling
Country : Australia
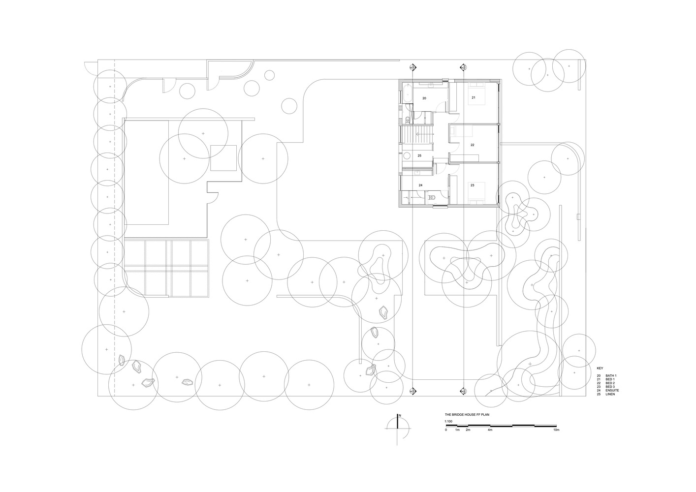
Located in Modernist Caulfield, the original structure was a double-storey, the 1970s, split-level residence in need of reimagining. Referencing the home’s Modernist beginnings while designing a contemporary extension for a growing family was key to the brief but, with the acquisition of the second parcel of land to the south, what began as a single-site, double-storey addition morphed into a double-site, single-level extension. Landscape architects were engaged early in the design phase to ensure an integrated vision for the expanded site.
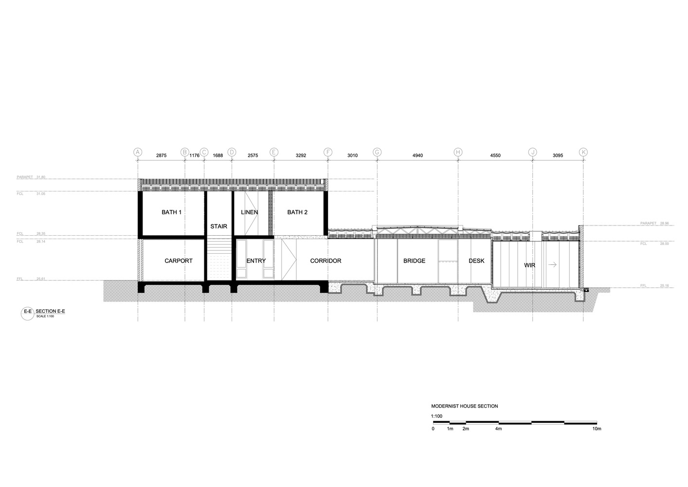
As a primary response, the original concrete façade detail has been stretched away from the original building to form the ‘skin’ of the master retreat. Eschewing what has become a conventional strategy, that is, to add a double storey to the rear, this master wing is accessed by a private glass bridge at ground level. A curved shroud conceals the main bed from the neighbors’ view but maintains a connection to nature and light. – a priority throughout.
Blurring the distinction between the existing structure and the new was a deliberate strategy designed to create a unified architectural entity. A once-dark, enclosed undercroft, the original, elevated entry was rebuilt to create a new, ground-level foyer, light-filled and linked to the landscape, behind the original arches. Spaces within the home – the generous kitchen, lounge, sunken living room, and glazed dining area – are delineated to maximize versatility and garden aspects, resulting in a haven for the entire family, with easy transitions from public to private zones, inside and out.
The prevailing aesthetic is a nuanced balance of old and new: white-on-white concrete flooring meets original terrazzo and bright blue plush carpet, timber lining envelops the interiors and burnt orange velvet couches nod to the home’s history. So, too, do the custom-bronze glass and flocked carpet in the sunken pit. The original glazed skylight has been scaled up and wrapped in a timber-lined ceiling to link with nature.
Skylights minimize the need for artificial lighting and are but one of the sustainable principles adopted throughout. Solar panels, hot water, and pool heating offset daily energy use, as well as extensive insulation, high-performance double glazing, and external blinds. Integrated floor heating within the exposed concrete floor acts as a heat bank during winter while the concrete maintains a cool finish in summer. Stormwater is collected to flush toilets and irrigate the landscape. Modified cladding materials achieve a concrete look and feel, without the expensive, non-environmentally friendly in-situ concrete.
As a family home, the spreading out of the house and garden enhances the work-from-home potential, with the glazed corridor to the master retreat proving to be an excellent pacing area. The clients can both work from home uninterrupted while their children play in the garden or rumpus. On its generous suburban block, the new build sensitively integrates contemporary family living with an architectural relic of a celebrated era. The versatile design embodies biophilic principles, focusing on connection to landscape and flexible living, whilst also enhancing the existing home.
▼项目更多图片
客服
消息
收藏
下载
最近


































