查看完整案例


收藏

下载
“想要使Westbeat成为社交聚集地,就要使建筑具有标志性特点;如此巨大的拱形空间创造出了我们预期的惊喜效果。”
“For Westbeat to become a social destination, the architecture needs to make a mark; such a vast arched public space creates the ‘wow’ factor we imagined.”
– Albert Herder, Studioninedots
该项目为阿姆斯特丹新西区的公共空间注入了新活力,它是由Studioninedots设计的住宅综合体,底层由86个拱组成,形成了开放的共享空间。这个巨大的空间长65米,宽50米,高8.5米,使Westbeat成为密集城市边缘的标志性地点。
The completion of Westbeat adds a dynamic new link in the public space network of Amsterdam Nieuw-West. Designed by Studioninedots the new housing complex features a public base composed of 86 arches that shape a network of inviting, shared open spaces. Measuring 65 x 50 metres and 8.5 metres high, this superspace literally and metaphorically elevates Westbeat to become a distinguished destination in the city’s densifying urban periphery.
▼建筑外观,external view
拱形成了视觉与结构的过渡,连接地下大跨度停车场和上层150户住宅。立面框架中的宽拱突显了内部的文艺活动,最大的拱位于拐角处,吸引人们进入建筑内部。
The arches are a visual and structural transition between the basement car park, with its wide spans, and the 150 dwellings above the superspace.Generous arches in the facade frame highlight the cultural activities within, with the largest arches positioned at the corner as an inviting gesture on this prominent address.
▼最大的拱门位于拐角处,the largest arches positioned at the corner
▼立面框架中的宽拱,generous arches in the facade frame
▼立面细部,details of the facade
▼内部庭院,inner garden
优雅的拱形空间充满了雕塑感,吸引居民和群众发现这个新的公共活动中心,并参与使用。这里可以用作办公空间、聚会场所、表演或音乐会场地。高挑的拱结构创造出开阔的空间,不论现在还是将来都可以灵活使用。不同大小的拱和不同高度的地面形成了各种开放和私密空间。
The graceful arched spaces of Westbeat set a sculptural setting that invites residents, locals and the public to discover this new public hub and make it their own. This superspace alternates in function, hosting workspaces, hospitality venues, performances, concerts and more. What supports this flexibility of use, also for the future, are vast areas of open floor space created by the high arched structures. Diverse types of open and intimate spaces are shaped by the network of different sized arches and differences in floor heights.
▼拱形空间充满了雕塑感,arched spaces set a sculptural setting
▼不同大小的拱和不同高度的地面,different sized arches and differences in floor heights
▼从高平台回看公共空间,view back to superspace from higher platform
Westbeat的目标高远。它是跨越环线的标志性建筑,通过建筑内的步道连接了基地两侧不同高度的地面,通过降噪立面和绿色庭院阻隔了来自街道的噪音。同时它还聚焦青年群体,支持新兴社区的创业与创新精神。设计团队将该项目视作繁忙地段中促进聚会、交流和联系的催化剂,他们研究了没有固定用途的代表性公共空间,于今年提出了WanderVoids(漫游空间)的概念,回应拥挤的城市中具有过多限定用途和使用人群的公共空间。Westbeat可以灵活使用,创造出惊喜的娱乐与体验空间,既有魅力,又满足社会需求。 设计团队由此意识到人们对于充满创造力的空间的渴望,以及这种空间对实现高品质的城市生活来说是至关重要的。
Westbeat has high ambitions. It marks the ‘Leap over the Ring’ (beyond the A10 highway), bridges the height differences on site with new pedestrian routes through the building and acts as a noise and traffic barrier using sound-dampening facades and green galleries. From a social perspective, Westbeat focuses on young urban residents and the supports the entrepreneurial and creative spirit of this emerging neighbourhood.At this busy location, Studioninedots envisioned Westbeat as a catalyst for meeting, exchange and connection. The practice investigated the design of iconic public spaces without a fixed use, launching the concept of WanderVoids this year in response to the fact that too many public spaces in our crowded cities are over-determined, too specifically focused on limited types of users. At Westbeat these flexible spaces create room for play and experiment, for excitement and wonder, and address both a fascination and societal needs. With this, Studioninedots recognises a renewed desire for physical places that appeal to our imaginations and are therefore essential for a high quality of urban life.
▼外观夜景,external view in the night
▼入口夜景,entrance in the night
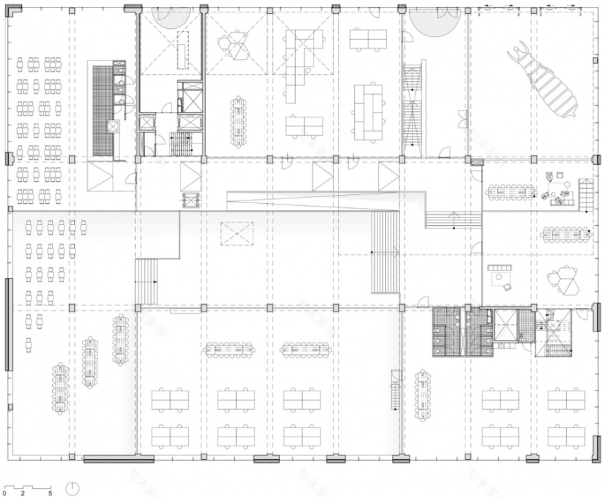
▼公共空间平面,superspace plan
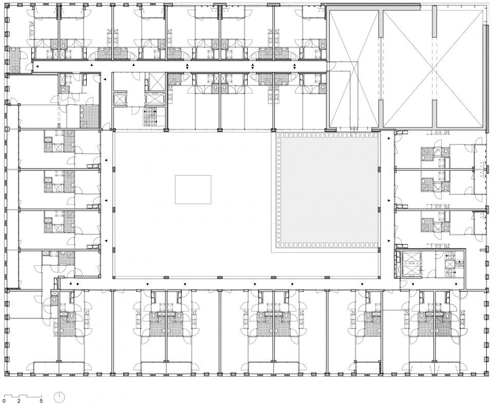
▼花园层平面,garden floor plan
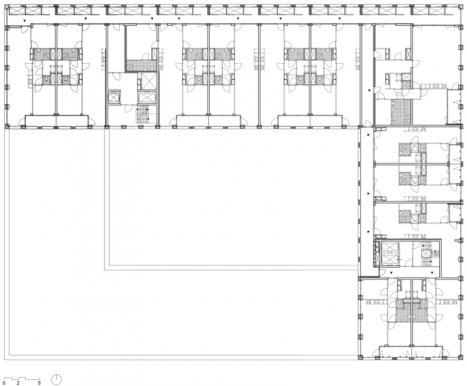
▼五层平面,5F plan
▼剖面,section
Client: Lingotto Ontwikkeling BV; Achmea Dutch Residential Fund
Location: Lelylaan-Delflandlaan, Amsterdam, The Netherlands
Type: public space, 150 dwellings, collective garden, workspaces, podium, hospitality venues, facilities, parking
GFA: 24.300 m2
Plot: 3.250 m2
Design-completion: 2016-2020
Design team: Albert Herder, Vincent van der Klei, Arie van der Neut, Metin van Zijl
Project leader/architect: Joost Maatkamp
Design team: Wouter Hermanns, Rutger van der Meer, Laura Berasaluce, Joost Körver
Team: Heddes Bouw en Ontwikkeling BV, Royal HaskoningDHV, Cauberg-Huygen, Huygen installatie advies, Skaal,
Atelier Bouwkunde, Moss Amsterdam, Donkergroen
EPC: -0.05, GPR: 8,3
Photos: Frans Parthesius
客服
消息
收藏
下载
最近

















