查看完整案例


收藏

下载
建筑最初由两部分组成,历史可追溯至十八世纪。当时,其中一栋建筑是相邻修道院的一部分,空间具有拱顶,作为小型剧院使用。另一栋是贵族宫殿的拓展部分,通过二层的拱桥与主体相连。后来,两部分被所属的修道院和贵族宫殿独立使用,建筑元素也因此相互分离。1990年,两栋建筑进行了重组,建立起新的联系。公共庭院连接了两个的独立空间,成为两部分之间的通道。通道主要使用玻璃材质,外部覆盖着垂直排布的金属格栅。站在入口,仅能隐约感受到内部十分私密的庭院和泳池空间。建筑师还对材料和家具进行了深入的探索,单独设计的元素融合为整体,共同塑造了精神和感官的和谐氛围。在首层,厨房和客厅位于相反的两侧,通过大玻璃窗连通了视线。游泳池恰好布置在共享庭院中。
▼庭院与通道,the courtyard and the passage
The building originally consisted of two buildings, dating back to the XVIII century. The first construction was part of the adjacent convent, which was vaulted and used as a small theater. The second was an extension of a noble palace with which it was connected on the two upper floors by an arched bridge. Later on, those two buildings were separated respectively by the convent and the noble palace which they belong to, thus defining new isolated architectural elements. In the 1990 they underwent a restructuring that introduced an element of connection between them. Until then they were autonomous and in relation only thanks to a common courtyard, an open space configured as a passage to be crossed to move from one part to the other of the building. The connection path space has been realized with glass, externally protected by a metallic filter with vertical long slats, which only sensually allow you to glimpse the very intimate space of the courtyard and the pool from the entrance door of the building. The project is a full explorations of materiality and furniture elements, each individually designed to give together a spiritual as well sensual ambiance. On the ground floor the kitchen and the living room are on opposite sides looking at each other through big glass surfaces, so that sharing the courtyard were the swimming pool in placed.
▼围绕庭院布置的开放厨房,open kitchen arranged around the courtyard
起居区域由两侧一层与二层相连的独立空间共同组成。双人卧室中包含一个带床的单人浴室,此外,室内独特的橱柜为日常使用提供了便利。
Upstairs is the sleeping area, consisting of two segregated spaces respectively located on the first floor of the two building. Lastly the double bedroom is providing a bed-bathroom single space equipped with a unique wardrobe space on its back placed to easily serve the room itself.
▼进入起居区域,entering the sleeping area
▼起居室概览,overview of the living room
▼不同材质的组合,combination of different materials
▼独特的橱柜设计,unique wardrobe space
本项目中,改造的目标是维护建筑的原状。主要的改变体现在顶层的儿童卧室,建筑师将夹在中间的天花板拆除,展示出屋顶结构,拓展了空间的高度。儿童房由三个木制元素打造,内部规则而纯净,没有采用方正的几何形状,设计思路十分灵活,在儿童房内创造出丰富的流动路径。房间没有门,而是通过曲面墙上的小开口进出。
Therefore our intervention of recovery aims to maintain unaltered the settlement of the building, with the exception of the bedroom for children located on the first floor, where the intermediary ceiling was demolished in order to show up the roof structure and to amplify the height of the space. The children one is a regular pure space with three wooden architectural elements, far from Euclidean geometries, generate a dialectic contamination. The result is an enriched system of fluid paths within which are created door-free bed spaces, accessible through the small openings remained among these curvy volumes approaching the perimeter walls.
▼儿童房外观,exterior of the children’s room
▼儿童房的曲线路径,children’s room with fluid paths
▼细部,条形格栅,strip grids
▼细部,色彩鲜明的泳池,details, swimming pool in bright color
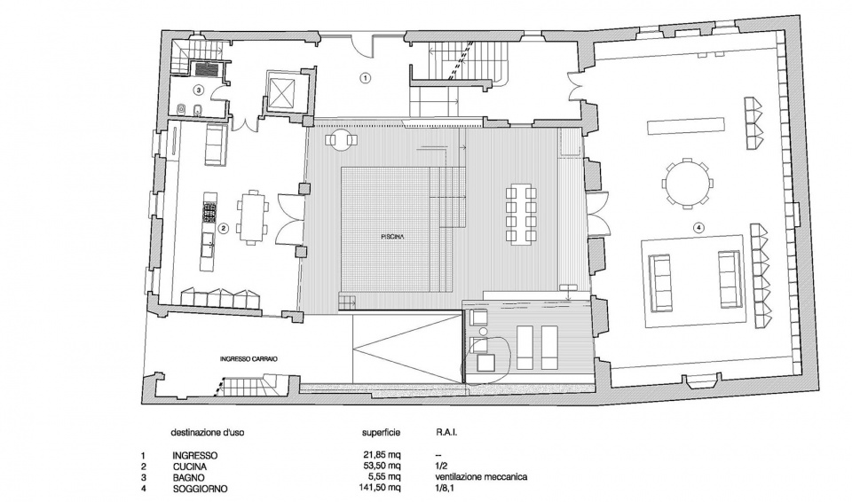
▼首层平面,the ground floor plan
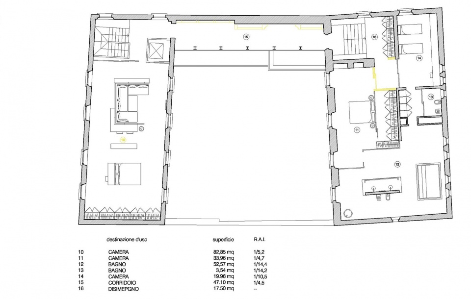
▼二层平面,the second floor plan
▼三层平面,the third floor plan
▼剖面,section
▼剖面,section
客服
消息
收藏
下载
最近






















