查看完整案例


收藏

下载
“ShadowBox以概念为主导,由一种纯粹而统一的方式设计完成,其室内氛围独特而极致。” – Stephanie Davison, Davidson Rafailidis
“A conceptually driven project, ShadowBox is executed in a pure and unified way. The interior atmosphere is distinct and extreme.” – Stephanie Davison of Davidson Rafailidis (2020 Juror)
▼空间概览,overall view of the project
住宅位于多伦多Upper Beaches区域,面朝一条繁忙而嘈杂的马路,为了减少道路的影响,建筑立面将开口控制到最小,仅留一条水平带窗。人们可以从边道进入位于建筑中央的入口。前厅夹在餐厅和厨房/早餐区之间,东西朝向让使用者在早晚餐时都可以受到自然光的照射。厨房为单层空间,餐厅两层通高,到了客厅,层高达到三层,形成空间的收放,带来不同的体验。
Located in the Upper Beaches area of Toronto, the residence faces a busy, at times cacophonous arterial road and as a result, the exterior openings were minimized to a single horizontal strip window. The entrance into the residence is at the midpoint of the building accessed through a side lane. The entrance foyer is located between the dining and kitchen/breakfast areas. The east-west orientation of the building allows for morning light at breakfast and evening light at dinner. From the one-story kitchen, the dining room is double-height and the living room is triple-height, invoking a sense of expansion or compression as one flows through the home.
▼入口门厅位于厨房和餐厅之间,entrance foyer between the kitchen and the dining room
▼厨房,kitchen
▼两层通高的餐厅,double-height dining room
▼立面只开有带状窄窗,single horizontal strip window on the facade
▼从餐厅看向客厅,view to the living room from the dining room
▼三层通高的客厅,triple-height living room
这栋住宅如同一件乐器,演奏出稍纵即逝的时光。室内墙面如空白的画布,捕捉抽象的阴影及其运动,如微风下摇摆的树木,将外部环境投射到室内。光线在墙壁和地板上移动,整个房间如同一个颠倒的日晷。这里的时光如电影片段般流过,吸引人们的注意。某个瞬间,影子被光替代,消失得无影无踪。
The residence was envisioned as an instrument for the appreciation of the profound ephemerality of time. The interior walls act as a blank canvas capturing the shadows of the abstracted forms and the movement, for example, of trees swaying in a breeze, in effect projecting the exterior environment into the interior. Like a reverse sundial, beams of light move across the walls and floors of the house. The moment is mesmerizing, cinematic, fleeting; in an instant, the shadows transform or disappear altogether.
▼阳光照射楼梯形成变化的光影,various light and shadows created by the staircase
▼连廊,corridor
▼卧室和浴室,bedroom and bathroom
▼通透的居住空间,transparent living space
ShadowBox是对建筑本质的一次探索,通过捕捉光影的微妙变幻将时间的流逝展现在人们面前。同时,变化的空间尺度和体验营造出强烈的运动感。设计集合了单层、双层和三层通高的空间,由桥梁、楼梯等室内元素连接。住宅中不同区域的光影不断变化,同时揭示出建筑的恒久不变与自然的转瞬即逝。
ShadowBox is an exploration of the essence of architecture: to enable the witnessing of the passage of time by capturing the elusive play of light and shadow, and to engender a heightened sense of movement through varying spatial scales and experiences. This includes the expansion and compression of single, double, and triple-height spaces, and through one’s engagement of interior elements such as bridges and stairs. The house is configured to capture the ever-changing light and shadow effects in various areas of the residence. The shadows cast in the interior reveal the juxtaposition between the permanence of the architecture and the ephemeral of the natural.
▼光影细部,details of the light and shadows
项目刚刚获得了2020年AZURE杂志AZ住宅奖。此外,它还被2020加拿大室内设计师VODA奖提名,获得2019年国际设计奖,并且入围2019国际室内设计协会全球杰出奖。
Johnson Chou Inc. was recently awarded the Interiors: Residential 2020 AZ Award from AZURE Magazine for this project. ShadowBox has also been recognized with a 2020 Value of Design Award (VODA) by Interior Designers of Canada, a 2019 International Design Award (IDA), and as a Finalist of the 2019 International Interior Design Association (IIDA) Global Excellence Awards.
▼负一层平面图,basement floor plan
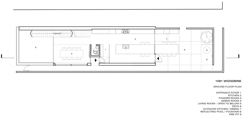
▼一层平面图,ground floor plan
▼二层平面图,second floor plan
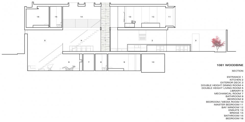
▼剖面图,section
Firm: Johnson Chou Inc., Toronto, Canada.
Team: Johnson Chou and Silke Stadtmueller with Andrew Harris (Ardec Group), Dario Gallo (MAF Industries), Stephen Bazay (Bazay Blacksmithing), Andrew Moretti (RFP Design Group), Traian Sandru (Lumina Sales / Eurolite), Bob Westcott (RJW Enterprises), Vicky Diab (Willis), Dave Kennedy (Kenella Painting), Dave Marcus (AyA Kitchens), Kaz Stachelek (Robert Design Group) and Ira Idzkowski (Torcon).
Photos: Ben Rahn at A-Frame Studio.
客服
消息
收藏
下载
最近






















