查看完整案例


收藏

下载
该项目改造了一幢包含两户人家的住宅,为这个蒙特利尔50-60年代修建的社区注入了新的活力。随着越来越多年轻家庭的搬入,蒙特利尔的一些传统街道正在逐步改变,该项目以质朴的方式成为改造运动的一部分。这样的改造不仅是为了寻求更好的居住环境,更为了追求现代化的生活方式。
新住宅的名字为La DUETTE,意为二人表演,因为该项目的业主是一对有着各自家庭,但又想要生活在一起的兄妹。兄妹中一人占据了建筑较高的两层,一人安置于首层,两户人家间有明确的分隔。如何为两个空间都引入充足的自然光既是设计团队所要面临的挑战,亦是机遇。
A new home for two families brings new life to a quiet Montréal neighborhood dating back to the 50’s and 60’s. In its own, unassuming way, this recent building is part of a movement that is gradually transforming Montréal’s traditional streets, as a growing number of young families are moving in. They are looking for friendly surroundings, but also for a contemporary way of life.
Named La DUETTE in reference to the duet, intended for two performers, this new house was designed for a brother and a sister wanting to live under the same roof with their respective families. One of them occupies the upper two floors while the other one is on the lowest level. The challenge of bringing natural light to both interiors despite strict zoning regulations was a welcome opportunity for Natalie Dionne Architecture.
▼建筑临街面,street view
▼建筑外观,exterior view
建筑设计概念
The architectural concept
La DUETTE住宅的设计经过了细致的3D模型推演,这使得建筑师能够再不违反现有法规的情况下,尽可能发觉这个狭长场地的潜力。电子模型不仅能够帮助推演建筑的形态,还有利于设计师发现意想不到的景观和室外居住空间。这座新的三层复合公寓的上层可以从街道面直接进入,下层则由侧面的小巷进入。从街道上看,两个家庭的入口处都有顶棚,有助于营造出建筑不同空间的和谐。
La DUETTE literally evolved from 3D models, which allowed the architects to explore the potential of this narrow site without contravening existing regulations. The virtual model was extremely useful in shaping the project, but it also helped the designers discover unexpected views and exterior living spaces.The upper unit of this new three-storey duplex is accessible from the front façade, off the street. Access to the lower unit is from the side alley. A small marquee above each entrance signals their presence from the street and helps create a feeling of intimacy for both families.
▼上层公寓由街道面进入,下层由侧面小巷进入,this three-storey duplex is accessible from the front façade, off the street
▼门口设有顶棚,small marquee above the entrance
建筑下层的公寓略微低于地平,是一间两居室。其起居室向外延伸至室外的小型私人庭院。自然光从建筑背面的开口及侧窗进入室内。建筑前侧的楼梯通向上层高过街道的公寓。公寓的一层被设计为开放式起居空间。厨房和用餐区直接与宽敞的带顶棚露台相连,露台俯瞰后巷。公寓二层设置有主卧,两个儿童房和一个小型游乐区。
Set slightly below ground, the lower unit is a two-bedroom apartment with a living area extending outside to a small private courtyard. Light floods in from the large openings at the back as well as from side windows.At the front of the house, stairs lead up to the upper unit, which is raised above the street level. The ground floor is treated as an open-concept living space. The kitchen and the dining area are directly connected to a generous covered terrace overlooking the back alley. The master bedroom, two children’s bedrooms, and a small play area are on the upper floor.
▼下层公寓延伸至室外庭院,上层公寓起居室与宽敞的露台相连,the lower unit extends outside to a small private courtyard while the living area of the upper unit are directly connected to a generous terrace
设计师设想了两种策略,为建筑引入充足的自然光。一方面,建筑的侧立面向内“折叠”形成足够大的凹口,以容纳两组相对的窗户。这些窗户是室内光线的主要来源,并带来了出人意料的良好视野。另一方面,设计师再被完全遮挡住的楼梯间上方开设了天窗。
Two solutions for maximizing natural light were envisioned. The first was to “fold” the lateral façade inwards, creating a recess large enough to accommodate two sets of windows facing each other. A major source of natural light, these windows also provide unexpected views. The other solution was to incorporate a skylight intended to cover the stairwell so completely as to appear practically invisible.
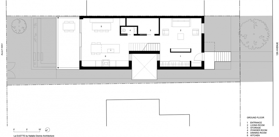
▼建筑一层平面,足够的内凹有利于开窗,plan of ground floor, creating a recess large enough to accommodate windows
Natalie Dionne Architecture
室外空间及材料
Exteriors and materials
建筑外层覆盖有浅色的粘土砖,为这个狭长的结构增强整体感。建筑的三个立面都是用了这种耐用且价值较高的材料,使得建筑从迎街面和后巷都能与蒙特利尔的城市景观相和谐。公寓有趣的入口打破了建筑单调的立面。钢制楼梯和顶棚被漆成灰色,与激光切割出简单图案的护栏形成对比。楼梯踏板和顶棚下方采用了东部雪松木材,完整了整个入口结构。
The building is predominantly clad with light-color clay brick, conferring the narrow structure with a monolithic expression. The choice of this durable, noble material for all three façades was intended to stress the importance of dealing respectfully with Montréal’s urban landscape, including its back alleys. A playful entry porch enlivens the minimalist composition of the tone-on-tone façade. The gray-painted steel stairs and marquees contrast with the light-hearted graphics of the laser-cut guardrail. Eastern cedar used for steps and soffits adds a final touch to the overall composition.
▼入户楼梯采用漆为灰色的金属,gray-painted steel stairs at the entrance
室内空间及材料
Interiors and materials
室内空间的通透度是该项目的关键,尤其是在上层公寓中。上层公寓光线充沛,且享有蓝天白云等绝美的视野。仿佛悬浮于地板上的楼梯营造出非凡的效果。黑色的楼梯间与空间内白色主调形成鲜明的对比。楼梯部分悬挂在金属分隔板上,其雕塑般的效果因天窗自然光投下的阴影而更为明显。
Transparency is key to this project, particularly in the upper unit where light abounds and unexpected views pop up, out of the blue. The sculptural stairs, which float above the floor, create magical moments. The black staircase stands in stark contrast with its white surroundings. Partially suspended to a sheet steel divider, its sculptural effect is accentuated by the shadows created by the natural light coming from the skylight above.
▼上层公寓厨房,kitchen in upper unit
▼好似悬浮的楼梯间,stairs float above the floor
▼楼梯间以黑色金属板隔开,上方开设天窗,stairwell is separated by black metal plates, and skylights are opened above
无缝的玻璃隔断将主卧与楼梯间隔开,增强了空间的通透性。长窗帘则确保了空间的亲密感。大门和隔断上采用了大量枫木贴面,以保护公寓的隐私。地板采用了抛光过的混凝土,窗户采用铝制框架,温暖的木材很好的中和了上诉材料冰冷的质感。
A seamless glass partition separates the master bedroom from the stairwell, reinforcing the effect of transparency. Long curtains insure intimacy. Maple veneer is used throughout on huge doors and partitions meant to keep services out of sight. The warm presence of wood makes up for the cooler feeling of materials such as the floors’ polished concrete and the windows’ aluminum frames.
▼大量木质隔断温暖了空间氛围,wooden partitions warm the atmosphere of the space
▼卧室和楼梯间以玻璃墙隔开,增强通透性,glass partition separates the master bedroom from the stairwell, reinforcing the effect of transparency
▼通向主卧室的走廊,corridor towards the master bedroom
La DUETTE公寓旨在于紧凑的场地上为两个家庭打造舒适的住宅。这项改造工程是城市更新的具体表达。这充分表现出现代化生活与自然紧密相连,且能够和谐融入城市的传统结构。
La DUETTE evolved from a desire to provide two families with modest yet comfortable homes on a tight urban site. This recent addition to the neighborhood is the expression of a renewed urban typology. It is also the built proof that contemporary ways of life, and close connection with nature, can be integrated into the city’s traditional fabric.
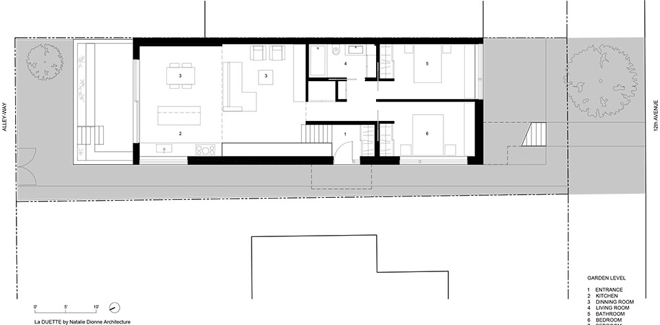
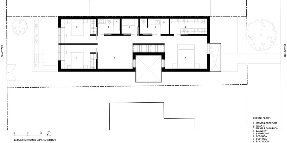
▼平面,plan
Natalie Dionne Architecture
▼剖面,section
Natalie Dionne Architecture
Name of the project: La Duette
Location: 12eme avenue, Rosemont, Montreal, QC, Canada
Area of project: 3 237 ft2 / 300.7 m2
Project end date: Automn 2019
Architects: Natalie Dionne Architecture
Design team: Natalie Dionne, Corinne Deleers, Rosemarie Faille-Faubert and Martin Laneuville
Clients: Sophia Lormeus and Patrice Éthier, Annie Éthier
Contractor: OVI construction
Engineer: Latéral
Cabinetmaker: OVI ébénisterie
Photographer: Raphaël Thibodeau
客服
消息
收藏
下载
最近




















