查看完整案例


收藏

下载
地平线上的路
A Way on the Horizon
近期,釜山与蔚山之间的海岸线上建起了许多商业建筑,在一定程度上反映了人们想要逃离城市的心愿。但是,其中的大多数设计要么盲目追随潮流,要么过于商业化。对于此,建筑师有必要进行一定思考,重现建筑早期的风貌。
LIEBELIEBE咖啡馆位于蔚山市Ganjeolgot的崖边,是一个咖啡馆与住宅相结合的项目。项目场地长100m, 宽12-18m,整体长而狭窄。场地的东侧是种有松树,竹子和刺槐的茂密森林,而南侧则是Ganjeolgot崖边的海岸。如何能让旅客感受到场地前方400m处的海岸风光,是该项目的重点。
Many commercial buildings have recently been built along the coastline between Busan and Ulsan. It reflects people’s desire to break away from the city centre. However, most designs either blindly following perceived trends or are excessively commercial. It leads architects to feel obliged to revert to earlier fads.
▼建筑概览,overview
指向Ganjeolgot海岸的线
A line Leading to Ganjeolgot Cape
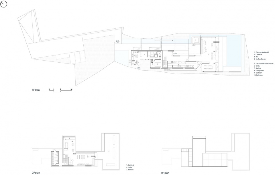
狭长的场地垂直于海岸线,设计团队根据这一条件规划了空间次序,让旅客步入海岸线前亦能享受到大海的壮丽景色。场地被分为三个部分,依次是入口区,主建筑所在的人工区,以及能够享受到自然风光的室外活动区。不同区域的层级之间,设有隔墙分隔空间。室内与室外的景色相通,使得置身于建筑中的游客,可以充分亲近自然并与之互动。为了丰富体验,建筑的走廊边设立了一条高差2.1米的水道。水道不仅能营造出跌水的音效,还有利于建筑中水循环的构建。
▼分区轴测,division axonometric drawing
The sequence was planned according to the long and narrow site conditions perpendicular to the ocean. There are three sections, before reaching the water, where visitors can enjoy the ocean view after entering the opposite side of the ocean. The sequence consists of an entry area, a constructed artificial area, and the outer area where people can enjoy nature, and protruding walls create layers of spaces. There is a place where people can enjoy the connected scenery, both from the inside and outside. People experience architecture, listen to nature, and interact with the natural landscape. The walkway, which links multiple experiences, has been set up with a 2.1m-high waterway that not only provides the acoustic background of falling water but also helps the water circulation within the water that later emerges.
▼入口区鸟瞰,bird-view of the entrance
▼沿走廊设有跌水水道,waterway with height difference along the walkway
▼ 沿水道步入人工区,steps into the artificial area along the walkway
▼水道上的隔墙,steps and walls in waterway
沿着水道进入人工区后,是一处内凹的空间及建筑物入口。进入建筑后,穿过长长的走廊,可看到建筑后方较为开敞的水面。宽阔的水池好似海洋,倒映着天空。设计师希望以此模糊天与海的边界,呈现出水天一色的景象。因此,水池的高度被设置与海平线相平,水池周边的自然景观也成为整体环境的一部分。建筑一层与海岸通过水池连接,建筑二层则设置了朝向大海的宽阔阳台。
▼人工区内凹空间,sunken space of the artificial area
As soon as you reach the artificial area along the waterway, you will find the Sunken Space and an entrance to the building. Entering the room, there is a long hallway, and the aforementioned water space unfolds. The expanse of water is an element that embraces the sky and the sea. We tried to embody images through an expanse that blurs the boundaries between the sky and the sea.Therefore, the height of the water was designed to match the horizon of the sea, and the untidy tour-sites environment remains as a part of the landscape. On the first floor, the ocean is connected to the house via the water space, and on the second floor, the veranda is planned widely to put architecture towards the sea.
▼建筑后方放开阔的水池,open water at the back of the building
▼建筑一层与海岸通过水池连接,the ocean is connected to the first floor via the water space
商业与住宅的混合空间
A Mixture of Commercial and Residential Spaces
业主在原址曾经营过一家咖啡馆。愿咖啡馆拆除后,业主增购了土地范围,从而建成了如今的LIEBELIEBE咖啡馆。根据业主要求,LIEBELIEBE咖啡馆被设计为商业和住宅相结合的混合空间。为更好的平衡工作与生活,建筑中不同功能空间之间有清晰的分界。因此,住宅空间与商业空间被设计为完全相反的U型布局。入口处水空间的设置,增强了住宅空间的隐蔽性,有利于帮助旅客区分出通往咖啡馆及住宅区的不同路线。两条路线之间另有一条小路通向后院。受到外侧咖啡馆的影响,住宅空间开窗数量有限。但庭院的设置很好的解决了住宅区的采光问题。住宅区内设有天井,形成了向内开放的空间布局。虽然LIEBELIEBE咖啡馆是一个混合空间,但通过以上策略的功能区划分,业主的隐私得到了保障。
▼建筑流线图,circulation drawing
Originally, there was a cafe’ run by the client before CAFE’ LIEBELIEBE. The client demolished the former cafe’ and bought additional land to proceed with the current project. She commissioned a building where commercial and residential spaces could coexist, requesting a clear separation of the two functions to balance work and life. Thus, residential space was placed in a U-shaped form, contrary to the attitude towards the commercial space. And a water space was installed at the entrance to distinguish the route to the cafe’ from the route to the residential area. This made it difficult for visitors to recognise residential space. There is also a road between which leads to the courtyard. The courtyard welcomes sunlight into the residential area where there is a limited number of windows due to the cafe’ outside. In the residential area, it applies a skylight, proposing an open interior-oriented dwelling. All of these characteristics made CAFE’ LIEBELIEBE consist of both commercial and residential spaces, but it protects clients’ privacy by separation schemes between commercial and residential areas.
▼咖啡馆二楼,商业空间采用u型布局,second floor of the cafeteria, U-shaped form of the commrcial space
▼夜色中的建筑,building at night
▼水池的灯光,light of the water space
▼场地平面图,master plan of the site
PLS Architects
▼平面图,plans
PLS Architects
▼剖面图,sections
PLS Architects
Project name:CAFÉ LIEBELIEBE
Lead Architects: Park Kanghee, Lee Yeonjung, Shin Hyukhyu
Company name:PLS Architects
Project location:8, Ganjeolgot 1-gil, Seosaeng-myeon, Ulju-gun, Ulsan, Korea
Completion Year:June 2019
Other participants:
Design Team: Um Jiyoung
Clients: Jang Jinyoung
Collaborator S: MOA Structure
Collaborator M: GwangmyeongTotal Engineers
Collaborator E: GwangmyeongTotal Engineers
Construction : HyunRim Construction
Photo credits:Yoon Joonhwan
客服
消息
收藏
下载
最近





















