查看完整案例


收藏

下载
公司: 1819 Company Limited
类型: 景观
地区: 泰国
"Srinakarin" 项目的位置位于社区区域,靠近Thai people的重要地标,如拉玛九世的农邦切克猴,以及Suan Luang Rama 9公园,还有完整的公用设施以便前往项目。
“Srinakarin” The location of the project is located in a community area near important landmarks of Thai people, such as the Nong Bon Cheek Monkey Project of King Rama 9, as well as Suan Luang Rama 9 Park, as well as full utility Convenient to travel to the project.
当你到达项目时,豪华感扑面而来。入口处的安全系统磁力接触可以通过移动应用程序控制,阁楼式的装饰,然后在里面你会看到花园的对称式装饰。在左边,从入口处看,你会看到一个方形盆地喷泉。右侧是一个三层楼的会所,可以容纳聚会,还有一个盐水游泳池和全套设施。
该项目的概念是一个豪华豪宅。充满了欧洲住宅的优雅,无论是住宅内的功能还是户外的功能,它都能满足所有年龄段的需求此外,我们还可以吸收Suan Luang rama的自然氛围以发展和连接项目,成为其优先考虑的一部分。
The project's concept is a luxury mansion. Filled with the elegance of a European home, whether it is a function within the home or the outdoors, it is full of needs of all ages in addition, we can also absorb the natural atmosphere of Suan Luang rama. 9 to develop and connect projects to be part of their priorities.
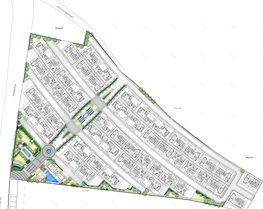
▼平面图 Plan
Project name: The Palazzo Srinakarin
Company name: 1819 Company Limited
Project location: 55 Soi Srinakarin, Srinakarin Road, Nong Bon Subdistrict, Prawet, Bangkok 10250
Completion Year: 2018
Other participants Architect: Humanist
Photo credits: Chalermwat Wongshompoo
客服
消息
收藏
下载
最近


















