查看完整案例


收藏

下载
摘要
Key words
在全球化大趋势影响下,信息的交流与共享变得日益频繁,不同区域之间文化相互影响且建筑的地域性似乎也随之削弱。因此营造区域场所的归宿感、对建筑在地性的研究近几十年也越来越被人所重视。受气候、建造技术、历史事件等因素影响,川西传统民居整体呈现出一种素雅、有机、极具生活气息的建筑形态,这在工业化、追求效率、模块化的当下显得极其可贵。发展与新技术的本身并无过错,而单纯仿古建筑也存在着与现代生活方式的冲突性,如何延续其地域性并对川西传统民居建筑风格特征进行现代转译,是本文所探索的方向。
关键词:融合共生;现代转译;在地性;场所精神
Under the influence of the general trend of globalization, the exchange and sharing of information become more and more frequent. Different cultures influence each other among different regions, and the regionalism of architecture seems to weaken accordingly. Therefore, in recent decades, more and more attention has been paid to the research on the sense of belonging of regional places and the localization of buildings. Influenced by climate, construction technology, historical events and other factors, the traditional dwellings in western Sichuan present a simple but elegant, organic and life-like architectural form, which is extremely valuable at the moment of industrialization, efficiency and modularization. There is nothing wrong with the development and the new technology, but the simple archaized architecture also has the conflict with the modern life style, how to continue its regional and modern translation of the characteristics of the traditional residential architecture in western Sichuan is the direction explored in this paper.
Integration and symbiosis; Genius loci; Modern translation; locality
Key words:Integration and symbiosis; modern translation; locality; genius loci
1. 引言
1. Introduction
建筑的“在地性”是一个常被人们讨论的话题,而大量的新建建筑却是打着“历史传承”的旗号,只是对传统历史建筑进行一些表层元素的提取。如何让新建建筑由场地“生长而出”,是一个值得我们深思的话题。我们试图通过对农科基地展示中心的设计创作进行分析,提出一种建筑与场地融合共生,及川西民居建筑风格特征现代转译的原则与方法,为川西传统民居的传承与发展提供一定的参考价值。
本案位于成都大邑东部天府田园度假区,在国家乡村振兴,打破城乡二元结构,城市向乡村存根溯源这一大背景下,打造以田园酒店(民宿)为核心,以科普亲子,主题乐园,康养文化体验为活动内容的川西林盘田园综合体。农科基地展示中心为整个项目的农业技术的研发与展示中心,也是传统川西民居田园生活的一种标志。项目用面积为1544.45m²,总建筑面积为967.91,容积率约为0.63。建筑密度约为30%。[1]
The “local character” of architecture is a topic that is often discussed by people, while a large number of new buildings are under the banner of “historical heritage”, only to extract some surface elements of traditional historical buildings. How to make new buildings grow out of the site is a topic worth pondering. Through the analysis of the design and creation of the exhibition center of the agricultural science base, we try to put forward a principle and method of the integration and symbiosis of architecture and site, and the modern translation of the architectural style characteristics of Western Sichuan folk houses, which provides certain reference value for the inheritance and development of western Sichuan traditional folk houses.
This case is located in Tianfu rural resort in the east of Dayi, Chengdu. Under the background of national rural revitalization, breaking the dual structure of urban and rural areas, and tracing the city to the rural roots, it aims to build a rural complex with rural hotels (homestays) as the core, popular science parents and children, theme parks, and healthy cultural experience as the active content. The exhibition center of agricultural science base is the R & D and Exhibition Center of agricultural technology of the whole project, and it is also a symbol of traditional rural life of Western Sichuan residential buildings. The project covers an area of 1544.45m2, with a total construction area of 967.91 and a plot ratio of about 0.63. The building density is about 30%. [1]
▼农科基地展示中心外观,exterior view of the exhibition center of Dayi agricultural science base
2. 集体记忆的重塑——传统建筑符号的回应
2. Reconstruction of collective memory — response of traditional architectural symbols
作为承载着集体记忆的场所空间,这关乎于世代生活于此的居民的情感与记忆的共鸣。组成川西传统民居建筑特征的元素有许多,表层的、深层次的、积极地、消极的,我们没有简单的“拿来主义”式的模仿传统,而是对其建筑特征进行深入的研究分析,提取最主要的元素并且在设计过程中进行现代的转译,从而达到川西居民的集体记忆的重塑。如何在抽象转译过程中延续其集体记忆,这是一个需要反复推敲的过程。
形成川西传统民居建筑特征的因素有很多,气候、历史事件等都对其有着极大的影响。川西平原地势平坦且气候宜人,为亚热带湿润季风气候,年平均温度约为18°C,同时因为降雨量较多,又有“雨都”之称,同时川西平原历史上也是一个移民非常频繁的地区,本土文化与外来文化持续的产生碰撞、沟通与融会,这些都不断对其建筑风格产生影响,逐渐形成今天的川西民居。
As a space carrying collective memory, it is related to the resonance of emotion and memory of residents living here for generations. There are many elements that make up the architectural features of traditional residential buildings in Western Sichuan. They are superficial, deep, positive and negative. Instead of simply imitating the tradition, we do in-depth research and Analysis on their architectural features, extract the most important elements and carry out modern translation in the design process, so as to achieve the reconstruction of collective memory of residents in Western Sichuan. How to continue the collective memory in the process of abstract translation is a process that needs to be studied over and over again.
There are many factors that form the characteristics of traditional residential buildings in Western Sichuan, and climate and historical events have a great impact on them. Western Sichuan Plain is a subtropical humid monsoon climate with a flat terrain and pleasant climate, with an annual average temperature of about 18 ° C. At the same time, it is also known as the “rain capital” due to the large amount of rainfall. At the same time, Western Sichuan Plain is also a region with frequent immigrants in history. The continuous collision, communication and integration of local culture and foreign culture have an impact on its architectural style, Gradually formed today’s western Sichuan dwellings.
2.1 干栏式建筑形式的转译
2.1 Translation of dry column building form
川西传统建筑形式,追源溯本,不得不提到干栏式建筑。由于气候与功能需求等因素,干栏式建筑一般底层架空,楼面住人,围护结构采用木柱排列的形式。一方面底层架空及满足川西地区多雨潮湿的防潮要求,同时也可用于养殖与种植,满足功能的便捷性。我们在设计过程中一定程度上延续了此建筑形式,底层架空作为开放式的种植展览空间,二层的建筑立面由玻璃幕墙与钢结构杆件构成,其搭建形式经过有意识的美学设计,在满足力学合理性的同时,也呼应了传统川西民居立面“穿斗格子墙”的建筑特征。
▼干栏式建筑示意图,diagram of the dry column building form
Western Sichuan’s traditional architectural form, tracing back to the source, has to mention the dry column architecture. Due to climate and functional requirements and other factors, the ground floor of dry fence building is generally overhead, and the floor is occupied by people. The enclosure structure is arranged in the form of wooden columns. On the one hand, the bottom layer is overhead and meets the moisture-proof requirements of rainy and humid areas in Western Sichuan. On the other hand, it can also be used for breeding and planting to meet the convenience of functions. In the design process, we have continued this architectural form to a certain extent. The ground floor is overhead as an open planting exhibition space. The second floor building facade is composed of glass curtain wall and steel structural members. Its construction form has been consciously designed to meet the mechanical rationality, while also echoing the architectural characteristics of the traditional West Sichuan residential Facade “through the bucket lattice wall”.
▼本案对干栏式建筑的转译,the translation of dry column building form
▼建筑底层架空作为开放式的种植展览空间,the first floor is elevated to serve as an open display area
2.2 连绵屋顶的转译
2.2 Translation of continuous roof
传统川西民居的多采用双坡顶的建筑形式,且纵横相连,连绵起伏的大屋顶构成川西居民在檐下来往穿梭的极具生活气息的微型小世界。其屋顶形式多为有悬山与硬山两种,屋面一般采用小青瓦铺设且再屋脊处设有复杂的饰物,我们在设计过程中采用抽象处理的设计手法,只提炼出双坡顶的基本屋顶符号,通过多层次、有机的折叠变化来进行重构,结合现代的建造工艺技术,通过现代化的转译,希望在保留传统川西建筑“大屋顶覆盖”的集体生活记忆的同时,也充分体现了农业科研展示基地所应体现的科技感。
▼川西传统民居屋顶形式示意图,diagram of the roofs of the traditional dwellings in western Sichuan
The traditional houses in Western Sichuan mostly adopt the building form of double slope roof, which is connected vertically and horizontally. The undulating big roof forms a tiny world full of life atmosphere for the residents in Western Sichuan to shuttle under the eaves. There are two kinds of roof forms: suspended hill and hard hill. The roof is generally paved with small green tiles and there are complex ornaments at the ridge of the roof. In the design process, we use the design method of abstract treatment, only extract the basic roof symbols of the double slope roof, and reconstruct them through multi-level and organic folding changes. Combined with modern construction technology, through modern translation, we hope that It is hoped that while retaining the collective life memory of “big roof covering” of traditional buildings in Western Sichuan, it also fully embodies the sense of science and technology that the Agricultural Research Exhibition base should embody.
▼本案对川西传统民居屋顶形式的现代转译,the translation of continuous roof
2.3色彩元素的提取
2.3 extraction of color elements
▼川西传统民居场景图片像素化色彩元素的提取,the extraction of the color elements of the traditional dwellings in western Sichuan
▼项目结构及材料详解,material and structure details
▼本案采用的纤维水泥板节点示意图,details of the fiber cement boards used in the project
▼本案采用的纤维水泥板示意图,diagram of the fiber cement boards used in the project
Influenced by the regional factors of construction technology and materials, the architectural color of traditional houses in Western Sichuan presents a kind of elegant and natural style as a whole. We have done a lot of pattern collection and Research on the local houses in the early stage, and then through the pixel extraction of the image color elements, we get the principles for modern translation. The simple imitation of tradition means the absence of the current era. We try to inherit the traditional architectural form of Western Sichuan on the basis of the times, and choose the light-sensitive high-density cement fiberboard as the material of the building roof and part of the facade. Some of the walls choose the ash white volcanic rock and wood grain veneer, which not only continues the sense of simplicity of the traditional houses, but also plays a role in the sense of simplicity Advantages of modern science and technology in environmental protection and energy conservation.
▼本案对川西传统民居色彩元素的现代转译,the translation of the color elements
▼建筑外观局部,墙面材料选择光敏高密度水泥纤维板、灰白色火山岩与木纹贴面等,partial exterior view of the exhibition center, walls are made of photosensitive high-density cement fiberboards, off-white volcanic and wooden veneer
2.4 挑檐和檐廊
2.4 Cornice and veranda
川西传统民居多设有挑檐与檐廊,其在空间体验上与功能使用上均有着非常积极的意义。挑檐与檐廊一方面形成了室内外之间过渡的灰空间,丰富了空间体验;一方面在炎热且多雨的川西地区起到遮阳躲雨的作用,同时对墙体也起到一定的保护作用。本案采用钢结构体系,以现代的建造技术营造出架空层、大面积檐下灰空间及外延挑台,附以底层地景式的建筑形式使得檐下空间尺度更为多变灵动,丰富与立体。来往人群在其自由穿梭与停留,在“室外空间”——“半室外空间”——“半室内空间”——“室内空间”中转换,配以自然绿化对空间的嵌入构造出宜人的空间场所。
Most of the traditional houses in Western Sichuan have cornices and porches, which are of great significance in space experience and function use. On the one hand, cornice and eaves Gallery form the transition gray space between indoor and outdoor, enriching the space experience; on the other hand, they play a role of sun shading and rain shelter in the hot and rainy Western Sichuan area, and also play a certain role in protecting the wall. In this case, the steel structure system is adopted, and the modern construction technology is used to create an overhead floor, a large area of gray space under the eaves and an extended cantilever platform. The architectural form of ground view at the bottom makes the space scale under the eaves more flexible, rich and three-dimensional. People who come and go freely shuttle and stay in the “outdoor space” – “semi outdoor space” – “semi indoor space” – “indoor space”, with the embedding of natural greening into the space, a pleasant space is constructed.
▼本案对川西传统民居檐廊空间的现代转译,the translation of the cornice and veranda
▼檐下的大面积灰空间及外延挑台,the transition space and terrace under the cornice
2.5 小结
2.5 Summary
我们在设计的过程中始终秉持着一种批判性怀旧的态度,不止流于表像层面的传承,而是对川西传统民居的建筑特征进行深层次的挖掘,在设计过程中通过“解构”的方式进行偏移、重组、抽象等手法对川西传统居民的集体记忆场所进行重构,同时我们也结合了现代新的建造技术工艺以及客观需求进行重新塑造。以当代的形式语言重构传统元素,以当代的建构方式实现在地的场景表达,可能是当前乡村建设营造中较为适宜的理念和趋向。[2]
In the process of design, we always hold a critical attitude of nostalgia, which is not only the inheritance of surface image level, but also the deep excavation of the architectural characteristics of traditional residential buildings in Western Sichuan. In the process of design, we reconstruct the collective memory place of traditional residents in Western Sichuan by means of “Deconstruction” such as migration, reorganization and abstraction. At the same time, we also combine the present with the present New generation of construction technology and objective needs to be reshaped. It may be a more appropriate idea and trend in the current rural construction to reconstruct the traditional elements with the contemporary formal language and realize the scene expression in the place with the contemporary construction way.
3. 场所营造——与场地的融合共生
3. Site construction — Integration and symbiosis with the site
诺伯舒兹①提出“场所是出发点也是我们探讨结构的目标,一开始场所是以一种既有的且透过自发性经验的整体性显现出来,最后经过对空间及特性的观点分析之后便像是一个结构世界。”[3]这里涉及到人为场所与自然场所的关系,我们在设计过程中充分建筑与自然之间的对话,试图营造的空间为自然景观的一种延伸。
农科基地功能分为展示与办公两块,为整个项目的农业技术的研发与展示中心。为体现田园生活的标志性,农科基地充分贯彻与场地融合共生的理念,强调建筑空间与田园景观的延续性,在展示的这一块有别于传统的参观者被动的接受信息的模式,而是采用 “开放式” “游览式” “参与式”等多层次的展示形式。其功能不再为单纯的相对封闭的陈列展示,而是强调空间与场地的对话以及参观者的参与性,使之更为深刻的体验田园生活文化。
农科基地的底层架空为农业种植的展示区,采用半室外开放式展示形式,为田园景观对建筑的空间的一种延续。地景式的建筑形式也构建出一个轻松愉快的交流沟通平台。沿底层展厅通往二层的流线设有活动平台以及植物展示架,既展示了一种新的种植技术,同时也是田园景观往二层建筑的一种延续,营造一种游览式的展示空间,建筑在其中作为一种媒介,链接人与自然。
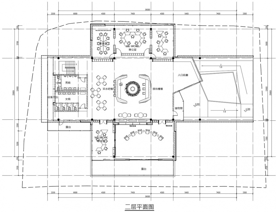
农科基地的二层功能为研发办公与室内展示中心,设有办公、休闲、多媒体展示与相关配套功能。建筑采用“十字”形态的形式,立面大面积的采用玻璃幕墙,使建筑对田园景观呈现一种“开放对话”的姿态,能全方位、最大程度的享有田园景观视野。
▼开放式、游览式展示空间示意图,diagram of the open and tour-formed display space
▼室内展示与研发办公空间示意图,diagram of the indoor exhibition center and R & D office
Norbert Schutz (1) put forward that “place is the starting point and the goal of our discussion of structure. At first, place appears as a kind of existing integrity through spontaneous experience, and at last, after the analysis of space and characteristics, it looks like a structural world.” [3] This involves the relationship between man-made places and natural places. In the process of design, we should make full use of the dialogue between architecture and nature, and try to create a space that is an extension of natural landscape.
The function of agricultural science base is divided into display and office, which is the R & D and display center of agricultural technology of the whole project. In order to reflect the landmark of rural life, the agricultural science base fully implements the concept of integration and symbiosis with the site, and emphasizes the continuity of architectural space and rural landscape. In this part of the exhibition, different from the traditional visitors’ passive mode of receiving information, it adopts multi-level display forms such as “open”, “tour” and “participation”. Its function is no longer a simple relatively closed display, but emphasizes the dialogue between the space and the venue as well as the participation of visitors, so that it can experience the rural life culture more profoundly.
The ground floor of agricultural science base is overhead for the exhibition area of agricultural planting, which adopts the semi outdoor open display form, which is a continuation of the rural landscape to the building space. The landscape architecture forms a relaxed and pleasant communication platform. Along the flow line from the ground floor exhibition hall to the second floor, there are activity platforms and plant display stands, which not only show a new planting technology, but also a continuation of rural landscape to the second floor building, creating a kind of sightseeing exhibition space, in which the building, as a medium, links people and nature.
The second floor function of agricultural science base is R & D office and indoor exhibition center, which has office, leisure, multimedia display and related supporting functions. The building adopts the form of “cross”, and the facade adopts the glass curtain wall in a large area, which makes the building present an “open dialogue” attitude to the rural landscape, and can enjoy the rural landscape vision in all directions and to the greatest extent.
▼二层空间,设有办公、休闲、多媒体展示与相关配套功能,the second floor of the exhibition center with office, leisure, multimedia display and related supporting functions
4. 生态绿色环保理念下的新材料及新技术的运用
4. Application of new materials and technologies under the concept of ecological green and environmental protection
4.1 结构体系
4.1 Structure system
本方案采用全装配式钢结构,结构系统由钢(构)件构成,钢结构、围护系统、设备与管线系统和内装系统做到和谐统一的装配式建筑,具有以下优点:(图表11)
(一)、装配率高,易拼装
(二)、抗震性能好
(三)、建筑总重轻
(四) 、环保效果好( 可回收、再利用、 降低浪费)
(五) 、基本无湿作业
(六)、减少工地建筑垃圾, 扬尘减少
(七)、施工速度快,现场噪音小
(八)、无需夜间施工,减少夜间照明
The scheme adopts fully assembled steel structure, and the structural system is composed of steel (members). The steel structure, enclosure system, equipment and pipeline system, and the interior decoration system are harmonious and unified. It has the following advantages: (Figure 11)
(1) High assembly rate, easy to assemble
(2) Good seismic performance
(3) Total weight of building
(4) Good environmental protection effect (recyclable, reused and waste reduction)
(5) Basically no wet operation
(6) Reduce construction waste and dust
(7) Fast construction speed and low noise on site
(8) No need for night construction, reduce night lighting
4.2 新型环保材
4.2 new environmental protection materials
本项目采用100% 无石棉、绿色安全环保的纤维水泥板,材料具有以下优点:(图表12、图表13)
(一)、不产生毒气,无放射污染,环保生态
(二)、不燃性A 级,遇火无毒气释放,烟指数为零
(三)、质轻高强,降低建筑结构成本
(四)、优质纤维和特制水泥合成,性能稳定性卓绝,受潮度影响小
(五)、保温隔热性能好,降低能耗
The project adopts 100% asbestos free, green, safe and environmental friendly fiber cement board, with the following advantages: (Fig. 12, 13)
(1) No toxic gas, no radiation pollution, environmental protection and ecology
(2) Incombustible class A, no toxic gas release in case of fire, zero smoke index
(3) Light weight and high strength, reducing the cost of building structure
(4) High quality fiber and special cement, excellent performance and stability, little affected by humidity
(5) Good heat preservation and insulation performance, reduce energy consumption
4.3 小结
4.3 summary
在绿色建筑越来越被人所重视的当下,农科基地展示中心在设计过程中充分考虑了生态绿色环保理念下的新材料及新技术的运用,贯彻绿色建筑降耗,节约资源等原则,并保持建造技术、建造形式的“新”与川西传统民居的“旧”之间的平衡点。
Nowadays, more and more attention has been paid to green building. In the design process, the exhibition center of agricultural science base has fully considered the application of new materials and technologies under the concept of ecological and green environmental protection, implemented the principles of reducing consumption and saving resources of green building, and maintained the balance between the construction technology, the construction style of “new” and the “old” of traditional residential buildings in Western Sichuan.
5. 结语
5. Conclusion
经历中国近代史的沧桑及近数十年西方建筑文化的影响,中国传统建筑文化受到了极大的冲击,而部分的中国建筑师往往只采用单纯复古的形式来表达建筑的地域情怀,这里存在着一些现代的生活方式及文化观念与传统建筑形式的冲突。建筑是生活场景发生的场所而非单纯的“博物馆”,如何表达建筑的“真实性”、让人找到一种归属感,这是值得我们深思的问题。本文对川西传统民居的建筑形式进行深入研究,并对其现代转译的原则与方式进行了一些详细分析,要是能为当代建筑设计的地域创作手法提供一些参考价值,便是本文最大的意义。
Through the vicissitudes of modern Chinese history and the influence of western architectural culture in recent decades, Chinese traditional architectural culture has been greatly impacted, while some Chinese architects often only use the form of simple retro to express the regional feelings of architecture, there are some conflicts between modern living methods and cultural concepts and traditional architectural forms. Architecture is the place where the life scene takes place rather than the simple “Museum”. How to express the “authenticity” of architecture and let people find a sense of belonging is a problem worthy of our deep thinking. This paper makes an in-depth study on the architectural forms of traditional folk houses in Western Sichuan, and makes a detailed analysis on the principles and methods of their modern translation. If it can provide some reference value for the regional creative methods of contemporary architectural design, it is the greatest significance of this paper.
▼一层平面图,1F plan
▼二层平面图,2F plan
▼屋顶平面图,roof plan
▼东北立面图,northeast elevation
▼西北立面图,northwest elevation
▼1-1剖面图,1-1 section
[1][ 中国 ] 阮国诗 . 稻香渔歌”田园综合体系列2:农科基地展示中心,XXL建筑研习社 10/2019
[2][ 中国 ] 孟凡浩、丁倩琳 . 乡村公共空间营造东梓关实践再思考——杭州富阳东梓关村民活动中心,新建筑 4/2019
[3][ 挪威 ] 诺伯舒兹 . 场所精神——迈向建筑现象学. 施植明译,武汉: 华中科技大学出版社 .2010
项目名称:农科基地展示中心
设计方:成都天华西南建筑设计有限公司(杭州XXL设计团队)
设计时间(起迄年月):2019.05-2019.07
建设时间(起迄年月):2019.08-2019.10
主创建筑师: 谢晓璐 、柳春玮、阮国诗
设计团队完整名单:张欢涛、刘艺瑶、李旭飞、储威
施工图:华优建筑设计院有限责任公司
景观:上海胤秀景观设计公司
室内设计:四川创视达建筑装饰设计有限公司
项目地址:成都市大邑县董杨镇
建筑面积:967.91㎡
摄影:聂欣、宋浅深 、唐衫衫
客户:朗基建设集团
作者:阮国诗(ruanguoshi) 中国美术学院建筑学士/成都天华西南建筑设计有限公司,
谢晓璐(xiexiaolu) 国家一级注册建筑师/高级工程师/同济大学建筑学硕士/上海天华建筑设计有限公司
客服
消息
收藏
下载
最近


























