查看完整案例


收藏

下载
我们建造的物质环境 既是物质现象又是社会现象。
The physical environment we build is both a material phenomenon and a social phenomenon.
▼改造后的室内空间,view of the interior after renovation
改造前
Before transformation
业主是一个二胎家庭,为了给孩子更好的教育,一家六口从优越的130m²搬到不足70m²,有三十年房龄的学区房。70M²的户型,其中20M²户外庭院,50M²室内面积。房子通风性差,潮湿又阴暗,隔音差。一家六口共用一平方的洗手间。由于房子的隔音差,严重影响一家人的休息、睡眠、生活。
The owner has two children. In order to provide children with better education, this six-people family moved from a house of 130m2 to an old house of less than 70m2 in a school district which has been built for 30 years. This house covers an area of 70M2, including 20M2 of outdoor courtyard and 50M2 of indoor area. Poor ventilation, damp and dark, poor sound insulation. A family of six sharing a one-square bathroom. The poor sound insulation of the house seriously affects the rest, sleep and life of the family.
▼改造前后空间对比,space before and after renovation
改造核心六难题:空间布局不合理;三世同堂居住空间小;室内采光极差、通风不佳;收纳空间不足;一楼地面潮湿;老工房隔音效果差。每一步都要在仅存的空间里找到最好的平衡点 ,为委托人保留美学的同时也拥有同样的功能性。
Six core difficulties of transformation: Unreasonable space layout; Small living space for three generations; Poor indoor; lighting, poor ventilation; Insufficient storage space; Wet floor on the first floor; Old workshop has poor sound insulation. Every step requires the best balance point in the remaining space. Provide the functionality while preserving aesthetics for the client
▼设计手稿,Design manuscript
01
平面规划
Plane Planning
原本已经不大的房子被厚厚的承重墙一分为二。设计师将南北面的老旧小窗替换成整面的大玻璃窗,打开南北对流通风系统,让阳光进入。设计把业主的愿望清单假设成一个个方形模块,利用承重墙的分隔把功能分为“动” “静”分区。空间与空间中动线连接, 面积复合使用。
The small house is divided by the thick load-bearing wall. Replace the old small window on the north and south sides with a large glass window. Open the north-south convection ventilation system and let the sunlight in. We assume the owner’s wish list as square modules. Use the load-bearing wall to divide the house into activity area and quiet area. Connect the space with the moving line, composite use of the area
▼从客厅望向北侧房间,南北通透,look from the living space to the north end of the house
▼落地窗带来充足采光,natural light comes in from the French window
▼南北对流通风系统,ventilation system
▼功能分区,function division
在施工过程中发现楼层底下有60CM的30年积水,这导致一楼潮湿、滋生霉虫、臭气积蓄,必须停工,寻求解决根源方案。第一步,打开房屋地板,把整栋排楼底部积压30年积水抽出;第二步, 用专业烘干灯底部烘一周;第三步,底部烘干后做封闭防水层,彻底解决潮湿问题。
During the construction process, it is found that there is a standing water with a depth of 60CM for 30 years under the floor. This makes the first floor wet and breeds mold and odor. It is necessary to stop working and seek solutions to the root cause. First we open the floor of the house and pump the 30-year standing water under the entire building. Then we bake the bottom with a professional drying lamp for a week. In the end we make a sealed waterproof layer after drying the bottom to solve the problem of humidity completely
▼处理地下室积水,铺设防水层,pump the standing water in the basement and build the waterproof layer
02
移门系统
Sliding door system
通过移门,可以增加空间的尺度,同时产生环形路线,令小朋友既安全又无忧无虑的玩耍、活动。该系统不单纯是设计“童趣”,更多的是创造环境,让小朋友的成长以及追寻其生活轨迹,在安全环境中学习成长,来实现一个可持续的成长教育,需协助他们形成自身的生活轨迹,书柜上的“洞口”也成为连接父母及孩子的一个窗口。儿童了解里面和外面,必须进去、出来,通过弧形线条把空间的锐角消除,把角落的空间释放出来
Through this sliding door, you can increase the scale of the space and create a circular route to make the children play safe and carefree. We are not simply designing “children’s interest”, but more about creating the environment, letting children grow up and pursue their life trajectories, learning and growing up in a safe environment, to achieve a sustainable growth education, and to help them form their own life traces, and the “hole” on the bookcase also becomes a window to connect parents and children. Children understand the inside and outside, and must go in and come out. Eliminate the sharp angle of the space by curved lines and release the space in the corner
▼连通的学习区和儿童房,study room and children’s room
▼通过推拉门创造适合儿童成长的环境,sliding doors create a comfortable growing environment for children
▼主卧室,master’s bedroom
▼移门系统在空间中形成环路,circulation created by the sliding door system
03
灯光系统
Lighting system
自然采光之外,设计一套智能化调光系统,保护儿童视力健康。在客厅区与学习区智能的调光系统可以在聚会模式,学习模式,用餐模式,休闲模式之间转换。
In addition to natural lighting, design a set of intelligent dimming system to protect children’s vision health. Intelligent dimming system in the living room area and study area could change in for modes: party mode, learning mode, dining mode, leisure mode
▼不同的灯光模式,different lighting mode
▼灯光系统创造明亮舒适的生活环境,lighting system ensures a bright and comfortable system
04
收纳系统
Storage system
设计六大收纳系统:玄关收纳,客厅收纳,厨房收纳,冰箱收纳,衣物收纳,书物收纳。共有17M³体积 ,相当于500个20寸的行李箱。
Design six major storage systems: Entrance storage, Living room storage, Kitchen storage, Refrigerator storage, Clothing storage, Book storage. The total storage volume is 17M³, equal to 500 20-inch suitcases.
▼收纳系统分解示意,diagram of the storage system
▼丰富的收纳系统,rich storage system
客厅一旁的的餐桌桌脚安装了定向轮,可轻松挪动承担一部分的就餐功能,亦可满足往日父母工作、小朋友绘画学习之用。设计依然考虑了多人正式就餐的需求。
The directional wheel is mounted on the table legs at the side of the living room. It can be easy to move and perform part of the dining function. It can also be used for parents and children to do daily work and to paint and study respectively. The design still considers the need of formal dining for multiple people.
▼可移动餐桌满足不同使用需求,movable table meets different usage requirements
客厅及主卧各有一个洗手间,保证干湿分区以防滑倒,地面也铺设了防滑瓷砖。
There is a washroom in the living room and master bedroom respectively, ensuring that the wet and dry areas are separated to prevent from slipping down, and the floor is also laid with non-slip tiles.
▼客厅内的浴室,干湿分离,bath room in the living room with wet separation design
▼主卧内的浴室,bathroom in the master’s bedroom
内厨房被设计成U型,操作仅仅需要一个转身,可同时容纳三人,瓶瓶罐罐亦有特定的放置空间。
The inner kitchen is designed to be U-shaped and operation only needs one turn. It can accommodate three people at the same time, and tins and bottles can also be stored in a specific space.
▼U型厨房,设置充裕的储物空间,U-shaped kitchen with plenty of storage space
生活有很多的繁忙和各种因素,打乱了对一切美好的期望。通过对家的合理改造,找到生活的本质。房子换了≠生活的品质换。孩子在自由当中找到规则,拥有自己的时间和空间,生命才会完整成长。
Life has a lot of busyness and various factors to disorganize all the good expectations. Through reasonable transformation of the house, you’ll find the nature of life. The house has changed ≠ The quality of life has changed. Children find rules in freedom. Have their own time and space and they will grow very well in their life.
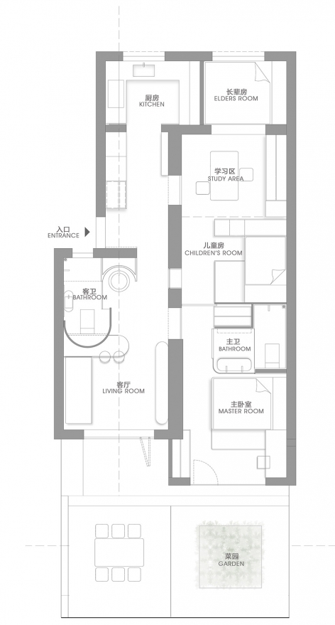
▼平面图,plan
项目名称:落差巨大的家
设计:PONE ARCHITECTURE
项目设计 & 完成年份:2018年
主创及设计团队:梁穗明&PONE ARCHITECETURE
项目地址:杭州
建筑面积:70㎡
摄影师:恩万建筑影像
Project name: A House with Huge Differences Design: PONE ARCHITECTURE
Design & Completion Year: 2018
Leader designer & Team: 梁穗明&PONE ARCHITECETURE
Gross Built Area: 70㎡
Photo Credits: 恩万建筑影像
客服
消息
收藏
下载
最近


























