查看完整案例


收藏

下载
该项目是对位于哈克尼的Mews住宅进行全面的改造更新,改造后将成为一个年轻家庭的居所。
A complete reconfiguration and extension of a Mews House in Hackney, for a young, growing family.
▼室内一览,interior view
房屋的原始结构是一栋两层砖房,整个住宅被夹在一排建筑中,位于百老汇市场的后面。因此,整个内部空间让人感觉幽闭而局促,几乎没有自然光射入房间。 为了将这个小小的住宅打造成为一个更大、更实用的现代住宅,我们将运用创造性的方式对空间进行改造。
The original two-storey, brick property was embedded amongst a series of buildings at the back of Broadway Market, and as a consequence, felt claustrophobic, confined, and had little source of natural light. To turn this small property, into a larger, more usable modern home, we had to be inventive in its use of space.
▼带大开窗的客厅区域,the living room with a large window
▼住宅内的家庭办公区,the home-office
▼住宅办公室与起居区相通,interior view
▼家庭办公区采用折叠墙进行遮挡,这样也能作为第三个卧室使用,the home-office also doubles as a third bedroom, which can be closed off with its bespoke-built folding wall.
我们重新设计了楼层间的关系,以此来增加底层的层高,整个建筑分为三层,这样的设计促进了不同区域之间的互动交流。更新后的家庭办公区将与起居区相通,开放式厨房在起居和用餐空间的上方。家庭办公区采用定制的折叠墙进行遮挡,这样也能作为第三个卧室使用。
We reconfigured the floor levels to increase the ceiling heights across a staggered ground floor, which is comprised of three split-levels, promoting views and interaction between different areas of the home. The new home-office opens up to the living area, and the open-plan kitchen looks down unto the living and dining spaces below. The home-office also doubles as a third bedroom, which can be closed off with its bespoke-built folding wall.
▼白色为主基调的厨房空间,white as color-based kitchen space
▼厨房中都使用类似的材料,来增强了空间的连续感, the kitchen using similar materials to add the feeling of continuous space
设计师在整个房屋改造中都使用类似的材料,从而增强空间的连续感,而不是单个房间的感觉。同时,在楼室内加入更大的木窗和楼梯间的屋顶灯,让房屋的中部和后部的厨房都拥有更多采光,营造出一个宁静而明亮的室内空间。此外,设计师对居家极为重要的储存空间也进行了重新设计,将它们最大化地隐藏在房屋的各个角落中。
The feeling of continuous space, rather than individual rooms, is enhanced by using similar materials throughout the house. To create a calm, light interior we added larger timber windows and a full-width roof-light over the stair – bringing more natural light into the centre of the house and to the kitchen at the rear. In addition, storage, important to the family home, was maximised and concealed throughout.
▼带大屋顶灯的明亮楼梯间,bright stairwell with large roof light
▼储藏空间被最大化地隐藏在房屋的各个角落,shortage was maximised and concealed throughout
▼与楼梯间相结合的储藏空间,storage combining with the staircase
▼卫生间,the bathroom
▼改造轴测图,the rebuilding axon
▼建筑轴测图,the building axon
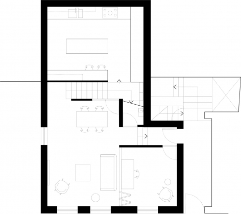
▼一&二层平面图,the 1st & 2rd floor plan
▼三层平面图,the 3rd floor plan
客服
消息
收藏
下载
最近





















