查看完整案例


收藏

下载
缘起|Origin
项目位于湖北省孝感市,场地是典型的江汉平原的丘陵地形。在项目伊始,设计师在考察地形后,将建设的基地选择在与乡道对面的水塘边,希望从高速下来的车辆,在拐进这条两侧种满意杨林的乡间道路后,第一眼可以远远看到建筑的全貌,从而形成一个对景的关系。
The project is located in Xiaogan City, Hubei province. The site is a typical hilly terrain in Jianghan Plain.At the beginning of the project, the designer chose the construction base at the side of the pond opposite the township road after examining the terrain, hoping that the vehicle from expressway, after turning into this country road which planted with populus, could see the whole picture of the building in the first eye, thus forming a relationship between the scenery.
▼场地全貌,aerial view
▼远眺建筑,looking far from the building
相地|Refined selection of a site
在方案构思阶段,设计师多次往返现场,发掘基地的特质;阶梯型田埂成为设计的一个被刻意强调的自然要素,主创设计师李涛将一个长条形的体量搁置在水塘边的三级田埂高差之上,刻意保留的1500高差自然就形成了建筑室内或内庭院的两级空间。这个高差同时成为建筑外部形象的直接反应——坡屋面:较低的临水屋檐一侧,自然对应的较低的田埂一侧,檐口高度4米;较高的屋檐一侧,对应较高的田埂一侧,檐口高度6米;而内部高差的处理,在不同空间里有着不同的表达方式,客观地反应出空间的功能和节奏。
During the plan stage, the designer went there and back between the scene and excavated the characteristics of the base, and the ladder ridge became an important natural element in the design, and the Chief Designer Li Tao put a long strip on the three level ridge height of the pond, and the two level space of the inner courtyard was formed naturally by the 1500 height difference which retained intentional. The height difference is also a direct reaction to the external image of the building – sloping roofs,which is in the lower side of the cornice, correspond to the lower side of the ridge, the cornice height is 4 meters, the higher cornice correspond to the higher side of the ridge, and the height of 6 meters; and the internal height difference has different expression mode in different spaces. This way objectively reflects the function and rhythm of space.
▼建筑概览,overview
水平线|Horizon
临水一侧屋檐高度4米,建筑总长度104米,长度和高度的比例关系形成了本项目的最大特征:建筑仿佛趴在水塘边,形成一个低矮水平谦虚的形象;同时,主体建筑平行于乡道,从乡道望过去,多条水平线集聚:乡道的护栏、水塘的边线、建筑前面的几级田埂、建筑的临水一侧的檐口线,建筑高侧的檐口线,内院及入口长廊的屋顶水平线,以及建筑屋顶的观景平台的水平线。这些水平线强化了江汉平原丘陵地形的特征。
The height of the eaves on one side is 4 meters high, the total length of the building is 104 meters, the proportion of length and height has formed the greatest feature of this project: the building seems to lie on the side of the pond to form a low level and modest image; at the same time, the main building is parallel to the Township Road, and from the Township Road, many horizontal lines gather: the guardrails of the township road. The border line of the pond, a few levels of ridge in front of the building, the cornice line on the water side of the building , the cornice line on the high side of the building, the horizontal line of the roof of the inner and entrance corridors, and the horizontal line of the viewing platform of the building roof. These horizontal lines strengthen the characteristics of hilly terrain in Jianghan Plain.
▼104米长的水平建筑,the total length of the building is 104 meters
场地漫步|A walk on the ground
如前所述,项目选址在乡道隔着水塘的一侧,来拜访的游客,会在乡道的意杨林空隙里第一眼瞥见建筑完整的正立面形象,长且低矮;继续拐进项目的入口道路,会以一个45度角看到建筑的全景,拉长的线条带来透视感的收缩,加强了建筑的长度和水平观感;然后沿着田埂,步入长廊,到达入口门廊,才能拾级而上到门厅。或者是穿过门厅,看到建筑的较高立面的一侧。漫步带来建筑不同的观感,但也会发现这个建筑并不存在一个传统设计意义上的“主立面”,犹如柯布西耶的萨伏伊别墅,没有主要立面,也没有去强化入口形象,这是设计师的刻意为之,也是回应江汉平原这种平坦场地的无方向感。
As mentioned above, the site is located on the side of the pond at the township road. Visitors will see the whole image of the building —long and low —in the empy space of the populus in the Township Road, and continue to turn into the entrance road of the project. It will see the panoramic view of the building at a 45 degree angle, and the elongated lines bring the contraction of perspective. The length and level feeling of the building were enhanced; then, along the ridge of the field, the promenade and the entrance porch were taken to reach the hall. Or across the hall to see the side of the higher facade of the building. The walk brings a different view of the architecture, but it will also find that the building does not have a “main elevation” in a traditional design, like Corbusier’s Savoy villa, without major facades, nor to strengthen the image of the entrance. It is the designer’s intention to respond to the sense of direction in flat site of Jianghan plain.
▼建筑沿水面展开,The building unfolded along the the water
内部空间节奏|Internal space rhythm
在统一的大屋面下,设计师组织了五个盒子,两个内院,三段长廊,一段直跑楼梯,以及这些实体盒子与屋面围合的“剩余空间”,共同形成了一个外部形象克制,而内部尤其丰富的游走空间。五个盒子遵循着:大、小、最大、小、再大的尺度节奏。游走在五个盒子之间的“剩余空间”,也因为屋顶与盒子的高低,内院与外部稻田的大小,视线的贯穿与遮挡,以及坡屋顶开洞与密实的对比,形成不同的节奏。
Under the unified roof, the designer organized five boxes, two inner yards, three corridors, a straight run staircase, and the “remaining space” of these physical boxes and roofs, forming an external image of restraint, and the interior of a particularly rich wandering space. The five boxes follow the rhythm of scale: big, small, the biggest, small, and then big. The “remaining space” between the five boxes, formed a different rhythm because of the height of the roof and the box, the size of the inner and outer rice fields, the penetration and occlusion of the line of sight, and the opening and the dense contrast of the sloping roof.
▼第一个盒子:咖啡厅和展厅,First box,cafe and exhibition area
▼第二个盒子,卫生间&化妆间,Second box,toilet&dressing room
▼卫生间,toilet
▼化妆间等候空间,Waiting room
如前所述,建筑的横剖面是以田埂的1500高差为依据来设计的,五个盒子与这个高差的关系顺势成为室内空间的设计手法,同时高差也决定了室内的功能。
第一个盒子,高处是展厅,临水一侧低处是咖啡厅,两者之间的高差成为咖啡厅的四人卡座区,高差之间还植入了一个小盒子,它是高处的影音室,又是低处的咖啡吧台的背景墙;第二个盒子封闭的一侧是卫生间,开放向内院的是化妆间;第三个盒子是婚礼堂,借助高差自然形成了观众坐席;第四个小盒子是接待厅,第五个盒子高处是会议室,低处临水是餐厅,两者的高差被中间插入的直跑向屋面平台的楼梯所截断,把开放和私密两种空间性质直接分开。
As mentioned earlier, the cross section of the building is designed on the basis of the 1500 height difference of the ridge. The relationship between the five boxes and the height difference becomes the design technique of the interior space, and the elevation also determines the function of the interior.
The first box, the height is the exhibition hall, the lower side of the water side is the cafe, the high difference between the two becomes the four seat area of the cafe, and a small box is inserted between the height and it is also the background wall of the coffee bar; the second boxes are sealed on the side of the bathroom and open to the inner courtyard. The third box is the wedding hall,which formed the audience’s seat with the help of the height difference; the fourth small boxes are the reception hall, the fifth boxes are in the conference room, the lower side of the water is the restaurant, the high difference between the two is truncated by the middle of the stairs, which runs straight to the roof platform, and makes the open and private two space properties separated directly.
▼第三个盒子:婚礼堂,Third box,the wedding hall
▼婚礼堂走廊空间,Corridor space in the wedding hall
▼第四个盒子:接待厅,Fourth box,the reception hall
向上的天台|Upwards Rooftop
所有对景观的观看的方向,得到设计师刻意的控制;当游客经历一切水平的景观观感之后,会来到最后的直跑向天台的楼梯,两边清水木纹混凝土的高墙,裁剪出线性的天空,它是建筑水平感的一个反转,也是一个升华。
All the viewing direction of the landscape is deliberately controlled by the designer; after the tourists experience all the horizontal landscape, they will come to the final staircase straight to the rooftop, the high wall of the bare concrete on both sides, and cut out the linear sky. It is a reversal of the sense of architectural level and a sublimation.
▼通往天台的直跑楼梯,A straight staircase to the rooftop
▼两边清水木纹混凝土的高墙,裁剪出线性的天空,the high wall of the bare concrete on both sides, and cut out the linear sky
▼屋顶平台,rooftop platform
景观自然最大化|Landscape nature maximization
每个盒子的开窗,遵循着将外围景观限制与强化的目的。咖啡厅、餐厅和婚礼堂开窗均面向水塘,处于向自然开放的状态;尤其婚礼堂,落地窗扇可以完全打开,与室外的无边界水池一起,与水塘的水面融为一体;化妆间和接待室则面向内院,处于一种半开放的状态;而卫生间的落地窗面向一面当地毛石砌筑的景观墙,既达到开放景观的作用,又保证了私密性。
The opening of each box follows the purpose of restricting and enhancing the surrounding landscape. The cafes, restaurants and wedding hall open to the pond and open to the nature; especially the wedding hall, the floor window fan can be completely opened, together with the outside boundary pool and the water surface of the pond; the dressing room and the reception room are facing the inner courtyard, in a semi open state; and the fall ground window of the toilet faces one side of the masonry wall, which not only achieves the function of open landscape, but also ensures privacy.
▼从婚礼堂看室外景观,Looking the outdoor landscape from the wedding hall
▼婚礼堂室外平台,Wedding hall outdoor platform
一体化设计|Integrated design
本项目的设计不仅是单一的建筑设计,还是UAO从规划开始,综合建筑,景观,室内等一体化设计的一个尝试,规划合理组织了场地的竖向和交通的流线,景观保留了稻田的肌理;改造了原有村落的打谷场,形成一个篝火广场,并依托原有地形和树木,梳理出新的植物空间疏密关系,使得到达建筑主体本身的过程成为一种期待;建筑依托田埂高差的逻辑,使得室内设计水到渠成,空间节奏贯穿始终,后续的室内深化,更多考虑材料的搭接和收口,室内外的空间和质感保证了统一。
The design of this project is not only a single architectural design, but also an attempt to design integrated architecture, landscape, and interior design from the beginning of the planning by UAO, and the layout of the vertical and traffic lines of the site is organized reasonably, the landscape has retained the texture of the paddy field, and the original village’s threshing ground is reformed to form a campfire square. Relying on the original terrain and trees, the new plant space density relationship is combed, which makes the process of building to be a kind of expectation; the architecture relies on the logic of the ridge height, which makes the interior design come to a drainage, the space rhythm runs through, the subsequent interior deepening, more consideration of the overlapping and closing of the materials. Inside and outside of the space and the texture is the sense of unity.
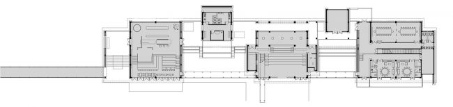
▼轴测图,axonometric drawing
▼平面图,plan
▼咖啡厅剖透视,cafe section
▼婚礼堂剖透视图,wedding hall section
▼接待区剖透视图,reception hall section
项目名称:庭瑞小镇/斗山驿镇文化会客厅
项目地址:湖北孝感
规模: 1687平米
设计单位:UAO瑞拓设计
主创设计师:李涛
设计团队:陆洲、李龙、孔繁一、申剑侠、虞娟娟、龙可诚、黄名朝、王纤惠、张杰铭
室内深化配合设计:周全、陈迪
文中分析图:徐灏悦
摄影:赵奕龙
文字:李涛 英文:徐灏悦
Project Name: Tingrui Town/The culture reception hall in Doushanyi
Project address: Xiaogan, Hubei
Area: 1687 square meters
Design unit: UAO
Founder Designer: Li Tao
Team: Lu Zhou、Li Long、 Kong Fanyi、Shen Jianxia、Yu Juanjuan 、 Long Ke Cheng、Huang mingzhao 、Wang Qianhui、Zhang Jieming
Interior Cd: Zhou quan 、Cheng Di
Analysis drawing: Xu Haoyue
Photography: Zhao Yilong
Text: Li Tao
English: Xu Haoyue
客服
消息
收藏
下载
最近




























