查看完整案例

收藏

下载
Narai即那莱王,是暹罗大城王国国王的名字,如店名所显示的,narai thai是一家地道的泰国餐厅。其设计概念来源于泰国标志性建筑中的典型色彩元素,室内层层叠叠的金色是对古建筑群的抽象化演绎,蓝色和橘红色的选用,则是基于对金、蓝、红这三种泰国传统皇家用色的考量。
Narai is the name of King Narai of Ayutthayan Empire. As is shown in the name, narai thai is an authentic Thai restaurant. Its design concept is derived from the typical color elements in Thailand’s landmarks. The layered golden color in the interior is the abstract representation of ancient buildings and the choice of blue and orange-red is based on the consideration on Thailand’s three traditional royal colors which are golden, blue, and red.
▼室内概览,interior view
餐厅位于杭州最新开幕的龙湖滨江天街,入口处设有多功能吧台,环状的形态巧妙契合了外立面的弧度,材料沿用黑色哑光铁板,在视觉上形成动态的连续性。吧台融合了接待、收银、休息等功能,可供客人在等候用餐时啜饮小憩,创造更为舒畅的体验。用餐区的划分通过围墙的分割实现,水磨石的运用使其与地面形成统一,边缘的黄铜装饰则在呼应色彩主题的同时,对区域的分隔加以强调。
The restaurant is located in the newly opened Longhu Binjiang Tianjie in Hangzhou. There is multifunctional bar at the entrance whose annular shape is skillfully fit with the radian of the exterior facade. It still uses black matte iron plate as the material, which forms visually dynamic continuity. The bar blends various functions such as reception, checkout counter, and rest area and provides customers with a place where they can have a drink or take a break when waiting for their food. In this case, customers can have a more pleasant experience in the restaurant. The division of the dining area is realized by the partition of walls. The use of terrazzo make it integrate with the floor and the brass ornaments on it’s edge not only echo with the color theme but also put emphasis on the separation of areas.
▼入口吧台,材料沿用黑色哑光铁板,bar counter at the entrance made by black matte iron plate
▼水磨石围墙和黄铜收边划分了用餐区域,terrazzo walls and brass edge divide the dining area
简洁而灵动的划分,让用餐区保有秩序感和整体性,这也得益于桌椅和围墙恰到好处的高度设置,其间成列悬挂的铜吊灯丰富着空间的层次感,芭蕉叶造型的吊扇流露着泰国风情。延绵不绝的黄铜以不同的形态分布于墙壁、桌面、吊灯以及细部的装饰,皮质座椅调和了黄铜与石材的坚硬质地,蓝色与橘红色的碰撞触发着活力。餐厅全部的家具皆为设计师的定制,黄铜吊灯来自TOUCH FEELING。
Simple and flexible division provides the dining area with sense of order and integrity which also benefit from the appropriate height setting of tables, chairs and walls. Rows of hanging brass chandeliers enrich levels of space and ceiling fans in the shape of banana leaves reveal Thai ambiance.Brass is used in walls, tabletops, chandeliers and decoration of some details in various forms. Leather seats reconcile hard texture of brass and stone and the crash between blue and orange-red triggers vitality. All the furniture of the restaurant is customized by designers. The brass chandeliers are from TOUCH FEELING.
▼用餐区,芭蕉叶造型的吊扇流露着泰国风情,dining area, ceiling fans in the shape of banana leaves reveal Thai ambiance
▼以黄铜饰面串联的用餐区域,The dining area in series with brass
墙面的壁画图样源自艺术家胡少明的装置作品,精美绝伦的造型宛如一座倒挂的金色城池,与整体空间交相辉映,暗合了泰国皇家建筑的特点。
The pattern of the mural painting originates from the installation of an artist named Hu Shaoming. The interplay of the exquisite model, which is like an upside-down golden city, and the whole space coincides with the characteristics of royal buildings in Thailand.
▼墙面壁画宛如一座倒挂的金色城池,The pattern of the mural painting is like an upside-down golden city
▼壁画细部,painting details
一侧的玻璃窗将餐厅的视线延伸至厨房,在此可以观赏到泰国厨娘娴熟的手艺,感受泰式烹饪原汁原味的魅力。
The glass window by the side draws people’ attention to the kitchen where they can enjoy Thai cooks’ proficient skills and experience the authentic charm of Thai cooking.
▼从用餐区看厨房,view from dining area to kitchen
▼厨房窗口,kitchen window
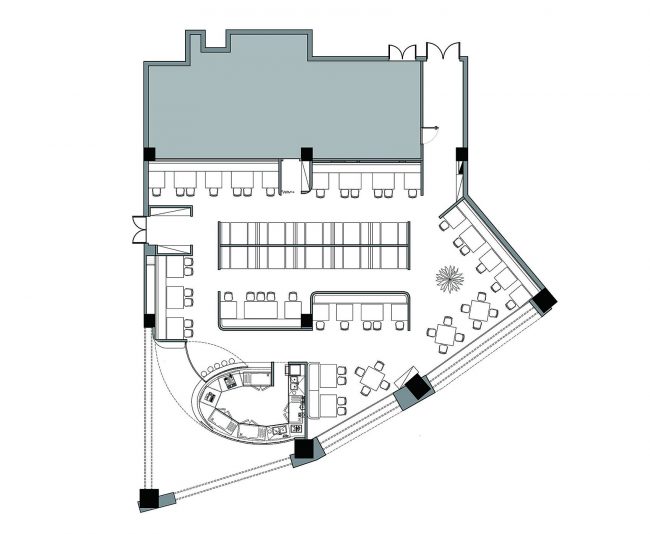
▼平面图,plan
项目名称:narai thai泰国餐厅
设计单位:陈飞波设计事务所
主创设计:陈飞波
设计撰文:SALOME STUDIO
摄影:刘宇杰
项目地址:杭州市
项目面积:约350平方米
竣工日期:2017.09
主要材料:水磨石、铜、铁板、皮革
主要品牌:TOUCH FEELING触感空间
Project Name: narai thai Thai Restaurant
Designing Group: BOB DESIGN OFFICE
Chief Designer: Chen Feibo
Author of Article: SALOME STUDIO
Photographer: Liu Yujie
Project Address: Hangzhou City, China
Project Area: About 350 m²
Completion Date: September 2017
Main Materials: Terrazzo, copper, iron plate, leather
Major Brands: TOUCH FEELING
客服
消息
收藏
下载
最近













