查看完整案例


收藏

下载
该项目旨在将一栋骨架完好却经年失修的中世纪建筑更新并扩建为一座新的住宅。创意总监David决定在正式翻新之前先在这座房子里住一段时间,以便确定什么该做,什么不该做。
Whole house renovation and small addition to a mid century home — which had great bones, but very dated and not maintained. David, a creative director in LA, decided to live in the house for a while before embarking on the renovation to see out how the house lived — to figure out what worked and what didn’t.
▼住宅外观,exterior view
设计的主要挑战在于,David希望为住宅新增一间客用浴室和一间洗衣房,但由于建筑紧挨着山地,因此无法扩大房屋的占地面积。为了解决这一问题,建筑师在二层天花板下方的有限空间里“挖掘”出了一个新的方形空间。新的空间层次与场地的自然层级融为一体,将住宅的底层、中间层和顶层与户外空间相连,从而使住宅能够在不增加占地面积的情况下容纳新的洗衣房和客用浴室。
David wanted to add a new guest bath and laundry room, but due to the hill side zoning constraints we could not expand the building footprint. We carved the new square footage out of the existing crawl space below the upper level. The split level layout follows the natural grade of the site — the lower, intermediate, and upper level all walk out to grade. This allowed us to extend the lower level underneath the upper level and accommodate the new laundry room and guest bath without increasing the home’s footprint.
▼建筑师在二层天花板下方的有限空间里“挖掘”出了一个新的方形空间,a new square footage was carved out of the existing crawl space below the upper level
▼阁楼空间,intermediate level
▼餐厅和厨房细部,dining room and kitchen
这座房子位于洛杉矶Franklin Hills的一条街道尽头,紧靠着山坡并且坐落在莎士比亚桥下。桥上的景致虽无特别之处,但从地面上看时,则呈现出低调却优美的哥特式身姿。建筑师希望将桥的美景引入房内,因而将中间层和顶层之间的墙壁替换为玻璃窗,使房间里的几乎每个角落都能够看到大桥的身影。
The house is the last on a dead-end street in the Los Feliz enclave of Franklin Hills. It’s set against a hillside under the Shakespeare Bridge. Unassuming when driving over the bridge, however its beautiful Gothic Architecture reveals itself from below. We really wanted to view this architecture from the house, so we replaced a solid wall between the shifting roof planes with a clerestory window. It frames the bridge in a really interesting way that can be seen from almost every space in the house.
▼位于一层的客厅,living room on the first floor
▼原先位于主卧室和下方起居室之间的走廊被拆除并与主卧室融合为一个整体, the original hallway between the master and living room below was removed and incorporated into the master bedroom
原先的主人卧室尺寸较小,主卧室和下方的起居室之间还有一条十分狭窄的走廊。建筑师拆除了这条走廊,并将其与主卧室融合为一个整体。玻璃隔墙替代了原先的构架墙,为起居室带来了充足的自然光和树林的风景。在主卧室需要保持私密状态的时候,使用者只需拉上窗帘即可。这就像是一个巨大的落地窗,只不过它刚好被安放在室内。
The original master bedroom was small, and there was a catwalk-like hallway that went to nowhere — located between the master and living room below. We removed that hallway and incorporating its space into the master. We wanted to borrow the abundance of natural light and the tree views from the living room, so we used a glass partition instead of a framed wall. When David (who lives alone) needs privacy in the master, he simply draws the curtains. It’s kind of like having a large picture window, but it happens to be on the interior.
▼主卧室在需要保持私密状态的时候只需拉上窗帘即可,when privacy is needed in the master, the user can simply draw the curtains
▼浴室,bathroom
既有的柱梁式屋顶(无绝缘层)的外侧增加了硬质泡沫保温层,并喷涂以白色反光的冷屋顶覆层。原先的单格式窗户被替换为双格式的、可手动调节的低辐射窗户。丰富的自然光使白天不再需要人工照明。可调节的窗户则为住宅带来被动式的通风和降温功能。
Retrofitted the existing post & beam roof (that had zero insulation) with a sprayed on rigid foam insulation (from the roof side) and coated with a white, cool roof reflective coating. Upgraded the old single pane windows with dual pane, low-e windows including some operable units. The abundance of natural light eliminates the need for artificial lighting during the day, while the operable windows, allow for passive venting / cooling.
▼室外露台,terrace
▼近在咫尺的莎士比亚大桥,beside the Shakespeare Bridge
▼露台细部,terrace detailed view
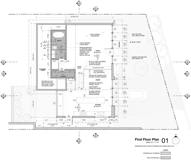
▼首层平面图,first floor plan
▼二层平面图,second floor plan
▼南立面图,south elevation
▼北立面图,north elevation
▼东立面图,east elevation
▼西立面图,westelevation
▼剖面图1,section1
▼剖面图2,section2
▼剖面图3,section3
Project size: 1312 ft2
Site size: 5329 ft2
Completion date: 2017
Building levels: 2
客服
消息
收藏
下载
最近

























