查看完整案例


收藏

下载
临近新年
你会用怎么样的色彩来给予新一年的期许?
元禾大千给出的答案大概是
“蓝 ”Blue
蓝色就像天空和群山一般遥远。我们总慕爱蓝色,在蓝色中思考,因为蓝色牵引着我们,令我们向往。——歌德《颜色的理论》
海洋是整个新世界的开端,孕育一切生命的源头,代表着我们存在的星球,它承载着开拓边界与寻探未来的精神,是生命对生命的敬畏,是无数可能的憧憬。
而蓝,是海洋的灵魂色调,亦是纷繁无常中能给人恒久之感的心安。
后疫情时代,我们被困于亲手筑建起的大厦都市中,对于寻找心灵的共鸣,情感的归宿与对蔚蓝的向往,就是一场生命本能的回归。
于是,“蓝色治愈,寻找心灵共鸣”成为此次策划的主题。
我们用艺术的语境和功能,安抚、治愈心灵,重建未来的信心。希望在浮华喧嚣的年末,这一抹独树一帜的蓝色能带来清爽之感。
蓝色是宇宙之爱。人们沐浴其中,那是人类的天堂。蓝色仿佛有着与生俱来的治愈力。它被赋予太多意义,有着数不清的温情故事。
是澄澈的天空,也是午后的海洋,设计师向天空与大海借了一抹蓝,晕染空间,驱逐日常的焦躁与不安,体验不一样的安静雅致。
当你想逃离都市生活时,会本能地寻找贴近于自然的归宿。
天的光、海的蓝、留的白,构建出空间设计的核心。
与心灵对话,同自然共生。
建筑空间的精神也是心灵境界的呈现,设计将治愈冷静寓于材质肌理之中,创造出简白的空间,柔软了远道而来的旅人内心。
在我们的基因深处,有着对蓝色的眷恋。当我们身处自愈性环境中,副交感神经的激发,成为促进心灵释放的良方。
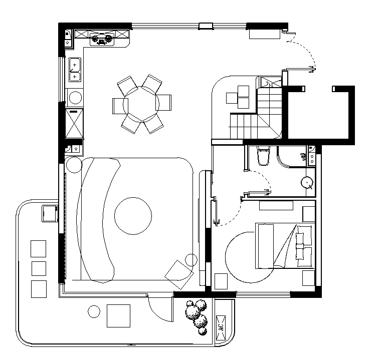
平面布置图
项目全名:环球融创·溧阳曹山未来城民宿样板间
项目地址:江苏常州
软装设计:元禾大千
设计时间:2021.05
完工时间:2021.08
空间面积:82㎡
甲方单位:溧阳环球融创文化旅游有限公司
特别支持:洪林、朱黎霞、关稿沙、李群
摄影团队:冷風。
蓝色是天空、是水,是空气和海洋,是深度和无限,自由和生命,蓝色是宇宙本质的颜色。
——伊夫.克莱因
设计师寄追求自由与品质生活的愿望于“蓝色”之上。蓝色构建的自由,简约中流露着优雅,似浩瀚银河、无垠星辰、辽阔大海以及清晨初升起前泛蓝的天空,引入深思、令人心安,终将我们引向精神的自由。
正午阳光透过窗户与室内相映生辉,澄澈清爽的梦幻之感在内外空间的对话中诞生。
光影自带魔法,将阳光下粼粼闪耀的蓝色艺术装置调和,反射着梦幻的美,为空间蒙上一层滤镜。在滤镜中,一抹来自大海的蓝与白,这是自然界纯真的配色。
造型各异的家具、抽象的艺术品,随光影而姿态变化万千,步入其间,感受蓝色的自由与理想。
浮世喧嚣,我们需要一处简单的美好,卸下各种社会角色,让所有浮华,都变成清欢。
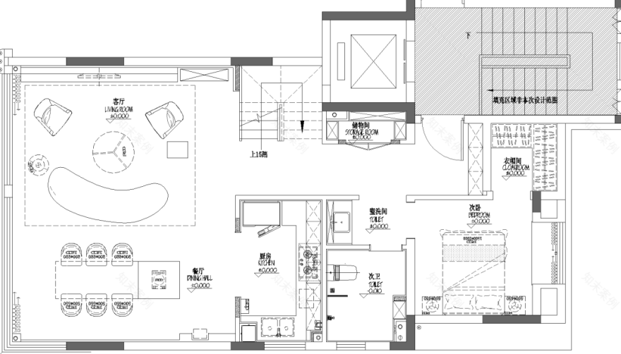
一层平面布置图
二层平面布置图
项目全名:荣成自在澜湾样板间
项目地址:山东
软装设计:元禾大千
硬装设计:天翊设计
设计时间:2021.05
完工时间:2021.09
空间面积:140㎡
甲方单位:中车科技园发展有限公司/荣成翠湖房地产开发有限公司
摄影团队:404NFSTUDIO
蓝色没有维度
它超越维度
充满无限可能
是天生的艺术品
它是夏加尔画作中的梦境
马蒂斯画笔下的舞蹈
伊夫·克莱因的色彩哲思
也是设计师创作的灵感来源
光影漫游,徜徉于艺术之美。空间结构的嵌合与落日光影的秩序,形成了因时而异的艺术化视觉,温柔的描摹出空间的轮廓。
油画般的蓝色碰上和谐的米白,一切美的发生都如此自然优雅。陈设以简约、古朴的造型,为空间营造浓浓的艺术氛围。
线条与色块的相互碰撞,与空间氛围相得益彰。餐桌造型线条独特,一边是线条符号,一边是浓郁的蓝色,极具戏剧性。
艺术的力量不在引起共鸣
而是其引起共鸣的方式
愿未来的日子里
居于家中
沉浸在蓝色的世界里
会听到更多心灵被治愈的呼喊
——“我看见大海啦!”
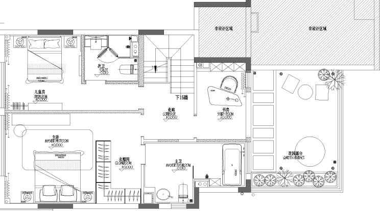
一层平面布置图
二层平面布置图
顶层平面布置图
项目全名:雍禧兰台上叠样板间
项目地址:武汉
软装设计:元禾大千
硬装设计:锐度设计
设计时间:2021.05
完工时间:2021.09
空间面积:235㎡
甲方单位:新希望地产、禹洲集团
特别支持:新希望地产景装中心—张继、李文静;新希望地产武汉公司—梁洪嶂、童潇娜、陈明
摄影团队:冷風。
客服
消息
收藏
下载
最近























































