查看完整案例

收藏

下载
古称武陵、朗州,别名“柳城”,史称“川黔咽喉,云贵门户”。
自古以来被美誉——亲水之城的常德有穿紫河畔,百姓以摆渡船捕鱼为业,缘溪行,误入桃花源,在田园派诗人陶渊明用文笔下便描绘出《桃花源记》旷世佳作。
01
水墨意向
细腻浮华的东方文化,从容淡泊的水墨意向
打造富有中式韵味的空间,将设计注入一股细腻的浮华东方风格中,将传统美学的脉络得以蔓延。寻求自然与生活空间的呼应,沉淀浮躁的心性。
山水墨韵,勾勒出的一笔一划,无不是出于自然,又高于自然的含蓄之美。
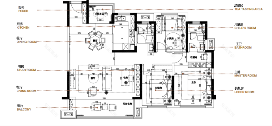
书房则是自我沉淀的区域,动静结合。
茶台空间则是户型的亮点,提升空间利用率的同时也侧面烘托住宅品位,给人未来生活的无限遐想。
主卧的水墨勾勒呼应床头梅花,雅致的东方文化气韵表现出来。
长辈房的稳妥和静谧,则是气度老人的气质体现。
男孩房围绕乐高展开,顺应当下小朋友的兴趣爱好及教育方式。
人生有四种闲情,饮茶、种花、下棋、安坐,亦是生活中所期待的家的模样。
02浮生若梦
浮生若梦,为欢几何
从爱马仕的IP中提取设计灵感,将爱马仕的高贵气质,以质感且奢华贵气的调性来诠释空间,表现主人的生活追求。
米灰色大基调上点缀爱马仕特有的橙色符号,金属色的加入提升空间质感和格调,在营销过程中给客户的直接观感提升诉求。
餐厅的配色呼应客厅,做开阔空间的协调与贯穿。大理石的桌面让空间质感更上一层。
主卧的毛毯,结合爱马仕的ip及元素,富贵感油然而生,衣帽间的组合则是顾客对蔚来生活的设想
简约而不简单的书房设计,透露着主人的沉稳与睿智。
儿童房以飞机作为主导线,打造一个天真烂漫的小孩童休憩空间。
项目名称|常德金科天宸133、106户型样板间
开 发 商|常德市宏韵房地产开发有限公司
特别鸣谢|金科集团湖南区域公司
软装单位|广州灵西里渡软装饰设计有限公司
完工时间|2021年7月
灵西里渡 广州灵西里渡软装饰设计有限公司,是一家追求意境美感的室内软装设计定制服务商,针对国内外地产开发商、大型商业空间、会所、别墅、示范单位等,提供软装设计、采购、陈设及项目运营为一体的软装设计公司。我们秉承匠心的设计理念、追求意境美感享受,为推动软装设计产业发展努力奋斗!
客服
消息
收藏
下载
最近



































