查看完整案例


收藏

下载
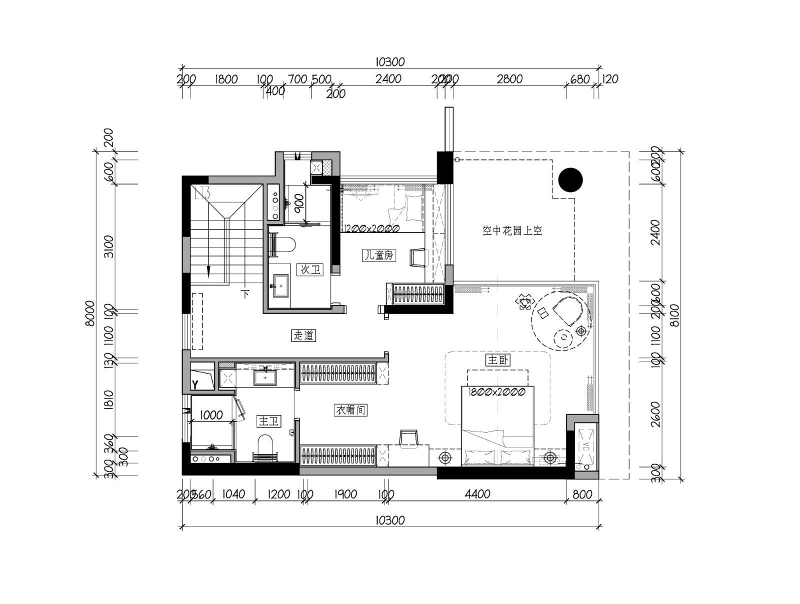
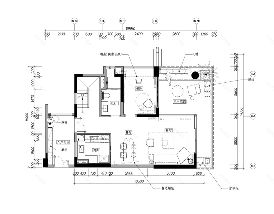
将庭院搬至上空,生活空间向外与向上延伸,将生活与自然融合,回到自然原点,舒展一下困乏的身体,把日子过成诗,与花草相亲。两层的复式设计,将活动区与睡眠区上下分离,互不干扰。为尽可能扩展采光面和观景面,空中合院阳台开间可达8.1米,再加上L型大露台的设计可享受270°环幕视野,客厅与主卧利用单边转角的户型优势,高层产品可实现望江又可望山的小心机。
见月诗飞起,推窗山走来。简约风在视觉上不会出现大面积饱和鲜艳的色彩,以素雅清新的颜色为主,使得整个空间看起来更加的清爽、通透。打造了一个精致又富有生活气息的空间,结合光线与局部暖色麻质布艺的点缀,表达出简约而又不失格调的生活态度,原木的家具组合也能创造出别具一格的空间表现形式。通过淡雅的色调营造出来充满活力而又清新的家居空间,让家的氛围更加舒缓。注重于在细节中呈现精致的品味,在这些细节上的斟酌都会带来质感上的反馈,以安静沉稳的力量,诠释出简约大气之美。柔和的色彩是贯穿室内的灵魂,不需要太多装饰物的点缀,不同的色彩为各个区域带来丰富的视觉效果,时而安静,时而活泼。整体的设计删繁就简,在自己的一方天地中,感悟时间的悄然流逝,平和淡然。以素雅简净的居住格调舒缓疲惫的都市节奏。
设计师易永祥
2019年—至今 在广州方华国际设计集团有限公司从事主任室内设计师2016年—2019年 在广州加悦柏工程设计有限公司从事设计总监
2013年—2015年 在广州瀚力生酒店装饰设计有限公司从事高级设计师
2010年—2012年 在广东省集美设计工程有限公司从事设计师
毕业院校:广州美术学院
背景:具有多年的工装与地产项目经验,掌握室内设计相关理论知识,设计规范与行业标准。参与 2010 年广州亚运会曲棍球馆的场馆导视设计。以人为本,对空间美学的表达有独到的见解,喜欢分析与钻研,根据项目进行优化设计与改造,保证设计产品符合空间美学和人性化的功能需求。融合中创新,标准中完善,力求作品不断进步,贴合市场与潮流。
客服
消息
收藏
下载
最近



















