查看完整案例


收藏

下载
青岛凯旋门位于崂山区,地铁2号线和4号线辽阳东路换乘站西北侧,为青铁华润城一期开发住宅部分。
▲地铁上盖全区效果图
▲场地现状实景及高差分析
场地因地铁车辆段造成的不可忽略的地形高差,不仅对整体规划产生限制,也对住宅建筑的落位位置,带来空间局限。团队如何将场地劣势化为优势,并在日趋成熟的住宅标准化体系下创作出新意,成为设计的突破点。
在解决一期住宅与相邻地块不同界面高差问题上,设计采用了十字双层景观轴线、连桥、电梯等多元联动机制,缝补相互割裂的地块关系。同时,顺应场地结构的限制肌理,规划高层沿合肥路展开,小高层在合理间距下顺延深圳路走向依次落位。
▲高差解决策略
十字双层轴线打破高差界面
在一期住宅与二期住宅的交界空间,设计植入十字双层景观轴线,架连起丰富有致的空间,便利业主出行的同时为生活空间增加更多活力元素。
▲十字双轴渗透联动
▲轴线空间实景©夏强
多形制连桥串联相异场所空间
设计通过多形制的连桥,串联起相异空间的场所。双层组团主入口及入口连桥的设置,紧密联系南北住宅,解决入口多高程关系。西侧小高层与高层间的连桥架连及南侧跨街天桥的布设,都为居住者提供着安全、便捷的通道。
▲双层组团入口及入口连桥实景©夏强
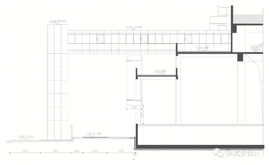
▲西侧连桥效果图及其剖立面图
▲南侧跨街天桥效果图及其剖立面图
便捷化垂直电梯联动高效出行
垂直电梯的设置,成为场所空间高效运转的润滑剂,为业主提供更加便捷的出行方式。
▲北侧人行口连桥与垂梯效果图及其剖立面图
▲东侧人行口垂梯效果图及其剖面图
深化南北立面的三段式构图
立面采用线条与体量相互穿插的构成手法,形成整体左右对称、有张力的协调构图。南立面以铜色提亮点缀,勾勒细部,展现特色。北立面构图原则区别于南立面,且以深灰色面偏多。
▲南立面生成
▲南立面实景©夏强
▲北立面生成
▲北立面实景©夏强
虚实交映成趣的窗墙体系
凸窗 设计外包玻璃,统一公建化立面形象。不同凸窗结构处理,形成虚实面对比,保证纤细横向线条。
▲凸窗实景©夏强
▲凸窗节点设计
阳台 以仿铜金属条框勾边,梁外包玻璃,形成阳台栏板与金属U型框结合设计的标准化节点,保证纤细横向线条贯通,达到轻巧立面的效果。层间横向线条宽度控制在300~350mm,保证轻薄、精致轻巧的视觉效果,配合分缝沿立面贯通。
▲阳台实景©夏强
▲阳台节点设计
格栅 设计竖显横隐、形似具备百叶功能,凸显建筑的竖向线条,同时隐藏空调机位的空间,美化建筑立面。
▲格栅实景©夏强
▲格栅节点设计
层次性挑高门头的精致化昭示
入口门头,通过仿铜铝板与石材包边,形成精细化设计,提升入口品质。
▲入口实景©夏强
▲入口节点设计
双层错缝勾勒仿石山墙面
在对山墙面的设计中,整面墙开窗较少,外观为大面积的实墙面,以仿石材尺寸的方式消解大片墙体的沉闷视觉感受。在分缝设计阶段对外墙的分缝进行了一系列的探究与优化。在综合考量后摒弃了较为凌乱的单层错缝,并用同色缝解决所使用的一体板材料尺寸受限的问题。
▲外墙分缝方案比选
▲选择的双层错缝节点
▲山墙实景©夏强
客服
消息
收藏
下载
最近




































