查看完整案例


收藏

下载
苏 州
自古繁华,繁华之外,
更是一个诗意的存在。
/ 商业建筑的文化演绎 /
建筑位于苏州科技城片区,距太湖约2公里,作为住宅配套建设的邻里商业中心,其先期建设的独栋商业作为展示中心使用。在棠前如院邻里中心的设计中,我们期待以现代建筑语言来演绎苏州传统建筑的精神特质,营造一个商业、生活、文化交汇的舞台。
▲ 商业沿街立面图
在该案中,设计追求商业形象和城市文脉的统一,以营造一个充满城市精神的活力场所。
建筑通过大的虚实对比明确体量间的尺度关系,以首尾相接的弧线屋顶演绎传统苏式建筑文脉,塑造如太湖波浪般起伏的沿街立面形象。
江南传统建筑以粉墙黛瓦,檐口相逐为主要的造型元素,白色
墙
体
表达了建筑
“
轻净
素雅
”
的
特质,
人
字形
起伏的
坡
屋顶
“剪边”勾勒
了
层次
丰富的天际线,
“
留白
”
的虚
实处理手法体现了简练、克制
的审美情趣。
/ 以小见大的场景设置 /
建筑前场空间较为局促,设计借鉴传统苏州园林的造园手法,采用起承转合的路径设置,拉长体验动线,通过层层递进的五重空间放大整个示范区的场景感受。
▲ 体型生成图
入口处影壁障景;
转入连廊,透空格栅借景;
汀步水院,抬头见景;
进入建筑,落座观景;
折入侧院,自成一景。
五重空间曲折回环、以小见大,
意在营造一种虚实相间的空间序列和
缩微园林的意趣。
▲ 流线图
/ 城市性格的双重表达 /
传统的苏州是清雅的,小桥流水人家;
现代的苏州又是热烈的,准一线城市,年轻又时尚。
苏州这座城市的精神特质是既传统又现代,既清雅又热烈。
在建筑立面的材质选择上,也着力体现这种双重性。
建筑以浅米色温润石材为表皮,包裹内侧香槟色仿铜铝板,在轻与重、明与暗、淡雅与浓烈之间形成强烈的反差对比,建筑的张力由此彰显。
仿铜铝板与玻璃成折板组合,一侧硬朗,一侧通透,构成另一重反差对比。
折板在建筑主立面上如一把折扇打开,形成明暗和色彩的韵律组合。
建筑一层为展示大厅,二层为办公,三层为样板房,为保证样板房的自然采光通风,南侧做了局部露台。
考虑到后期商业立面的整体性,露台南侧做了折板通高处理。
建筑的各个界面会围合成一个小环境,室外空间会形成一
个大空间,内外两种空间并不是孤立存在的,而是相互联系、相
互
渗透的。达到室内外美感和功能上的高度统一,营造干净整洁的室内空间。
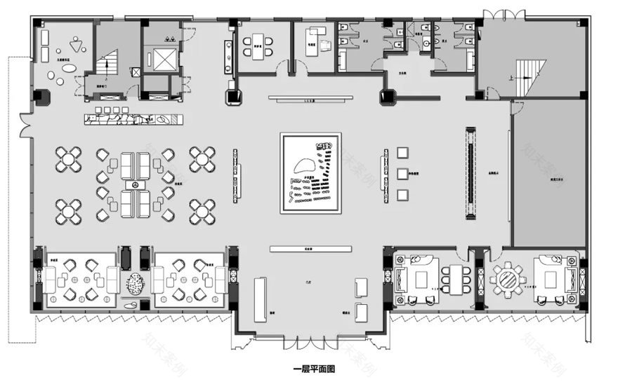
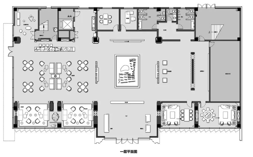
▲ 向左滑动查看更多平面图
结语棠前如院邻里中心,它的设计初衷是营造一个商业、文化、生活交汇的舞台,是回应苏州这个城市精神特质的一个微小尝试。我们希望回归设计的初心,那就是它根植于传统,但面向当下的生活。
工程档案
项目名称 | 苏州首开棠前如院邻里中心
地理位置 | 苏州市青城山路与通墅路交界
项目功能 | 商业
建筑面积 | 2640平方米(展示中心)
用地面积 | 3100平方米(展示中心)
建筑设计 | 上海成执建筑设计有限公司
设计总监 | 唐林衡 薛羽
设计团队 | 敖翔 李赓 孙乙 郑荷珍 李侨
施工图设计 | 中铁华铁工程设计集团有限公司
景观设计 | 上海伍鼎景观国际
室内设计 | 上海全筑设计集团
设计时间 | 2019.05
竣工时间 | 2019.09
项目摄影 | Fancy Images 林绿
客服
消息
收藏
下载
最近

































