查看完整案例


收藏

下载
苏州河岸艺术馆
Riverside Art Gallery
中国,苏州
Suzhou, China
河岸的生活与艺术
“运河的苏州,苏州的运河 ”
_
苏州是一座建在运河上的城市。运河三横四直的水道通往千家万户,同与这些水道并行的陆路系统一起,构架了河街相邻、水陆并行的双棋盘格局[1]。京杭大运河在澹台湖分为东南两路,向东一路擦过独墅湖,再向南转入镬底潭。
区位图
本案就坐落在运河独墅湖-镬底潭段上游东岸靠近独墅湖出水口的位置。沅有芷兮澧有兰, 河畔深出募禅园[2]。用艺术的方式表达生活是项目既定的任务,而凑巧,建筑本身就是生活的艺术。
©是然建筑摄影 Schran Images
水得石,石得水
“石梁横卧画图中,澄碧琉璃映彩虹 ”
_
初到用地时,沿河迤逦,一路拂石栏看水色,不免想做石与水的文章。寻觅慢慢,读到苏州石湖有名桥者行春,有诗赞:“石梁横卧画图中,澄碧琉璃映彩虹;最是中秋明月夜,玉钱片片落环洞。”
大概是说八月十八这一天,月光初起,入桥洞中,其影如串,游石湖登行春桥者,倾城而出,游船如织,歌舞音乐之声通宵达旦……[3]
©是然建筑摄影 Schran Images
来不及理会原文的巧思,“石梁横卧”“澄碧琉璃”两只短语已将艺术馆未来的样子描绘了大半。不否认这样的象征性看起来有些取巧,需要找到一种方法,把这种轻巧炼得精纯。
©是然建筑摄影 Schran Images
©初子圆
立体构成
“长方体与长方形”
_
©是然建筑摄影 Schran Images
本案中建筑的生成就像细胞的分裂与分化。一个长方形,分裂成上下平行的两张:下面的继续分裂成四片叠在一起,上面的膨胀成为长方体,再分裂成三瓣儿堆放;四叠儿变成水面,又伸出了路;三瓣儿成为质色各异的盒子,并留下了门窗。逻辑是设计的灵魂,简洁但不一定简单。
体块生成
场所整体的呈现基于一面倒映着环境的水面,就像苏州这座城,似乎所有动人故事发生的场景都离不开各种各样的水面。我们让水面褶皱起来,但不剧烈,预示着某种气场的存在。
©是然建筑摄影 Schran Images
建筑大体由三个体量堆叠而成:浅灰色的首层体量扁平舒展,浅卧在水中,吐纳三个方向的人流;银白色的体量漂浮于首层之上,透明的经折朝向运河徐徐打开,展示山水也拥抱山水;灰黑色的体量继续上升,但不会离开,作为前两者的背景,展现着器度与分量。
©是然建筑摄影 Schran Images
诗里的空间,空间里的诗
“你在桥上看风景,看风景的人在楼上看你 ”
_
©是然建筑摄影 Schran Images
©初子圆
你站在桥上看风景,看风景的人在楼上看你。明月装饰了你的窗子,你装饰了别人的梦。[4]
在卞之琳的《断章》里,人与时空三者之间的相对性被象征性地启示。这种相对性不仅是浪漫的,也是现实的,存在于我们所有人生活中的现实。 建筑的意义便不会留于表面,得到艺术性的升华。
空间分析
©是然建筑摄影 Schran Images
建筑的功能性不是唯一的目的,建筑是环境之间的“桥”与“窗子”,帮助使用者发现“月亮”,找到“梦”。
©是然建筑摄影 Schran Images
在各个面向上,建筑为观察者提供不同可能的瞬间,不论这种瞬间是不是建筑的本意,却往往能丰富本意。或许可以不再急于直抒胸臆,通过碎片的积累,逐渐建立越来越清晰的印象。
材质分析图
结构分析图
结语
“地震与湖底的潭”
_
©是然建筑摄影 Schran Images
后来知道独墅湖的成因是宋朝时期的一次大地震。也是后来才知道,镬底潭,用传统的苏州话说来就像“湖底潭”,一片隐藏在湖泊下的潭。在地壳震荡与介质分层之间,湖天之下横卧清潭的三道石梁倒成了一种偶合。
参考文献:
[1]俞绳方. 杰出的双棋盘城市格局——“苏州古城风貌”研究之一[J]. 江苏城市规划, 2006(4):13-17.
[2] 佚名. 楚辞·九歌[M]. 2013.
[3] (清)顾禄撰.清嘉录[M].江苏古籍出版社,1999:250.
[4] 曾一果, 曾一桃. 爱情永恒 风景长存——卞之琳《断章》创作原意解读[J]. 名作欣赏, 2001(3):18-22.
技术图纸
_
总平面图
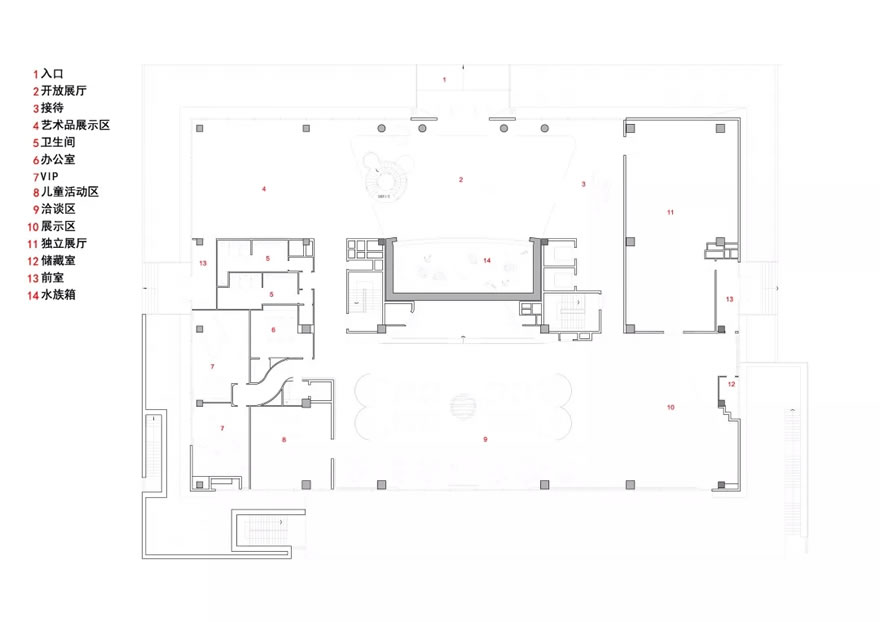
一层平面图
二层平面图
地下一层平面图
北立面图
西立面图
东立面图
剖面图
墙身节点
工程档案
项目名称丨中国铁建·花语江南 美好生活艺术馆
项目功能丨示范区(前期),社区活动与中心(后期)
项目位置丨苏州工业园区万寿街88号
业主单位丨中铁房地产集团苏州置业有限公司
建筑设计丨上海日清建筑设计有限公司
设计总负责丨宋照青
总体规划与住宅设计团队丨陈凌峰、张超、梁颖文、蔡仁学
艺术馆设计团队丨初子圆、郭丹、吴旻琪、闫雷、王玉戈、刘悦怡
技术主管丨郭丹
建筑施工图设计丨中衡设计集团股份有限公司
幕墙设计丨上海幕名工程设计有限公司
泛光设计丨浙江华展工程研究设计院有限公司
室内设计丨梁志天室内设计(北京)有限公司
室内施工图设计丨苏州金螳螂建筑装饰股份有限公司
室内施工单位丨浙江亚厦装饰股份有限公司
景观方案设计丨贝尔高林国际(香港)有限公司
景观施工图设计丨棕榈设计有限公司
土建施工丨中铁建设集团有限公司
幕墙施工丨北京和平幕墙工程有限公司
景观施工丨杭州神工景观工程有限公司
占地面积丨1984.17㎡
建筑面积丨5902.80㎡
设计周期丨2017.06-2018.11
建筑摄影丨是然建筑摄影 Schran Images
图表设计丨许克福、刘璐
客服
消息
收藏
下载
最近


































