查看完整案例


收藏

下载
招商·曦城
红 砖 | 学 院 | 简 韵
除去浮华,
低调的打动人心,
红砖,安静的做自己,
只为了为人们建立一个栖息之所,
用破土而出的决心守护温暖的家。
一座城市不能没有历史,沈阳之所以为沈阳,正是这些人们生活中习以为常的老建筑,赋予了这座城市非常的历史内涵。老建筑是记忆的载体,也与人们的生活息息相关,更是一种历史的印记,城市的符号。老建筑中尤其突出的还是红砖建筑,红砖建筑遍布沈阳的方方面面,涵盖了学校,政府办公,工业厂房,民居,沿街商铺,文化建筑等等,在沈阳人民心中留下了不可磨灭的记忆。
△ 沈阳典型红砖建筑分布图
地块位于沈阳铁西主城、经济技术开发区
与于洪区交汇的“黄金三角带”,
毗邻开发区政务服务中心、
经济中心和中德产业园;
落位于洪区开发大道北侧,
西环线西侧,北侧紧邻七号路,
南侧紧邻四号街地铁站,交通快捷,生活便利。
点:商业中心、社区中心;
线:商业中心线、小区中轴线;
面:商业沿街面、城市形象面、地铁上盖面;
体:一分为二,双铁出口、二三体量、四面转角、延续纵深;
通过点线面体的形体塑造,在有限的沿街商业的面上,打造不常规的视觉体验。
方案推敲过程:
△ 体块分析
△ 体块深化
△ 过程方案展示
脱离单一的调性
在复杂中拥抱简单
看似繁琐却沉淀着简易之美。
红砖,
简单到一个小细节让你流连忘返。
惊叹到从技术到艺术的转变是一种重生,
工业性的红砖不再是一块砖,
它所表现出的是朴实素雅、返璞归真,
它所折射出的是一种生机和活力。
类型砖分布,砖缝按照8mm来控制
主入口的门头旁的叠砖拼花做法,由于高达约13m
经过推敲设计所以使用了穿孔砖
中间穿钢筋龙骨固定,增加其稳定性
△ 材料应用
“建筑师的职责是让每一块砖头回归自己的位置,
建筑师不是在圆自己的梦,
而是在帮助砖头完成它们的梦想。”
——路易斯·康
△ 细节展示
△ 塑造学院派气质
红砖建筑虽然没有雕梁画栋,却依旧春风如醉
它从时光中走来,经百年传承,用石头写就历史
它是岁月勋徽,美好的空间创造了美好的年代
△ 典型节点打造
前奏丨半隐半现
穿越时光之门,侧耳微风,
步入花丛小径,徐步在绿树掩映的红砖街所之中。
中场丨出水明月
拾阶而上,两边绿植的营造,娴静优雅,
配以圆弧雕塑,无一不从细节。
中施展出褐石街区的浪漫肌理,
行走其中,品味现代主义再度演绎的浪漫情怀。
高潮丨出类拔萃
演绎红砖建筑人情暖融、尺度宜人的交流空间,
保留都市的文化氛围与活力,
营造着恰如其分的繁华,
成为大众追逐时代经典与现代浪漫的真切体验。
转折丨跌宕起伏
高低错落,流水潺潺,光影流连在绿树红墙里,
生活更加宁静美好,
不同建筑的颜色汇聚成了一座城市的色彩,
成就不同的城市,不同的色彩。
落幕丨归于静谧
纷繁复杂中的清醒,尘嚣喧哗下的静谧,
在这里,找回最真的自己。
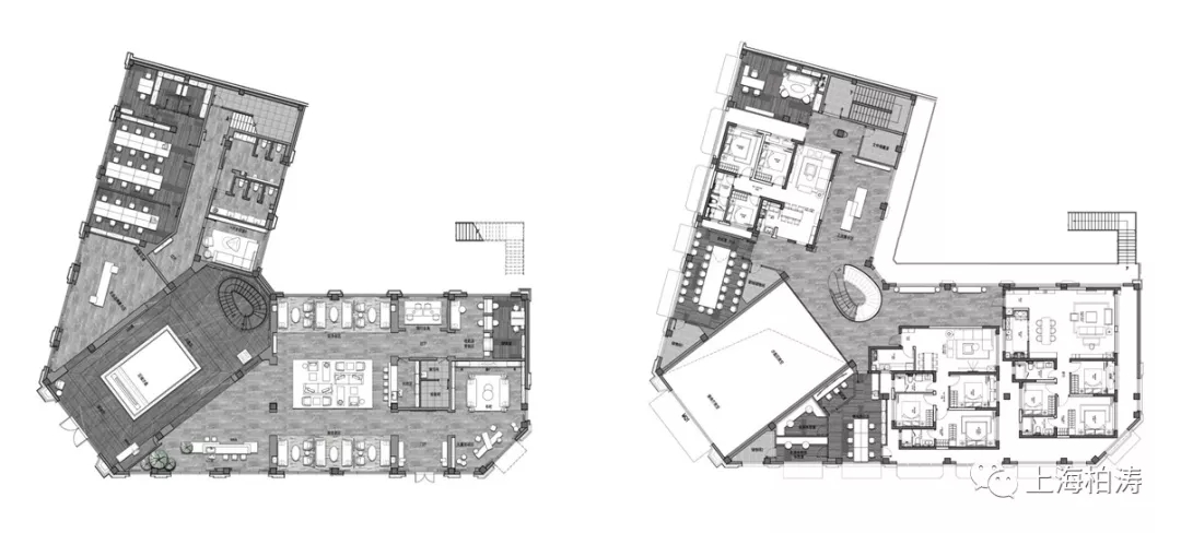
△ 一层平面图
△ 二层平面图
闲看花开花落,静看云卷云舒
项目档案
开发企业 招商蛇口
建筑设计 PTA上海柏涛
设计团队 柏向创作中心,柏向五部
设计主创 胡桥
团队成员 符岳林、张强、王绪、蔡阿萍、白宏鹏、何文韬、唐煜、陈宵、黄金梅、陈雨煌、易新童、魏欢
景观设计 青岛厚德环境设计有限公司
室内设计 集艾室内设计/布鲁盟室内设计
幕墙设计 上海嘉春装饰设计工程有限公司
项目地点 中国·辽宁·沈阳
用地面积 65256平方米
建筑面积 130512平方米
设计时间 2018年05月
开放时间 2019年05月
摄 影 根本堂影像机构
客服
消息
收藏
下载
最近












































