查看完整案例


收藏

下载
© Kris Provoost
海洋中心是为清华大学新成立的深海研究创新基地而设计的一栋实验及办公楼,其场地位于深圳西丽大学城清华研究生院的东端,紧邻主校门。速生的大学城是中国近年来新城发展的一个个缩影,它们远离城市,孤岛般地与世隔绝,又常常大而无当,缺乏人性化的公共服务设施。
© Kris Provoost
© 张超
我们希望借助海洋楼的契机,让这栋建筑以一种崭新的姿态介入校园生活,使其呈现一种与以往完全不同的可能性:在这里建筑空间流动愉悦,其间注入的公共设施以开放的形态吸引所有师生的参与;在这里那些智慧的头脑可以不期而遇,跨学科的交流成为自然而然。
© Kris Provoost
© Kris Provoost
设计是从整个校园公共空间的组织入手。作为校园主轴线最东端的建筑,海洋楼将这个轴线翻折起来盘旋地向上延伸,并在其间注入现在校园所缺乏的公共机能,以形成充满活力的“垂直校园”。
分析图
© Kris Provoost
© Kris Provoost
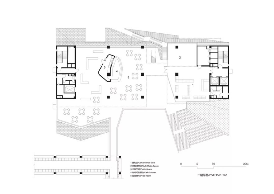
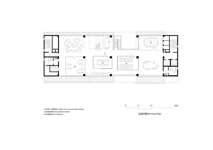
传统院落式的校园在这里被重新演绎,90度的翻折形成一个垂直的院落体系。而海洋中心里多个研究中心相对独立而又互相依存的关系,也表达在这个垂直院落的虚实关系里——每两个中心之间插入一个水平的园林式的共享空间,包括岛屿状的会议室、头脑风暴室、展厅、科普中心、交流中心、咖啡厅等。
分析图
© Iwan Baan
另外每个中心里的实验室部分和办公服务区又被水平地拉开,形成垂直贯通的缝隙,穿梭其间的室外楼梯将这些水平及垂直的共享空间蜿蜒地联系起来。随着时间的推移,这些共享空间里的绿植也将日渐繁茂,将地面的花园向上一直延伸到60米高的屋顶。
© 张超
© 张超
© Iwan Baan
© Iwan Baan
拥有一个小小的露天剧场的屋顶将是校园里景观最特别的360度观景平台,在这里既可以眺望远山感受自然的云开云散,又可以俯瞰深圳野生动物园里悠闲的长颈鹿们。
© Iwan Baan
© Kris Provoost
© Kris Provoost
© Kris Provoost
海洋中心的地下有一个很深的特殊实验水池。在建筑南面的入口广场,可以看到三个方向各异的清水混凝土的圆锥形体量,它们给地下实验室提供采光,也成为主入口处三个标志性的雕塑;三层会议室采用圆窗,房间内的上下跳动的圆洞如船上的舷窗,隐约喻示着海洋;南北立面的混凝土遮阳百叶角度变化的韵律来自韵律德彪西的《海》。鲸鱼呼唤同类的声纳图被抽象出来形成了东西立面圆窗波动的逻辑;海底的光线随深度增加而变少,海洋中心公共空间吊顶的蓝色也从高层到低层也逐渐加深。
© Kris Provoost
© Kris Provoost
深圳的自然气候条件催生出了海洋楼的建筑形态。大量的半室外空间调节建筑的微环境,板楼充分利用自然通风,立面的遮阳系统有效地降低热负荷,同时满足不同功能的采光与景观视线需求。大量采用被动式的节能策略,力求创造低造价高效率的建筑。建筑外墙采用素混凝土,以降低后期维护成本。
© Kris Provoost
实验楼需要的设备机房和竖井,与垂直的交通筒体结合,集中地布置在建筑的两端,再通过走廊的天花把各种建筑设备系统水平地送到实验室里,这样就得到了连续并可以方便地重新划分的实验室空间,以适应未来实验室使用需求变化可能带来的内部布局调整。实验室部分按合理的模数规划,空间规整开放。办公和辅助空间临近实验室,既方便研究人员又相对安静和独立。
© Kris Provoost
项目图纸
总平面图
首层平面图
二层平面图
五层平面图
十四层平面图
东立面图
轴测图
分析图
项目信息
建筑师:OPEN建筑事务所
地址:深圳,中国
建筑面积:15,884 m²
用地面积:2,439 m²
项目年份:2011 - 2016
主持建筑师:李虎,黄文菁
设计团队:Victor Quiros,赵耀,张汉仰,周亭婷,闫迪华,周小晨,乔沙维,张畅,戚征东,Joshua Parker,陈忱,Laurence Chan,金波安
摄影师:Kris Provoost,Iwan Baan,张超
合作设计院:深圳市建筑科学研究院
甲方:清华大学深圳研究生院
编辑:韩爽、莫因同
客服
消息
收藏
下载
最近

































