查看完整案例


收藏

下载
南京北大·颐和翡翠府
PKU Resources · Yihe Emerald Residence
中国,南京
Nanjing, China
项目背景
PROJECT BACKGROUND
“现代语言,东方神韵”
_
每位国人心中都有一处东方意境,始于园林,聚于厅堂,在繁华之间觅得一方静谧之地,获得身心的寄托。
项目位于南京市溧水区,是国家区域中心城市,长三辐射带动中西部发展的国家重要门户城市。建筑用现代的建筑语言绘制现代东方神韵,古典与现代,柔美与力量的统一,形成诗意的建筑。
◎区位
中式空间,层叠渐进
—空间与流线
SPACE&FLOW LINE
子曰:“礼之用,和为贵。先王之道,斯为美。小大由之,有所不行。知和而和,不以礼节之,亦不可行也。”“礼”是中国传统文化的核心。结合全区街- 巷- 坊- 院的东方礼序空间序列,样板区打造尊崇的进园空间。
前奏:披林撷秀
在到达入口前的空间流线上,设计师设身处地为参观者营造了一个开敞的空间序列,利用喷泉打造入口氛围,轻盈的道路划开水面。空间在虚实的流动中形成秩序,引领客人走进接待前厅,至此为第一重院落。
◎主入口
变调:卧栏听雨
沿石桥继续往前,来到第二重院。入口门厅处,院墙与建筑围合形成水院,树木点缀其间,漫步于亲水的石阶,似漂浮水面之上,水的柔美和建筑刚硬的线条碰撞,浑然天成,别有风致,使得筑有静谧脱俗之感。
入口水清如镜,建筑倒影水面,亦幻亦真,颇有江南水乡的气质。石桥提取建筑材质, 融合水纹元素,使景观元素统一提升景观文化内涵。
高潮:云开雾散
循迹而去,入口处米白色雕塑静静伫立水中,仿佛在等待远方的归人。云开雾散,高大的展示厅映入眼帘,作为空间中承前启后的核心部分,空间宽敞高挑,打造华丽尊贵气场。建筑立面的金黄色玻璃砖营造出一种朦胧神秘的古典美,屋顶金属线条勾勒弧形建筑轮廓,竖向金属格栅序列宛如音符存在韵律变化。
步入大厅,可见两侧会客厅,豁然开朗的空间具有强烈的吸引力。淡雅的暖色石材墙面,给客人豁然开朗之感。柱网结构和造型一体化,划分出若干商讨空间,同时也形成门帘式的纵深感,显得静谧而严谨。
进入会客厅,戏剧性的旋转楼梯给人以强烈的视觉冲击。
经旋转楼梯到达开阔的展示厅,透过轻盈的玻璃幕墙,可看到静谧的下沉庭院。华灯初上,设置在金属线条位置的灯光将建筑轮廓勾勒出来,与从大面积玻璃幕墙透出的光形成鲜明对比,尽显精致典雅。
终章:尘埃落定
离开展示区,步入内院,一侧是层叠错落的室外景观,一侧是玻璃金属的现代工艺,古典中式园林的迤逦曲折和现代主义建筑的简洁高效相得益彰,空间元素丰富协调,有移步换景之趣,方寸间,园藏天地之大,景含四时之美。
内院利用高差融合山水元素打造的高达7m的景观叠水与景墙观赏面,利用水面环绕建筑使建筑立面与水面交相呼应,拉伸原本拥挤的下沉景观空间。
内庭院软景以松树置石打造景观韵味。在造物工艺上坚持匠心极致,无所不用其极挑选上等石材、铝板、古铜等具有质感肌理的材质打造园林景致、经得起时间洗礼。用现代的建筑语言绘制现代东方神韵。
烟雨中,坐在半室外下沉的临水空间喝茶聊天,更是一种无法言喻的怡然与惬意。
现代语言 东方神韵
运用层层递进的空间礼序,应到更时尚的东方美学,更具文化底蕴的空间体验,通过材料与细节的设计是建筑意向更加饱满。设计师在空间流线上,为使用者打造了一个开合交替、高低错落的空间序列。前场设计了层层递进的景观小品强调入口的秩序感;结合主立面的的金属格栅序列呈现出开放的姿态。
建筑立面大量使用了玻璃、铝板,配合钢结构有序并置,让不同材料和结构语言之间形成对话,将古典和现代、敦厚和轻盈等对立特性统一维系在历史张力之中,形成建筑的诗意表达。
建筑主体采用钢结构,主要材料为金属铝板、玻璃幕墙、玻璃砖。主入口的黄色玻璃砖的运用是本案的亮点,半透明有质感的纹理与仿铜铝板相得益彰,给人以奢华低调的气质,玻璃幕墙和古铜色金属百叶格栅的搭配使建筑端庄沉稳,仿石材铝板用在弧形屋顶,寄托着人们对传统文化的记忆。
室内设计
INTERIOR DESIGN
“紧密结合的建筑与视觉艺术”
_
室内的装饰风格汲取了新艺术运动的思想精华,紧密结合建筑与视觉艺术,赋予形式图像建筑语言。整体装饰风格古典、大气、简洁。
设计中用色彩呈现室内的情绪,墙面主要使用鹅黄色,色调轻松柔和,营造出含蓄恬淡的温暖感;地面主要使用浅灰色,强调历史的素净与积淀。
室内软装布置温馨典雅,给参观者以舒缓放松的心理感受,同时也更好的烘托了整体建筑的氛围。
技术图纸
TECHNICAL DRAWINGS
_
◎总平面图
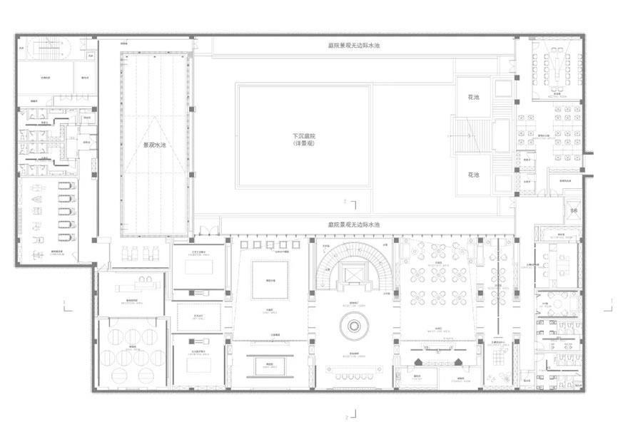
◎地下一层平面图
◎一层平面图
◎南内立面图
◎南外立面图
◎北立面&下沉庭院立面图
◎1-1剖面图
◎2-2剖面图
结语
—ENDING
南京溧水示范区以中国传统园林为蓝本,运用现代建筑语汇绘制现代东方神韵。依循大形于外、藏秀于中的设计主旨,超越历史与现代、外在空间与内在意蕴,在光、影的隔与连中,创造和谐与宁静相融的境界。
工程档案
项目名称 | 南京北大·颐和翡翠府
项目位置 | 南京溧水区
业主单位 | 北大资源
建筑设计 | 上海日清建筑设计有限公司
设计总负责 | 宋照方
设计团队 | 易爱生 徐大伟 李文科 汪晔 高依娜 崔娟
景观设计 | 美国摩高规划景观设计事务所
室内设计 | 深圳矩阵纵横室内设计有限公司
幕墙设计 | 弗思特工程咨询南京有限公司
钢结构设计 | 浙江朗诗建筑装饰有限公司
施工图设计 | 江苏省建筑设计研究院有限公司
地上建筑面积 | 453.14㎡
地下建筑面积 | 1993.8㎡
容积率 | 0.11
设计周期 | 2018.12-2019.06
竣工时间 | 2019.06
建筑摄影 | 是然建筑
客服
消息
收藏
下载
最近







































