查看完整案例


收藏

下载
郑州康桥悦蓉园Kangqiao Yuerong Garden中国,郑州Zhengzhou , China
20世纪30年代,面对社会的大量住宅需求,勒.柯布西耶提出了跨时代的“机械美学理论”,探讨工业、经济与功能的关系,将住宅看作居住的机器。中国快速城市化的三十年,为解决大量新增人口的居住问题,“批量生产精神“发挥了重要的作用,与此同时也带来了城市空间的冷漠及城市风貌的千篇一律。
我们把目光放到本案所在的城市郑州,它曾是东方文化的中心、华夏文化的发祥地,一个拥有有时间厚度及人情温度的城市。作为空间秩序的创造者之一,我们建筑师相信,新的城市生活是需要同时包含传统智慧的延续及现代审美的注入。
在国内房地产高周转的背景下,越来越多的房地产企业将展示中心作为一个销售道具,对其进行精心设计和建造,当销售阶段结束后则把收回来的资金用来运作下一个楼盘,而对作为居住和生活主体的社区本身缺乏重视。康桥悦蓉园项目是一个特例,尽管也属于一个快销盘,但整个社区的建造过程都保持与设计的密切联系,使整个社区、展示中心、建筑外观、景观构筑物到建筑构件都保持着精细化及设计审美的一致性。
规划
中轴对称 传统礼序
_
中国传统建筑在平面布局上讲究中轴对称与均衡布局,代表“长幼有序,内外有别”。结合地块呈南北向矩形且南北长东西短的特征,立足中原文化的复兴和礼仪与秩序的重塑,构建南北向的空间主轴线,形成景观与空间序列。同时结合地块的西入口,形成一条东西向次轴线,将地块分为南北两个区域,北侧布置高层住宅,南侧布置多层花园洋房。
◎ 鸟瞰效果图
风格与立面
东韵西构 多元交融
_
面对多元的都市生活体验诉求,摒弃复杂的造型和厚重的材料,享受看似随性但又有章法可寻带来的欢愉,去风格化,往往有着更强的包容性,将传承文脉的新中式风格、闲情雅致的草原风格和体现传统都市生活的新古典风格拆解在融合,集品质、温馨、典雅和都市于一体。
◎ 洋房模型照片
立面构图采用经典三段式,强调比例和秩序,使建筑的形态更加庄重威严。延续中国传统住宅的坡屋顶,利用片墙进行空间分隔,保留庭院空间,遵循传统住宅的布局模式,通过现代材料和手法对传统建筑元素进行抽象和演绎,保留中式住宅的神韵和精髓。
立面形式强调简洁大气,细部精雕细琢,体现品质。色彩搭配上,以暖色调为主,辅以丰富的变化,同时又兼顾色彩之间的和谐感,营造温馨浪漫的视觉体验。
展示区设计
东方美学,古韵新风
_
展示区位于基地的西南角,在功能使用上前期作为售楼中心,后期改为幼儿园使用。展示区作为社区的门户,设计上通过现代建筑技术、材质和工艺的处理,将传统中式建筑和郑州的地域人文情怀,浸透在一窗一格、一亭一院之中,既显中式格调,又无复古之赘。出檐深远的金属屋面,半室外的亲水走廊,结合大面积中央水景,于窗花百叶的光影摇曳中营造出典雅中式味道的空间氛围。整体既体现现代建筑的简约时尚,又蕴含中式建筑的清幽静逸的意境。
◎ 展示区平面图
建筑主体采用框架结构,立面由玻璃幕墙、金属幕墙与石材幕墙相互结合而生成。通过现代简约的设计手法,从整体出发,细腻刻画,以斜切石材形成的“门”字型为母题,通过母题阵列形成柱列,同时融合格栅花格等元素,形成形成清新高雅、挺拔秀丽的整体立面格局。
精细化设计
厚重典雅 精于细微
_
为了对整个项目的实施细节进行把控,实现较高的建筑完成度,设计团队为整个的项目制作了材料与立面控制导则,内容包括建筑材料与施工工艺、节点细节以及建筑构件细节等。
◎ 节点大样
◎ 实体模型
立面材料以素净的白色毛面真石漆和细腻柔和的金山麻石材为主,花园洋房搭配蓝珍珠石材、深灰色铝板和仿铜拉丝铝板,营造一种厚重典雅、富有仪式感,既现代同时又有传统神韵的立面效果。
院 • 门
院落递进 礼序等级
_
中国传统空间体系讲求从公共到私密的逐渐过渡,“街-巷-院”就是这种过渡的典型代表。结合传统空间特征与现代住区的空间模式,本案形成“门-(廊)-庭-园(或苑)-家“的层层递进的空间体系。庭是整个社区的公共核心,也是中轴线上的节点空间,在高区通过大尺度花园打造核心景观,为住户提供生活与交往的场所;园或苑是组团级公共空间的核心,结合每个组团的空间特征,打造社区的人文情怀。
◎ 西大门空间分析图
门是分割不同空间的实体,同时也是联系不同空间的出入口,中国传统大家族讲究门风礼仪,不同层次的门通过精心设计体现不一样的形象与仪式。一进大门,是社区内外的分界线,“出则繁华,入则宁静“,从传统中式建筑中抽取空间和立面元素,以现代的建筑材料和手法,进行具有时代感的演绎。
二进园门,是通往园或苑的入口,也是一进门的缩小版,与一进门一起共同形成门之仪。
三进宅门,通过突出的高大石墙,强调私密性,营造高墙深院的大家门风,进入专属于家的天地。
建造花絮
_
郑州康桥悦榕园项目从2016年10月开始前期方案,至今已有近三年时间,从前期售楼处到首开区落地,到大区的建设,整个施工期间设计团队全程配合,不仅对总图形态、户型布局、立面造型及选材进行全方位把控,同时对小区的多处景观构筑物,大门进行详细的设计引导,力图使整个社区从建筑细节到景观环境呈现出设计审美的一致性,真正把中原文化融入到整个社区生活。
建筑图纸
_
◎ 总平面图
◎ 示范区首层平面图
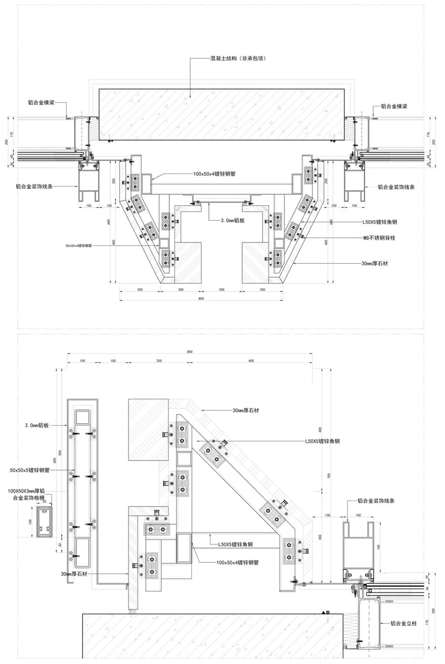
◎ 挑檐细部节点
◎ 幕墙细部节点
工程档案
项目名称丨郑州康桥悦蓉园
项目位置丨郑州经南十二路
业主单位丨康桥集团
建筑设计丨上海日清建筑设计有限公司
总建筑师丨宋照青
副总建筑师丨赵晶鑫
设计总监丨郭继钧 李哲翔
设计团队丨冀林娟 陈良朋 程建雄 申田野 郑状状
设计时间丨2016.10
建筑摄影丨行知摄影
客服
消息
收藏
下载
最近





































