查看完整案例


收藏

下载
依托广达300平方公里的北方最大人工水域小浪底,黄鹿山半岛成为当地政府关注的新晋3A级景区。
↑ 远景
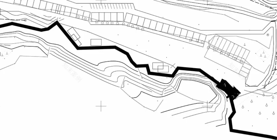
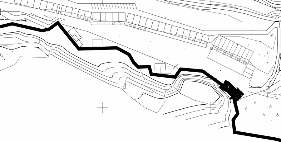
景区地形复杂陡峭,少有平地。沿风景优美的湖岸线前行4公里,尽头为库区移民遗留的窑洞,前期已部分改造成客房,具备基本住宿条件。新的项目需在完善景区接待功能、丰富游客体验感的同时,为景区内未来其他功能性构建筑探索设计方向。
最大限度减小建筑对环境的干预是设计介入的前提。这既包括了形制、体量、材料的适应性,也包括对基地现状的尊重。基于这一观念,建筑以类干栏式单层结构方法脱离地面,尽可能不做土地硬化,并保留了周边所有树木,成为最行之有效的回应策略。室内地坪与原地面之间的空腔分别砌筑了贯通整个空间的风道和壁炉烟道。地下风道保障了室内空气在门窗密闭条件下的对流交换,另外利用空腔所设计的下沉式壁炉和排烟道,是严寒天气下空调之外的采暖补偿。
这亦可理解为对节能环保型建筑的响应。
↑ 雪中桐舍
↑ 临崖悬峙
↑ 桐树枝柯是冬日旷野最动人的构成
建筑主体是了无新意的盒子,如何让简单物像仍然具有丰盈的可读性?当地少雨而阳光充足,建筑朝向的原因,可以预见室内在夏秋两季将面临长时间的强烈光照,类似传统坡屋顶的遮阳系统的出现,成为另一个必然。竹架板的缝隙透光通风,较小的风阻和自重,则保证了遮阳棚结构自由度和安全性。这种价格低廉,极具表现张力的材料也被用来覆盖墙体表皮和外廊地面。同样,朴素的桐木则在室内呈现出另一种装饰意味的高级感。
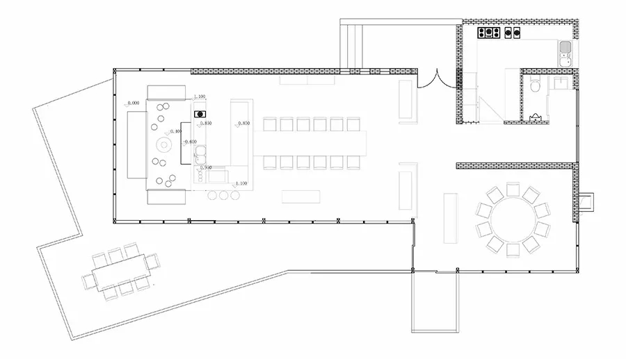
南北向和西面的外廊形成约100平米的流动空间,与周边环境高度契合。基于场地制约,室内格局除厨卫用房外,餐厅、茶室和下沉式壁炉区均是开放融合的,空间功能可以根据多至40人的团队或小至散客进行拆分组合。竖向格栅界墙呈现了空间的通透性和关联度,达到以小见大的设计目的。
↑ 入口
↑ 前廊
↑ 可以清谈品茗,泼墨挥毫的主厅
↑ 室内一隅
↑ 湖光山色
↑ 水吧区置物架
↑ 向火而坐围炉夜话
↑ 内外交织 互为借景
↑ 餐厅
↑ 格栅式的界墙保证了空间构成的通透性
南立面临水,与湖面有7米落差,观景廊做反切线处理出探悬挑,处其上,有凭栏畅怀的意趣。反切线与湖岸形成的夹角,一定程度控制了观景方式,但也让漫无边际的远山近水呈现出结构性。
↑ 概念图
业主:洛阳黄河小浪底黄麓山半岛风景区
建筑设计:东厢营造
设计团队:李凡、王竹馨、谭子颖、刘婉月
工地技术员:黄一飞
结构形式:焊接钢结构+简支楼承板屋面
工程造价:RMB400,000
建筑面积:135M2
设计时间:2018.06-2018.10
竣工时间:2019.01
摄影:李凡安戈
客服
消息
收藏
下载
最近




























