查看完整案例


收藏

下载
△时代天樾都会美学中心的实景呈现
“自然界中的所有物质,山脉,溪流和空气,包括我们都是由光所构成的。光是物质的制造者,物质的目的是投下阴影,而影子属于光。”正如路易斯康所说:“设计中,我们用光做导演,影子做主角,进行空间叙事”,引导人们体验个性、独特的光影空间,由内而外地展现建筑优雅的艺术气质。项目选址在南京江宁片区规划中的一处城市公园中。基地东临东麒路,南侧正对天行路与永胜路的丁字路口。用地局促,呈梯形,周边环境杂乱、喧嚣。为了缓解紧张的用地,我们用一个看似简单的方案回应了设计难点:一个方盒子,一片镜面水景,和一条L型回廊。35.5×27.7米的建筑主体简洁明了,退至东南侧,让出南侧水院;镜面水景与建筑倒影相互辉映;L型回廊将不规则地块划为停车场。建筑在镜面水景中的倒影与廊道中光线经过金属网帘后斑驳的影子巧妙地融合,光与影将空间不断地雕刻、延伸,赋予空间动态的序列感和静谧的个性。
△项目区位示意图
△形体生成——一个方盒子,一片镜面水景,和一条L型回廊
△紧张的用地与紧凑的布局
△建筑在镜面水景中的倒影与廊道中光线经过金属网帘后斑驳的影子相互辉映
光影形塑
人们经过光影的洗礼,转身的瞬间,建筑的形象即映入眼帘。设计中,我们力求建筑与空间统一,建筑室内外及景观材料统一,旨在让建筑的空间体验呈现出清晰的逻辑。
立面上,我们以高透玻璃、超白U型玻璃、石材及铝板覆盖建筑外观,反复推敲透明、半透明、实体三种界面之间的比例,探讨光影之下虚与实、轻与重之间的关系。光与影简洁有力地雕刻着建筑,塑造出凹凸有致的形体关系。
首层玻璃高透低反,意在消隐,衬托建筑的雕塑感。超白U型玻璃在光线之下呈现温柔玉润的半透明质感,展示出优雅的艺术气质。浅灰色石材的横向纹理伴随光与影的变化,仿佛记录着时间的流逝。石材以工厂大板排版编号,现场错缝密拼的施工方式,强化肌理的连续性与整体性。
△光与影对建筑简洁有力的雕刻
由白色铝板雕刻而成的“时光之窗”位于二层,用静态框架记录了光影的路径,达到时间与空间的延续、串连,实现室内外空间的互动体验。建筑主入口藏于主立面的光影之中,形体在三分之二处急转直下,暗示着主入口的重要性。
△光影下的建筑主入口和二层白色铝板雕刻而成的“时光之窗”
光影空间
斯蒂芬。霍尔曾说:“光线可以塑造空间氛围,也使空间产生一种不可确定的性格,形塑出在行经空间时短暂的即时性经验体会。”光作为建筑空间的灵魂,建筑室内设计了光之接待厅、光之展示区、光之休闲区三种形态各异的光空间,引介光与影,构筑向量秩序,通过光与影的互动,重新塑造交织、动态的空间体验。一起探寻光影的变幻、空间的透明性、以及光影空间中材料的诗意表达。
△光影空间 —— 3个光空间
“光之接待厅”是进都会美学中心后的初印象,一条线性、精巧的两层通高空间将入口门厅与二层生活体验中心联系在一起,上下两层空间的人们,在此处产生了空间对话;当光从屋顶线形的天窗洒下来时,空间与材料的诗意就在不经意间呈现出来了。
△光之接待厅——线性、精巧的两层通高空间
△光之接待厅首层看向屋顶线形天窗
△光之接待厅二层回看一层,光影空间与材料的诗意表达
“光之展示区”的屋顶天窗呈方形,光线经过折形铝板形成数条光影,宣泄而下;光线经过浅灰色横纹石材的折射和漫反射在四周富有韵律的短墙间漫游,赋予整个空间博物馆的独特气质。
△光之展示区——方形的两层通高空间
△光之展示区首层具有独特的博物馆气质
△光之展示区二层的光影空间
“光之休闲区”以大尺度的长方形边厅将二层走廊空间与首层休闲区空间充分叠合在一起,屋顶天窗下的折形铝百叶,分为大小两个规格,巧妙地隐藏了屋顶的纵向钢梁,融合了室内的灯光设计。天窗光线经过过滤,产生的动态光影,伴随时间的流动,在空间中舞动,记录着时间与空间的交织、互动。
△光之休闲区——二层走廊空与首层休闲区空间完美叠合、对话
△折形铝百叶巧妙地隐藏纵向结构钢梁
△天窗光线经过折形铝百叶过滤产生动态的光影效果
温柔的光线从二层超白U型玻璃后均匀地洒下来,禅意的庭院景观从高透玻璃之间融入室内,两者与空间中变幻的光影交织一起,使空间顿时安静,完全感受不到咫尺之外城市中的车马喧嚣。
△温柔的光线,禅意的庭院景观,动态光影空间相互交织
光影序列
沿永胜路的城市界面,建筑巧妙借景,越过景墙以一种极致、安静的水平姿态,与嘈杂、喧嚣的城市对话。
△建筑以一种极致、安静的水平姿态与嘈杂、喧嚣的城市对话
院落空间中,建筑与景观之间以借景和移步换景的方式,让狭小的场地空间小中见大,丰富空间体验。
△建筑与院落景观相互辉映
折线形廊道延长了访客进入都会美学中心的时间和路径,廊道的多次转折及精心设计的片段化场景,在光影的不断变幻中,让人们不经意之间对即将到达的场所产生期待。
△折线形廊道延长了人们的行进路径
△廊道倒影与镜面水景
随着人流的延伸,映入眼帘的便是接待厅了,光影在两层通高的石墙上不断变幻,将人们引向身后等待多时的展示区。离开展示区,短墙间渗透出来的光线接向休闲区,豁然开朗的通高空间,伴着温柔的光线,整个空间散发出的静谧氛围,宝贵的如同盛宴后的清茶,让之前光与影的变幻得以慢慢回味。
△光影不断变幻的接待区石墙
△散发艺术气质的展示区
△静谧、优雅的休闲空间
休闲区尽端的折线形旋转楼梯,雕塑感十足,深咖色的色调是沉稳的室内基调中唯一跳脱的颜色,与空间中不同层次的灰形成了色相和明度上的鲜明对比,暗示着通往二层的重要流线。
△深咖色的折线形旋转楼梯
△俯瞰折线形旋转楼梯与休闲区
△午后的二层走廊空间
△折线形旋转楼梯的二层入口
△二层生活体验中心的回廊空间
这栋藏于喧嚣闹市中的建筑,希望可以唤起人们对生活本质的探寻。建筑,化繁为简,让光在空间中叙事,引导人们在光与影之间穿梭,感受时间与空间的对话,细品生活的美好。
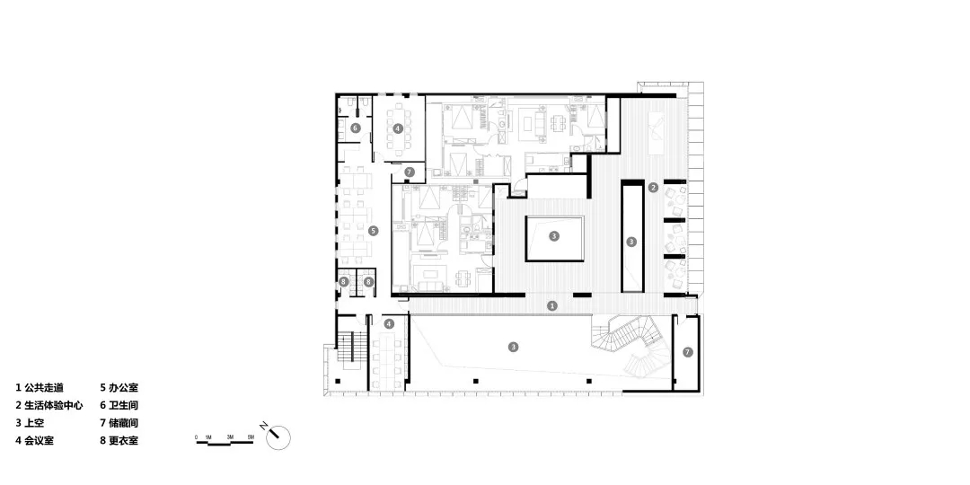
△一层平面
△二层平面
工程档案
项目名称: 南京时代天樾都会美学中心
建筑事务所: 南京天华
主创建筑师: 张婧 周昂昂 王明
设计团队:路晓彤 潘仕亮
项目详细地址: 南京市永胜路与天行路交叉口
项目完成年份:2018年11月
建筑面积(平方米): 1445㎡
摄影师: 曾江河
业主:南京泰麒置业发展有限公司(万科旭辉正荣弘阳中骏联合开发)
景观设计:HWA安琦道尔(上海)环境规划建筑设计咨询有限公司
室内设计:集艾室内设计(上海)有限公司
幕墙顾问:上海熙玛工程顾问有限公司
灯光顾问:上海福思照明设计有限公司
撰文:王明
建材商品牌 + 产品:
人造石板材:上海序墨新材料科技有限公司
超白U型玻璃:阿普尔顿特种玻璃(太仓)有限公司
高透白玻:台玻昆山玻璃有限公司
客服
消息
收藏
下载
最近













































