查看完整案例


收藏

下载
我愿深地扎入生活
吮尽生活的骨髓
过得扎实简单
把一切不属于生活的内容
剔除得干净利落
—— 梭罗《瓦尔登湖》
考究择址展现人生阔度
红桥区是天津的发祥地,位于天津城区西北部,是天津市六个中心市区之一,是天津市赴北京、河北、东三省重要通道之一,天津西车站将成为连接南北大动脉的京沪高速铁路的重要枢纽站。
红桥区境内河流较多,南运河、子牙河、北运河贯穿全境,于三岔河口交汇流入海河。南运河、北运河、子牙河均为一级河道,二级河道有津河。
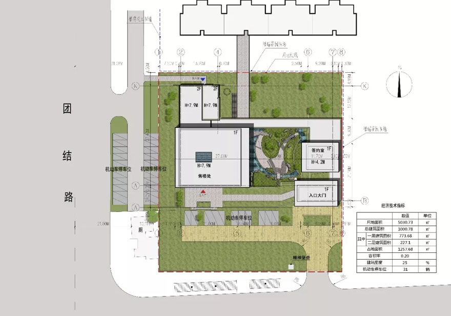
注:红色的基地为临时售楼处
规划布局打造极致属性
自拿地初,杰作建筑设计便全程参与规划策略过程中,经过层层方案推导,在保持空间景观序列、品质为前提的基础上,在建筑密度满足≤20%的要求下,主力户型及大房型考虑大面宽产品的前提下做到叠墅、小高层、安置房的最大化,并且将货值最大回报等诸多的条件限制情况下,这个项目是挑战,更是创新!
设计愿景奢中见雅,雅中见性
本着用户的极致奢雅体验,打造顶级的人居典范是这个项目打造的核心诉求,以府系华宅打造奢雅生活,给客户更臻致的居住体验。
设计理念
Design concept
传承兼具现代与古典的建筑文化
传承传统的建筑文化,建筑规整呈浩大之气,融合现代设计手法,建筑庄重而空灵,与奢雅的要求一脉相承。
经典景观之上的经典
承袭项目文化内核,从文化提炼、空间营造、材质工艺等方面入手,时空距离、层次画面,连贯、对比、烘托和共振,处处流露出表达和思考、哲学和情感,是经典景观之上的经典。
极致细节 匠心独具
建筑细节之雕琢基于匠心精工,色彩、规模、结构、部件等,极致细节,于微小处彰显项目气宇轩昂的气度和尊贵的品质感。
↑ 高层立面效果
↑ 多层立面效果
↑ 安置房立面效果
景观要点融景于情的生活大境
审美来袭,品位上升,一种生活态度正应时而生,基于独特地域性的尊崇感,项目用现代的手法诠释现代新古典的韵味;同时以“3M生活理念”(Modernization、Meeting、Meaning)手法来提升居住功能需求,展现当代人未来居所的生活大境。
项目旨在引入生态自然基地,与项目景观融会贯通交织美感,同时强化主题人文内涵进行传递,主题功能的景观创造更多的功能体系只为更好地展现人文关怀,以现代新古典2.0的手法将景观融景于情,满足全龄段功能需求的记忆性场景,为城市高端人群提供品质化生活体验。
↑庭院透视
示范区打造
Demonstration Zone
衡门之下,可以栖迟。——《诗经·陈风》
| 三进门第,归家礼序 |
礼者,天地之序也。中国人重视这种秩序,并在此基础上延展出“礼乐文化”,以此营造出人与人、人与天地的和谐关系。这种遵循规律的信仰,直接映射于建筑之上,而礼序,则是府院建筑魂之所在。
项目传承东方美学,以层层递进的空间秩序,一进府门,二享府韵,三穿府海的礼序感,每层空间的递进都传递着尊贵优雅的场景转换,以此营造出境界层出的情感体验,让每一个归家者,回归的不仅是身体,更是内心的回归。
| 府门气度 |
主入口威严的大门开启归家的第一重礼序,尊崇归家的殊荣,中轴对称式礼仪小区形象入口,营造一种入口轻奢的氛围,彰显一个家族生活的高度,一进一出,皆是庄重仪式的高端体验。
| 迎宾会所 |
高贵奢华的社区客厅,庄重大方的形体气场,雕饰繁复的修饰细节,处处传达着建筑与空间的尊贵气质。开合之间,流露礼仪之真谛。
| 私享庭院 |
穿过移步换景的生色景巷,每次归家都是一种归隐的世外情怀,曲径通幽处,将喧嚣隔离其外,门第风雅直抒胸臆。步入院门,一方天地;花草石竹,生意盎然;房前屋后,收放其间;庭台院阁,怡然自得。
空间美学精装典范
打造满足家庭生活功能需求的全功能产品
奢装体验,奢享舒适生活,演绎空间主义与自由美学的完美结合。端庄大气,又不失典雅。古朴的淡泊中,透露着一丝岁月沉淀的美感。
多层平面
A2户型
客餐厅一体化设计
大空间灵活实用
首层适宜老人居住
轻奢主卧
独立玄关体系
全生命周期空间设置
视觉化门窗设置
酒店化功能配置
高层平面
D户型
独立玄关设置
全生命周期空间设置
多功能人性化空间设置
视觉化门窗设置
餐客通厅
轻奢主卧
酒店化功能配置
生活美学大潮袭来,就如首创置业一直专注生活品味的营造,杰作建筑设计也希望每一个作品都能为这座城市提供更优越的生活样本,创造一份宜居生活大境。
项目信息
项目名称:首创天津·禧瑞府
项目地址:天津市红桥区西青道与团结路交口东北侧
业主单位:首创置业
设计单位:新加坡杰作建筑设计
总建筑面积:119225㎡
其中地上:80000㎡
地下: 39225㎡
住宅:77080㎡
容积率:2.07
建筑密度:20%
绿化率:40%
客服
消息
收藏
下载
最近


























