查看完整案例


收藏

下载
这座由仓库改造成的住宅位于日本岐阜县(House in Yoro),由当地Airhouse工作室设计。
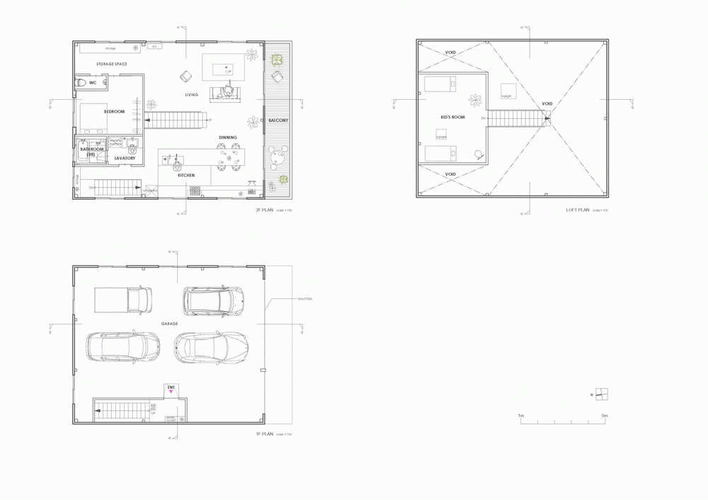
我们的客户在设计之初有个最大的要求——要让家中处处都能感受到生活空间(起居室)的存在。于是我们正好利用原有仓库建筑的优势,将整个居所设计成一个单一房间的布局。厨房位于房间的一侧,有着超大的操作台,在此,妻子有着任意“挥霍”的空间去制作出一道道满足家人的佳肴。
在“仓库”的另一侧,我们设计了一个房中房,一个可以直接上到二楼的方盒子,这里包含相对私密的卧室空间,其中的“二楼”卧室是留给孩子们的,这里的每个房间都粉刷成鲜亮的色彩与外面形成对比。
为了减少房间的热量损失,10公分厚的发泡聚氨酯被贴到屋顶墙壁及地板上,同时地板采用地采暖方式为房间均匀加热。我们看到的这个层面其实是房子的二层,通过楼梯下去后是一个可以容纳四辆汽车的车位,相信,在日本有着如此宽敞空间的居所一定是土豪或地主无疑了……
客服
消息
收藏
下载
最近























