查看完整案例


收藏

下载

翻译
Surrounded by exotic building clusters in the Bund area of Shanghai, Hengfeng Building seems inconspicuous, even a little decadent. If not because of the splendid Ionic columns with finely wrought details indicate its old flourish days, perhaps the 87-year old building would vanish in the history. Time can choose what to be remembered today and connect people together under a certain place in such a mysterious way.
Having been tasked by MIXPACE to renovate three floors of the historic architecture into a co-working space, Yushe Design aims to transform the enclosed, dark building-used as a hostel before- into an open, transparent and contemporary working space, responding to its historic context, yet is uniquely of its place and time.
Located in No 452-454 Middle Jiangxi Road, Hengfeng Building was approved by Shanghai government for the fourth batch of historic architecture.
From day one, Yushe Design has talked with the client to show the most respect to the history. However, what to reserve or repair depends on the way we see the past. As John Berge mentioned in the book‘Ways of Seeing’, past is not for living in; it is a well of conclusions from which we draw in order to act. So here is Yushe Yuzhu’s answer: the renovation will be derived through scientific analysis, rather than mystifying the past.
When the interior plaster wall is removed, the robust steel concrete structure of the building was exposed. With the collaboration of H.N.A Architects, the classical delicate moulding of the ceiling is well preserved and repaired with similar handicraft and material which shows the unique identity of the building and brings the history of the site to life.
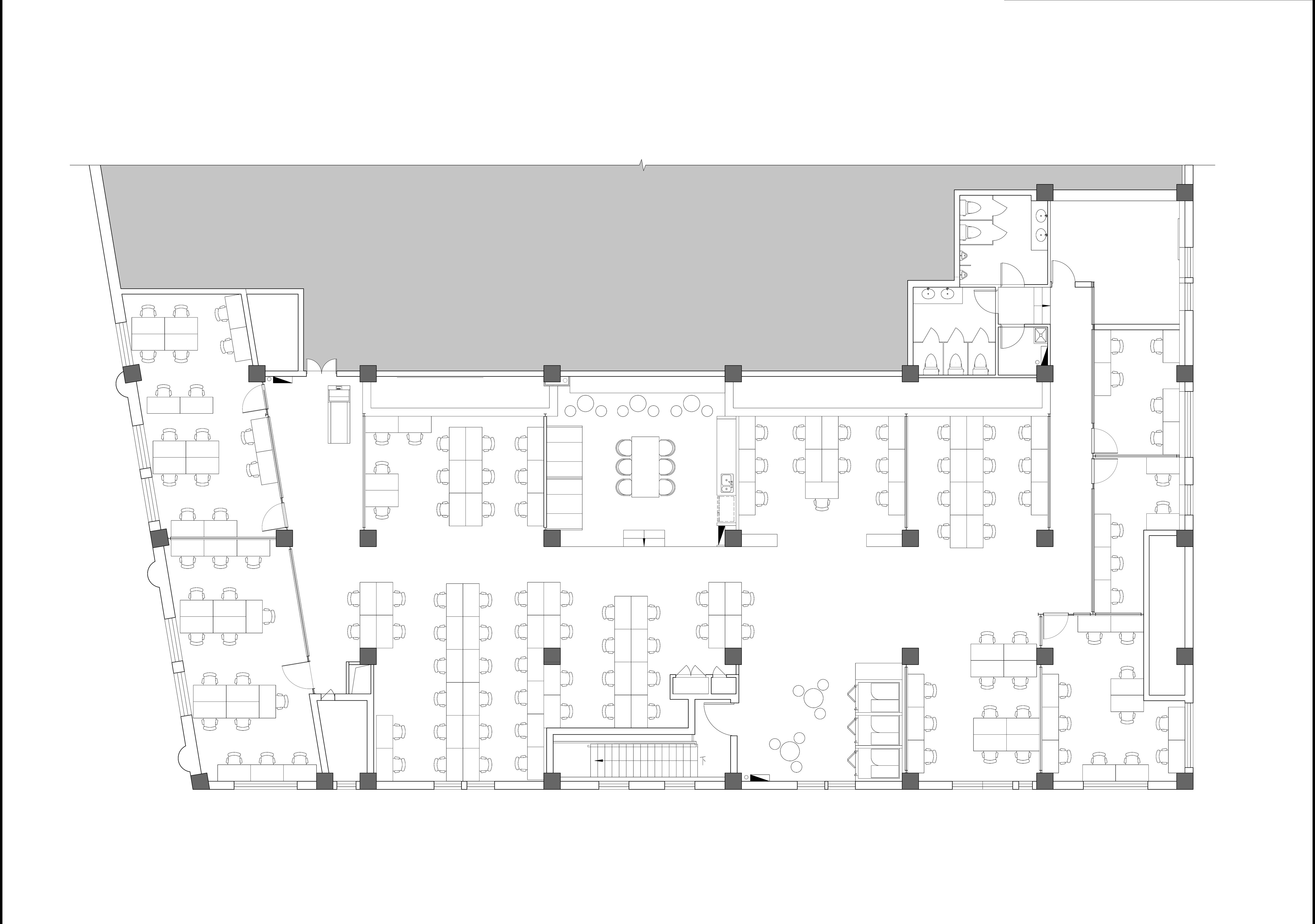
In order to meet the functional requirement, we have to insert several partition walls, whose major materials are glass and steel columns, helping to maintain continuity of the delicate moulding and reduce visual noise.
One of the major problems of the building was that it was too dark. So we remove all the removable walls to make the whole space open, and create an atrium to make it bright.
The central piece of the building’s interior is a spiral staircase run through the double- height space. The ramp twist to form an oculus at the apex, which creates a skylight-like‘dome’ in the roof that in another way embodies the core visual identity of the
MIXSPACE company.
Minimalism is paramount, but the material is multiple. We want to create an innovative, dynamic and chic workplace for the users compared to our previous project “Phoenix”
to recall old dreams of the city. We do hope that in a space like this, people can feel the flow of time, thus cherished more of the present.
Client: MIXPACE
Project Name: MIXPACE Co-working Space
Project Location: Shanghai, China
Project Area: ca. 1900 ㎡
Design Firm: Yushe Design, H.N.A Architects
Chief Architectural Designer: Chen Xiao , Xu Yi
Design team: Pang Yu, Chen Peng, Xu Junfeng, Cao Zhen, Wang Bingke
Photographer: Xu Haoyu
客服
消息
收藏
下载
最近








































