查看完整案例


收藏

下载
魔方空间设计来源于"魔方"的概念
魔方代表了“魔幻”、“有趣”、“多变”、“神秘”
与空间设计传递的理念契合
更有承载未知世界
待开启魔方发现空间未知之意
设计夙愿——浪漫 轻松 自由 舒适 繁杂而整齐
在本次的设计中 屋主除舒适、浪漫、轻松、整齐外并未做过多要求
考虑到屋主需求 轻松简洁但能完美体现浪漫格调的 当数意式轻奢
意式轻奢它看似繁杂的软装设计却给人一种与过去相通的宁静之感
看似杂乱 实则乱中有序 其中的生活趣味好像在等待居者慢慢探索
室内空间多用暗色的风格 它完好的衬托出在设计中的各种用料质感
如同世界用理智的瞳孔 去审视我们应该从生活中体会和享受的事物
美学的黄金分割在注重比例时 又体现了一种关于理性的美学享受
是有谁规定客餐厅一定要分隔开呢 这套设计给了一个完美答卷
其实生活 就像是一副亲情间不断融入生活琐碎而创作的 温馨贴画
其中夹杂的忧愁和欢喜 它们都是日常的花纹和色彩 无可替代
在这个冬天未作餐桌前 为这个家涂抹属专于自己个性的色彩
在给屋主卧室的设计的过程中 选择使用既能低调而不从众的风格
对于背景墙 除了装饰画和雕花的装点之外 你还能想到哪些呢
取一抹秋天的晚霞给屋子一份温馨 再取一段石纹送给初冬的卧室
玫粉混着绯红色的大理石上 映着或古典或时尚的意式摩登优雅线条
设计师运用色彩和线条 细细刻画这个带着浪漫诗意的flavour之家
在被阳光和植物拥抱的阳台 我们似乎找到了生活的意义
烧烤、品茶或小酌 无论有着阳光的午后还是夕阳昏沉的傍晚
一边是美景、另一边是热闹的都市
MAGIC CUBE SPAGE DESIGN
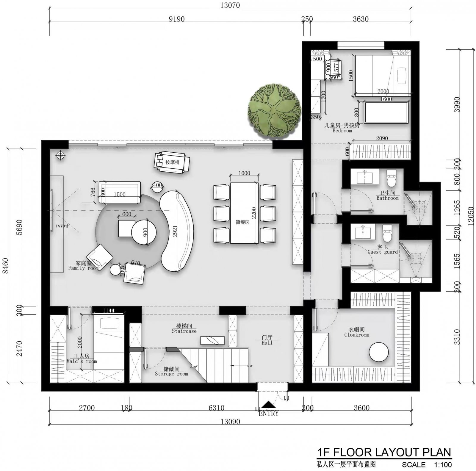
F1平面图
F2平面图
项目地点:中国.江苏
Project location: China.JiangSu
设计机构: 魔方空间设计
Design firm:MF Space Design
创意总监:本馨
Creative Designer: Benxin
客服
消息
收藏
下载
最近



















