查看完整案例


收藏

下载
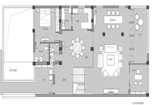
根据业主家人比较多的实际情况对平面布置进行了比较大的改造:老人房和厨房餐厅安排在平街层以方便老人;两个儿童房配备了一个不小的花园,让儿子和女儿可以在大自然里学习和成长;客厅、休闲区和主卧进行了部分加建,面积充裕的同时使功能更完善。因为该项目空间尺度比较大,所以各房间采光和通风是我们考虑的首要重点。重要空间我们都安排在了临花园或者临江的地方,使其风景优美、光线充足、通风良好。对楼梯进行了大刀阔斧的改造,设置不重合的楼梯路线,使原来狭窄局促的楼梯彻底改观,变得宽阔大气、并承担了“镇”空间的作用。
空间设计上,“江水”理所当然成为主要元素,地面墙面都用具有抽象图案的材料来表现这一主题。客厅做了一整面巨大的屏风状的造型墙,使东方味道更加突出和肯定。与室外接壤的空间都遵循开阔通透的设计思路,尽量把室外景色引进室内、或与之呼应,而在中间的楼梯间部分则用温暖的木质墙板平衡空间的分量和温度。
客厅
采光和通风成为了设计师考虑的首要重点。会客厅安排在景观的临江面。大排的落地窗打通了人与自然的隔膜,把阳光与风逗引进来......这里的窗户是视野,是流动的繁华,是宁静的剪影。窗户是建筑的眼睛,去探寻更多美丽,让人足不出户,就把美景引进家!而那一层层的白纱帘则为窗景添上了一丝朦胧的美感。
窗外踱进来的阳光以及绿植,就是一次闲谈的开场白;
一盘棋,一壶茶,就可以把自己泡在美好景色里。
餐厅
卫生间
卧室
书房
阳台
和阳光、空气、雨露、枯枝、绿植的一场对话。
走廊
设置不重合的楼梯路线,扩宽了原建筑的狭窄楼梯,温暖的木质墙板平衡了空间的分量和温度,承担了「镇」空间的作用。
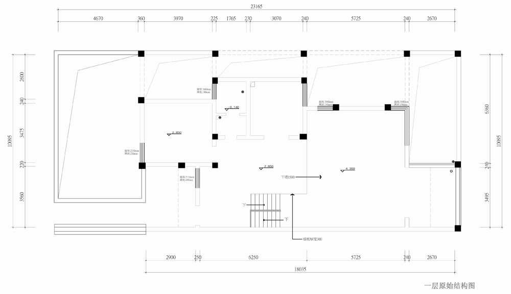
户型图
客服
消息
收藏
下载
最近





























