查看完整案例

收藏

下载
1000平方米的大宅,通过巧改布局,形成中轴对称格局,从阳光阔门廊入户;把景观面并入品质功能区域,实现室内室外互动空间;逐层细微递进铺陈块面大空间,线描意境勾勒现代中式韵味,西情东韵巧妙融合后期,铺陈出既有大宅气质又不乏居家温情的高阶风范。
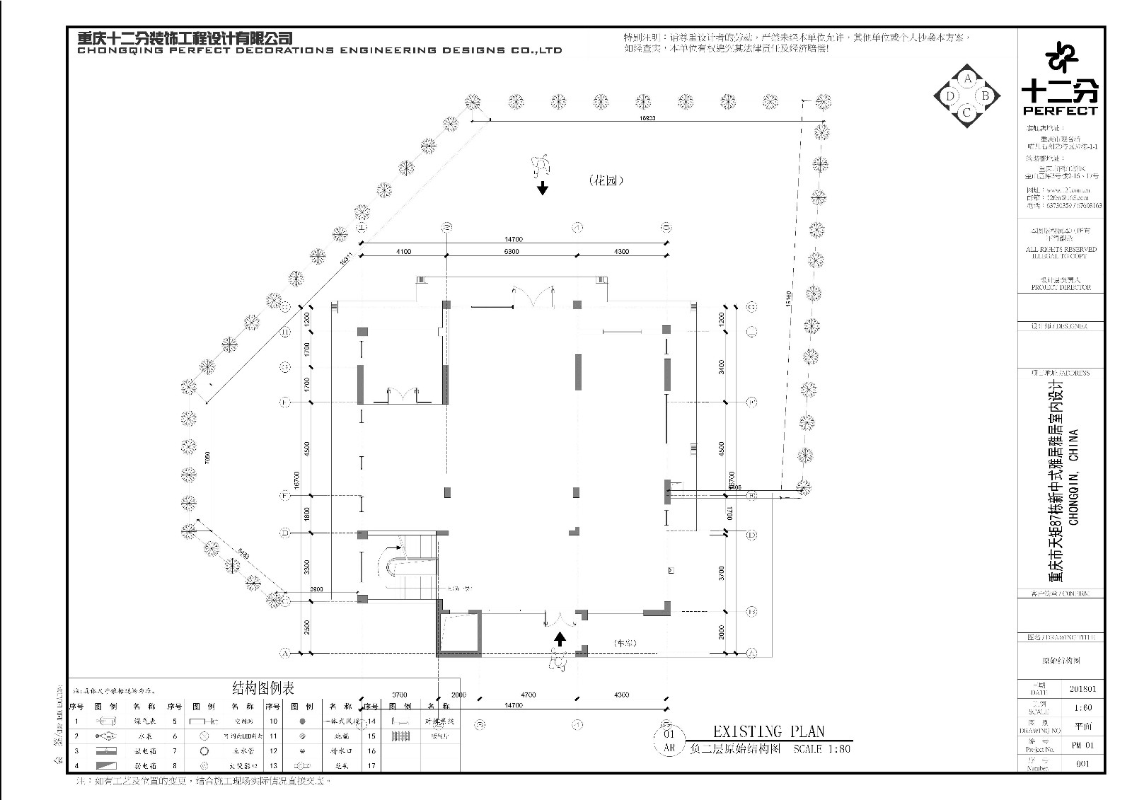
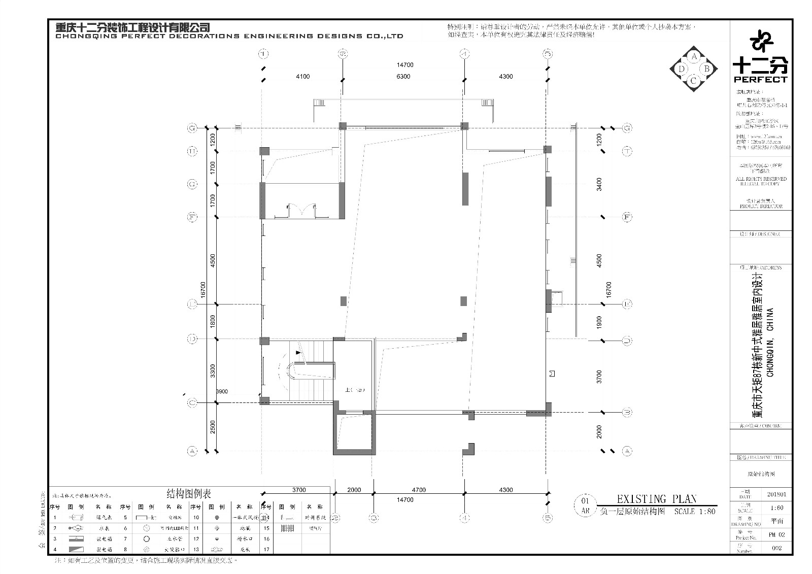
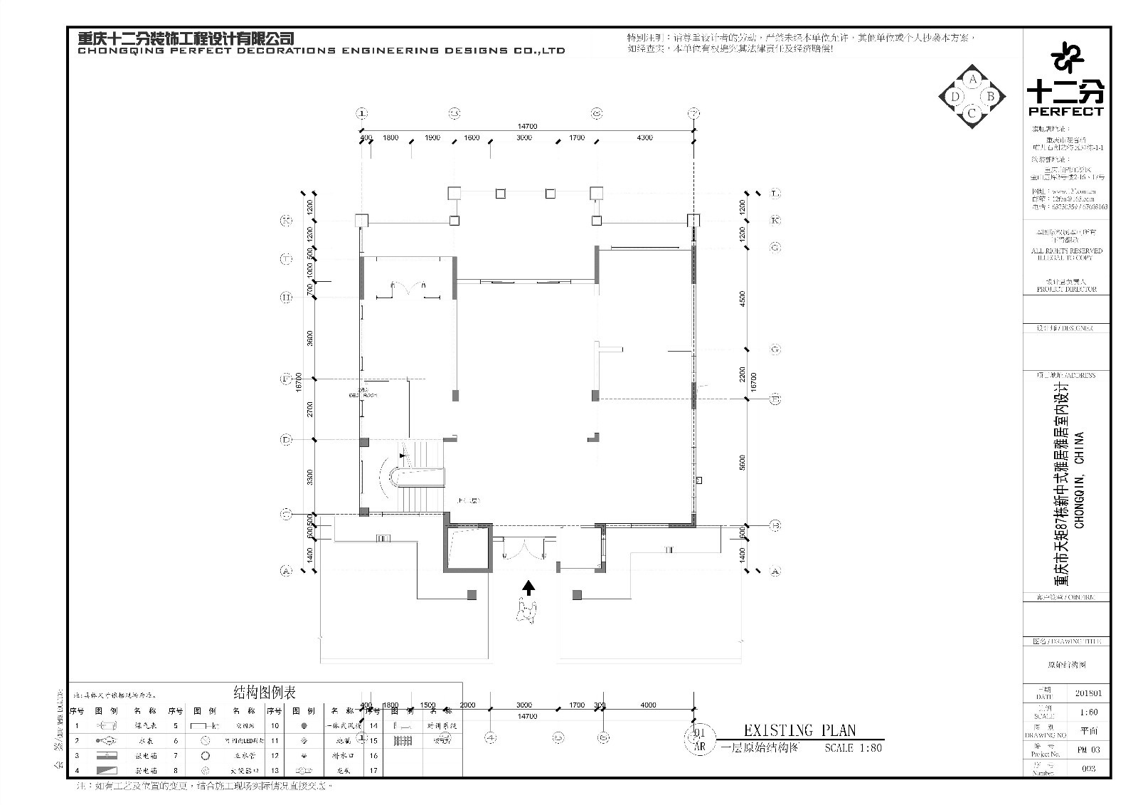
楼盘占据一线江景位置,原户型开阔有余,负楼层也能多面采光通风,规划上就直接定位为一楼开始共五层楼。缺点是从车库入户,影响归家的体验感;而且车库比室内高略450mm。设计者当如生活家,以我们期望以怎样更好的体验感回家出发,将其中一个多余车位打开连通花园,让光线进入,主宾从车库下车经过阳光回廊、伴着鸟语花香的观景花园进入高挑主大门,一改原户型逼仄黑暗的入户感觉,也巧妙采用“先下花园后平入宅”的方式化解了车库高于室内的尴尬。
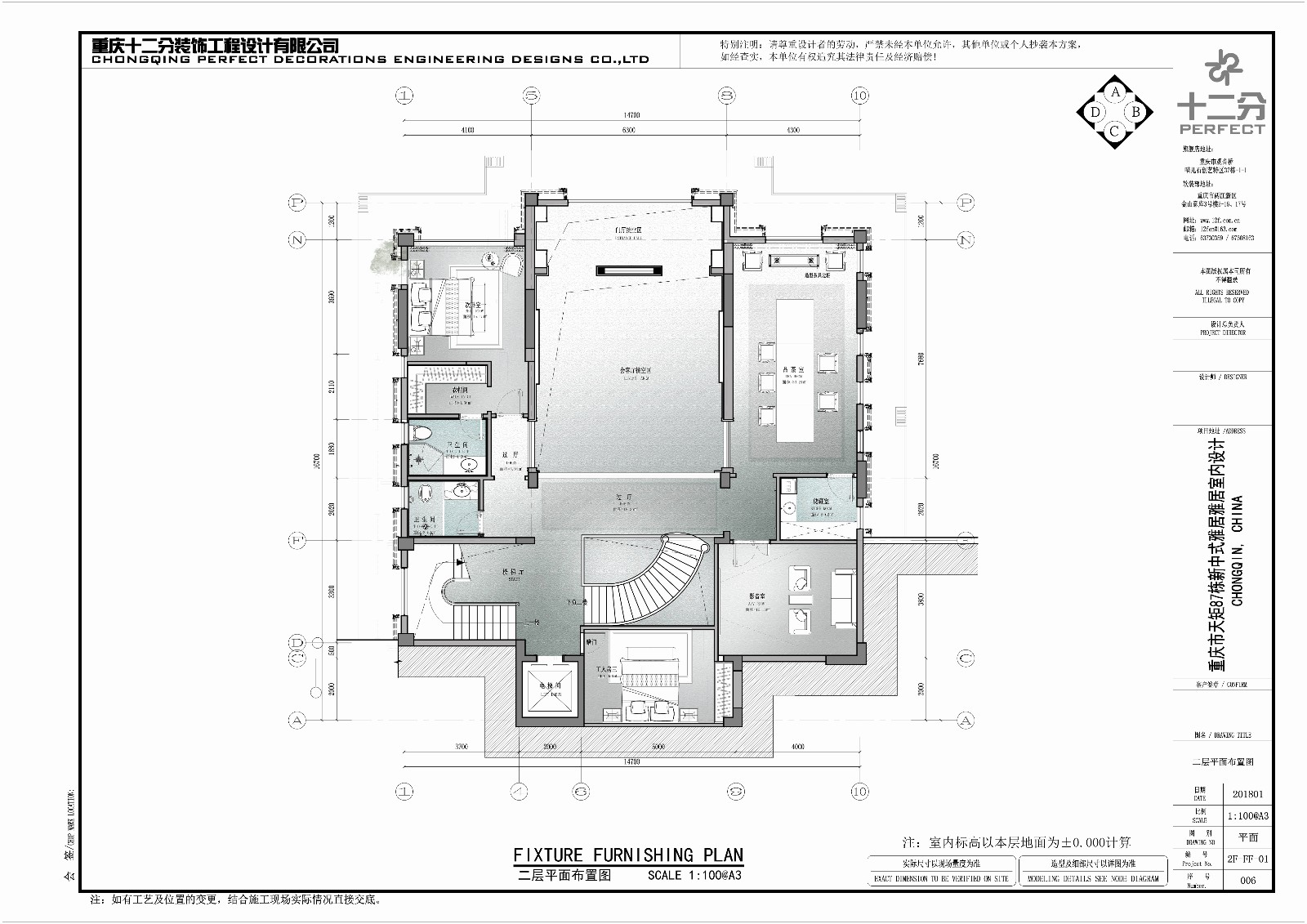
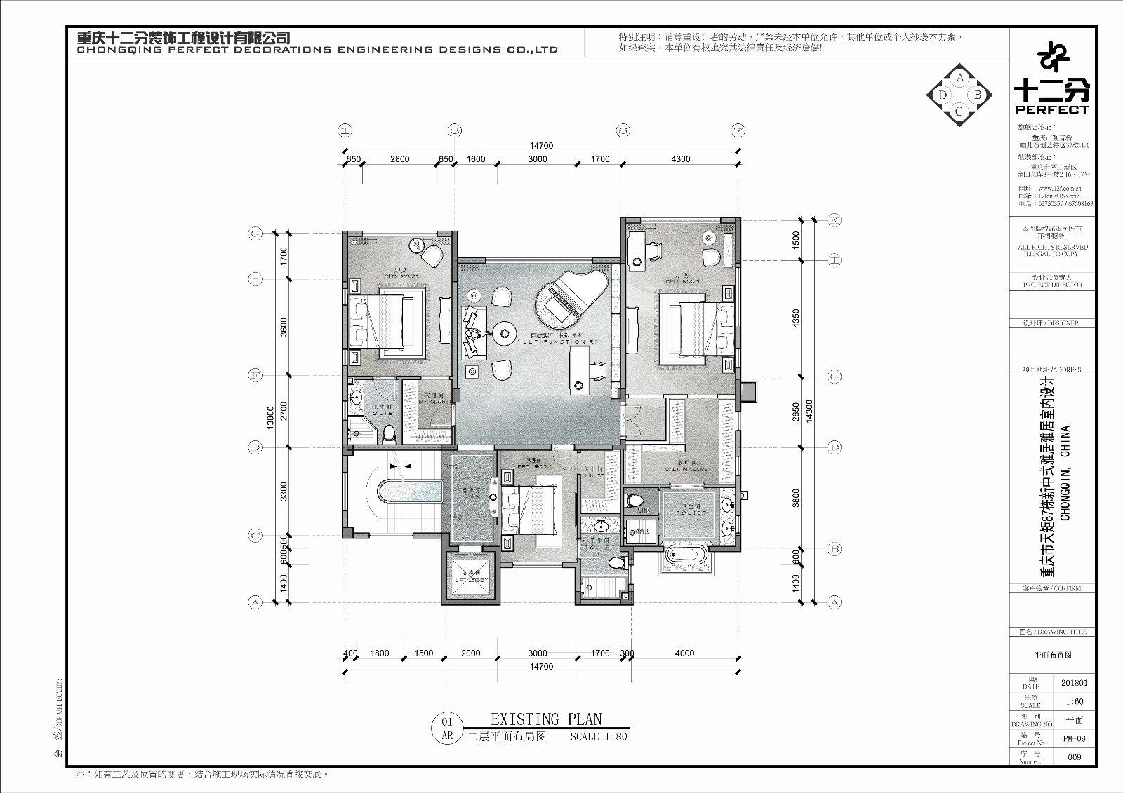
在整体的功能分区上,将待客、休闲主要集中在一楼,该区域不仅承载了家人聚会交流的功能,还是重要的社交场所,所以除客厅及餐厅外兼具酒窖、棋牌室、影视厅,以及更私密接待交流的茶室、不同工人房、客房等,客房与公区卫浴分离,尊重客人隐私,体现主人的妥帖关怀。此外,楼梯下方放置了一台陪伴孩子长大的钢琴,搭配主人的木雕收藏,勾勒出独属于家的记忆。
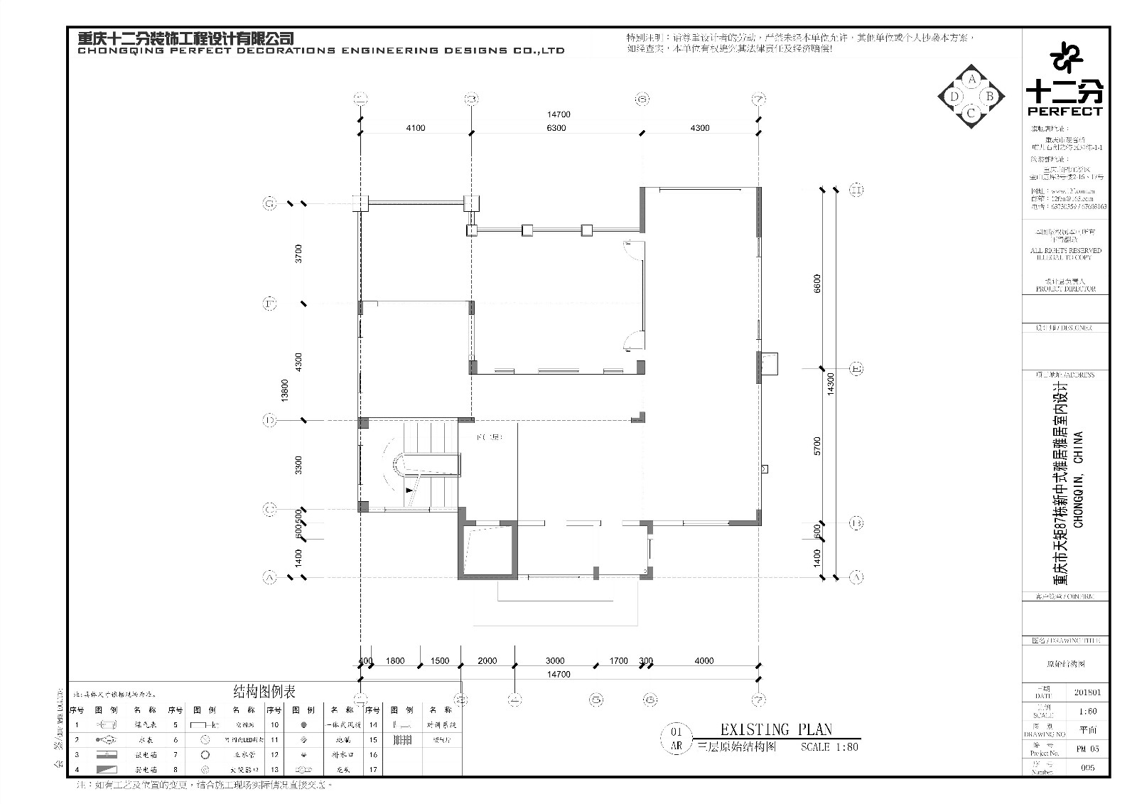
让三至五楼纯粹只用于家庭成员更私密的生活空间。
其中三楼为家庭起居厅、健身房、双方父母套房,为方便老人出门散步专门设置了进出花园的门。
四楼为常住儿子和偶尔回家女儿套房,以及为未来照顾孙子考虑的备用套房。曾经常规规划是将三楼挑高客厅搭建成为四楼的部分,一分为二作为两个套房的衣帽间,设计师现场勘测时发现搭建起来后这部分设计采光观景效果的区域,简单粗暴的成为两个衣帽间特别浪费,遂将此区域规划为多功能书房区域,方便年轻人朋友到访的接待、平时就是书房,隐蔽入墙的书橱成为利落的背景、简洁的壁炉点缀出空间的温暖。
五楼为主人夫妇专用楼层,借用露台扩大而成的休闲厅,方便两人偶尔伴着阳光品茗交流;利落灰调背景的书房方便主人在家处理一些工作或者泼墨挥毫;浅而质感的主卧室卸下一身疲惫;分设的男女主人衣帽间方便日常穿衣互不干扰;设施齐备、尺度宽敞的主卫让洗浴成为享受。
整个设计始终以利落大手笔做背景铺陈,从木材饰面的不同灰度;从地面材料的色彩、形式、图案勾勒分区;从灯具的安排运用分区;从每一处收口线条处理,坚持统一性里去变化层次。在软装上、我们的原设计软装初稿以更利落干净统一的手法呈现;后期落地配合软装单位拉雅莲花以更人文、温暖的方式介入,也是各有喜好,终成“融”合!
全案设计:十二分田艾灵项目组I田艾灵
方案深化设计:十二分田艾灵项目组I刘佳佳
客服
消息
收藏
下载
最近






























































