查看完整案例


收藏

下载
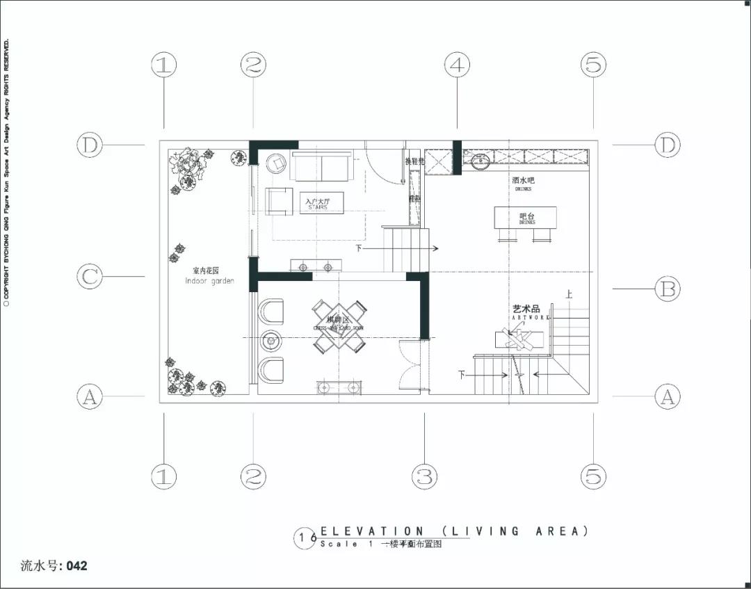
改造后首层平面图
改造负一层层平面图
新现浇楼板夹层图纸
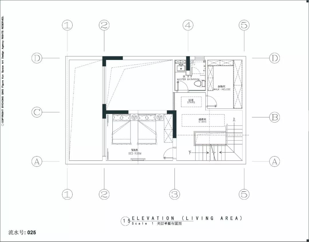
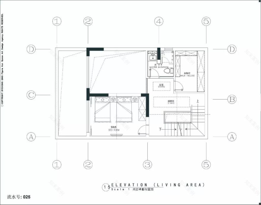
改造后夹层平面布局
大多数人追求的都市品质生活空间,有时并不是大张旗鼓的张扬,而是一种对尊重生活本身的选择
这次案例是一套387㎡的洋房户型,男女主人都是企业的管理者,给与了我们足够的时间去用心雕琢,根据屋主的气场喜好,我们把这套豪宅定义为:精致、优雅、时尚摩登。
所以这次我们以美学理论作为空间的传达的语言。使他的艺术气韵通过空间语言来不断的改变形态,化为多重的元素延伸于奢美的空间。让艺术融合、流通、渗透入生活的品质中。空间给人一种情绪的变化,利用色彩之间相互协调,配合灯光默契,营造出一种高贵典雅的用餐氛围。生活的自由,便可在这样的精神世界中得到追寻。
电视墙采用自带纹路的大理石,结合四周墙身简洁流畅线条装饰,和谐而不繁复,打破原有空间的沉闷感。此外,空间以沉稳的米色为主色调,金色点缀局部,格调高雅富有质感,同时也增添独特的空间层次感。搭配千鸟格后背的单椅,更具有时尚的气息。
从玄关而入,步入开敞的入户大厅,客厅和餐厅呈开放式设计,简约线条勾勒出场域的大气之感,富有质感的材料低调中透出精致与奢华。
主卧整体沿用经典美式的护墙色系,在搭配同色系不硬包,在家具的选择上,考虑到女主人喜欢在床上会看一些书籍的习惯,搭配了倚靠更加舒适的高靠背的床,床头柜搭配的金属,显得整个空间既稳重又不失时尚。
温和的色调与舒适的材质,散发着安宁恬静。这里不仅是生活的空间,更是精神的栖息地。家之所在,心之向往。自然与艺术结合空间实现了平衡,随之打开的光影轨迹在郁郁葱葱的绿植中款款而立,格外令人触动。
整个空间氛围墨绿色墙面为主调,搭配对比强烈的橙色,中间由纯净的白色过渡的窗帘,简化传统美式的空间布置,使之显得文艺又优雅。保留了现代人们所推崇的实用功能,以适应变化之势,通过现代极简的造型、色彩以及新颖的材料搭配,成为当下时尚设计的艺术符号。
干湿隔离的卫生间,在使用时不会出现拥挤的情况。搭配石材花样的纹理,显得整个空间集聚意式的简约风格,整体沿用素雅的色调,在浴室镜子的后面增加了灯光的作用,在使用时,整个光源从正面来显得更加舒适。整个大理石台面与墙壁更加整洁奢华。墙壁式马桶预留了插座为之后智能马桶以及充电做了准备,玻璃隔断阻隔了洗浴时的水汽,保证了其他区域足够清爽。
项目地点:重庆·渝北
项目名称:重庆·龙湖江与城·薇澜岸
设计方:BELLA VITA贝纳软装
设计团队:张亮、彭军、粟筱芳
项目面积:387㎡
项目完成时间:2019.09
客服
消息
收藏
下载
最近





























