查看完整案例


收藏

下载
古城里的新家
当 90 后亲自搞装修,四年的努力竟让房子成了一个“烂摊子”?
本次的主人公是一对来自古城开封的小夫妻,他们要改造的是「一幢近 300㎡的复式住宅,自带庭院,地上一层(126㎡),地下一层(150㎡)」。进展迟缓、推翻重来、洪水天灾这一道道坎儿,让原本爱意满满的新房,如今却只留下遍地狼藉......
改造前一层客厅
改造前一层主卧
改造前地下室
位于古城的新家,在过去的四年里经历了数十次的反复修改,最终被一场大雨毁于一旦。那么这一次的改造会为夫妻二人的婚房装修生涯画上完美的句号吗?
“暖男设计师”孙华锋第七次坐镇梦改,前来拯救这个“历经磨难”的房子。这一次,他以“能省则省,物尽其用”为最大考量,打造出工作生活兼顾的艺术住宅。面对委托人天马行空的改造想法,设计师是如何呈现的呢?
历经四载仍未完工的家
改造前
改造前的院子
住宅院子里有搭建一个阳光房,但是框架颜色没有做好统一,缺乏美观性。同时,委托人原本的设想是利用地面玻璃层蓄水养鱼,而原有的钢架结构并不稳固,甚至出现弯曲变形,存在严重的安全隐患。
设备间漏水口
经历大水的破坏,加上房子的隐蔽工程没有做到位,地下室的地面出现干裂,墙面长满霉斑,木质家具也受潮严重,前期装修基本报废。
“奇形怪状”的地下室吊顶
由于一层排水管道均设在地下室顶部,委托人利用吊顶对管道系统进行遮挡,造成了地下室顶部混乱。此外,原始房子动线混乱,存在很多脱离现实考虑的“奇葩”布局,让设计师孙华锋直呼“这是我从业 30 年来,觉得真正最奇葩的这么一个户型了!”
因为部分原始管道和房屋结构已经在四年前的装修中被委托人改动多次,设计师便前往同户型的房子进行了查看,发现原始地下室的采光通风条件都很好。
改造前夕,设计师再次与委托人沟通整理改造思路后,同团队一起就改造方案的风格、细节以及功能布局等问题进行了最终的调整和优化。
对症下药,用设计改变生活
改造 ING
地下室:能拆都拆,全面改造。“奇形怪状”的吊顶拆除后,设计师对地下室错综复杂的管道进行梳理,并检查密封性以及进行降噪处理。全面优化管道系统,兼顾功能性和美观性,有效增加吊顶空间。
针对委托人家“扬短避长”的装修设计,设计师决定利用动线关系,打造两个洄游动线,把整个地下室空间串起来。
首先围绕剪力墙把周围的过道全部打通,卫生间往后推,把原本放置浴缸的房间改做客房,以剪力墙为中心形成一个大的洄游空间;然后在西南角小房间的区域,调整楼梯和咖啡吧的位置,打开空间,形成一个小的洄游空间。
地下室一大一小两个洄游动线的设计,巧妙地把各个功能区串联起来,让整个空间开阔又具有互动性,而打开的墙体,不仅增加了采光,也让原本逼仄的地下室通风更为顺畅。
一楼:能省则省,微调+精修
相比地下室大刀阔斧的改造,设计师希望“一楼能省则省,尽量保留原有装饰”。遂将原有家具入库保存,再通过筛选、修复、搭配,对其进行二次利用,实现物尽其用。
改造地下室时,设计师利用阳光房的部分空间设置楼梯,上至一层的位置紧靠院落的入户门边,这让室内多了一个可利用的空间做客卧和收纳。
在一楼的布局上,设计师依然遵循能留尽留的原则,保持整体基调的情况下进行了局部微调,恢复了两个卫生间的原始功能。将主卧卫生间墙面向外推,扩大使用面积,实现女主人对浴缸的需求。
阳光房的改造方案让设计师陷入纠结:重建 or 翻新。本着省钱原则的设计师,最终没有进行大的改动。修正了原有的装修缺陷,将屋顶改为斜面,解决排水问题。
“生活+办公”法式艺术之家
改造后
地下空间焕然一新,呈现出委托人向往的浪漫氛围,搭配弧形、雕花等元素进行协调,让整个空间的设计形成统一。复古的法式风格与现代设计碰撞融合,打造贴合年轻化审美的空间,又满足了委托人“摄影工作室+居住”的改造需求。
沙发一角生机盎然,光从天窗漫下,为地下空间提供自然光源。绿色装饰挂画与绿植的点缀,营造出自然的亲近感。沙发靠背可任意摆放,满足不同场景需求。
客厅和会客餐厅之间以玻璃砖墙为界,墙面上下打光使得整个砖体晶莹剔透,绿植小景若隐若现。既发挥起半隔断的作用、梳理功能分区,又使空间不显拘束,增强互动性。
不同的色彩混搭,配合拱形门洞的设计,让吧台区域成为亮眼的存在。吧台瓷砖是对原有材料的二次利用,红色墙漆搭配胡桃木台面,呈现焦糖色的浓郁氛围。跳脱的绿色延伸出女主人的工作台,红与绿搭配烘托复古美感。
被大水泡烂的壁炉在设计师的手中重获新生,结合艺术性的家具搭配,释放出极致的视觉效果,成为淡雅中的一抹点缀。通往一层的楼梯同样选择玻璃砖作为装饰,拾阶而上感受光影的灵动。
地下室的客卧延续公共区域的整体风格,家具的选择贴合法式复古优雅。配套卫生间的墙砖使用的是委托人家剩下的复古小花砖,根据它的色彩纹样,新搭配鱼鳞状瓷砖上墙做裙边,传达出细节上的精致。
沙发弧面背景墙呼应地下室拱形设计,增强空间造型的契合度
楼梯位置的调整,让一楼完全成为委托人一家的居住空间,在保留原有装修的基础上,通过简单的吊顶以及墙面修葺,达到了完全不同的空间效果。
客卧上演着日式茶室的静谧与淡雅
主卧墙面做线光源设计,丰富空间层次
设计师恢复了卫生间全部功能的主卧,通过大量的柜体收纳以及隔音保温的阳光房,让这个空间兼具艺术性和功能性,素雅的色彩、温馨的装饰,也可以让男主人在经历了长途飞行后安然入梦。
预留出儿童房
设计师保留花园里的异型切割地砖,守护委托人夫妻俩的生活小浪漫。重新为花园布景,再利用原有的桌椅,打造休闲放松的户外烧烤区,或与家人同乐,或邀三五好友,共享惬意时光。
本次改造费用:
- 硬装(含人工):22 万
- 软装(含电器):13 万
- 景观绿植:3 万
总计花费:38 万
平面图
DESIGN PLAN
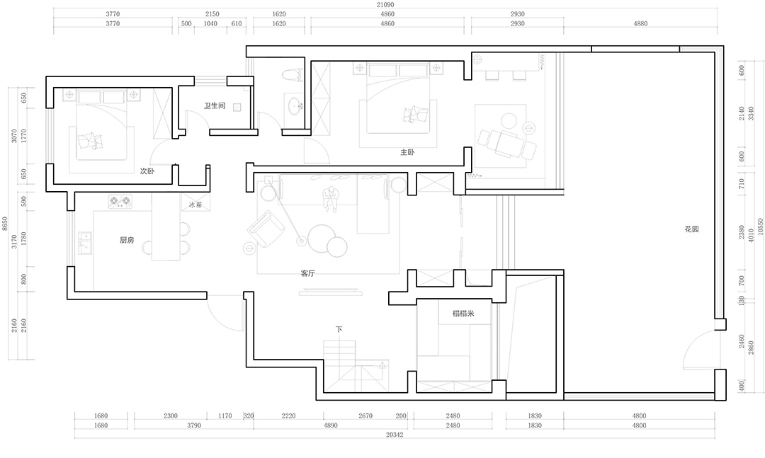
一层平面图
一层原始平面图
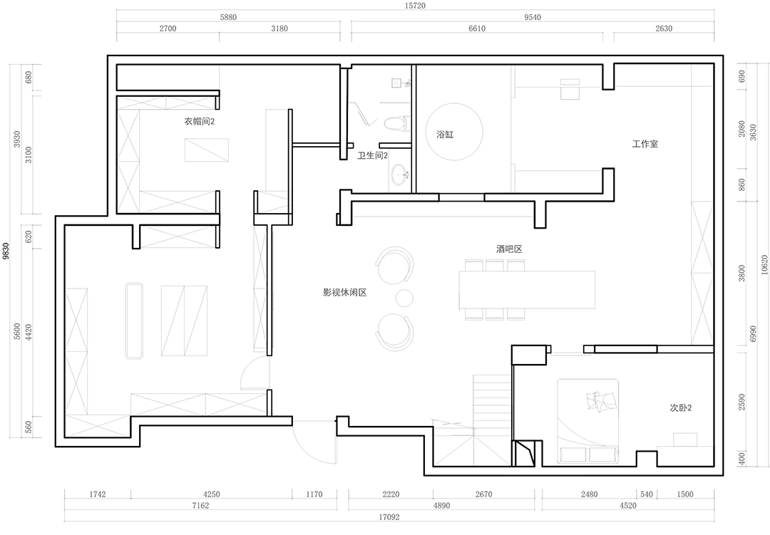
负一层平面图
负一层原始平面图
孙华锋
鼎合建筑装饰设计工程有限公司首席设计总监
中国建筑装饰协会设计分会副会长
2020 年获中国室内设计“十大年度人物”
2020 年获金堂奖十年“卓越人物奖”
2019 年获中国建筑学会室内设计分会三十周年“杰出室内建筑师”
2018 年获“中国设计年度人物大奖”
2018 年获“居然设计家杯”室内设计年度大奖
客服
消息
收藏
下载
最近











































































