查看完整案例


收藏

下载
当空间邂逅大千世界物象
唤起彼此间的对话交流
并诉诸艺术灵魂的力量
Change
顺势 / 思变
工业化装配式
是以建材、轻工等行业为依托
现场装配为基础,人才科技为手段
快速安装等全过程的规划、施工
制造等诸多环节联结为一个完整的系统
我们针对项目节点、工艺、材料、成本等
通过顺势思变,迈出实践的步伐
让精细化设计和艺术的沉淀相融合
Preface
序 / 引
成都这座充满艺术气质的城市,以天府文化为内涵,弘扬与创新的兼容并包,赋予了城市鲜明时代个性的特征。我们从现代与传承之间的关系中获寻新的灵感,结合工业化装配式的革新,打破边界的桎梏,用克制纯粹的设计语言,探寻无拘束的生活潜能。
Dialogue
艺术 / 对话
玄关长廊通过艺术装置的造型与肌理的粗矿,在空间的渲染下,显意味悠长。像故事开端引导者的姿态,向你发出邀约。
Artistic
Conception
雅致 / 艺境
茶室在选材的克制和设色的纯粹,传递着高层次的雅致风韵。
几许器物,或茶香韵味,缩影了无界生活的诗意序曲。
Purely
纯粹 / 漫话
环形吊灯成为客厅安静一隅的灵动点缀,配合流动的光影,柔和的白,辉映温暖的黄。在这一应俱全的空间里放慢节奏,惬意聆听午后阳光细诉的轻松时光。
Cool and Bright
清影 / 淡逸
当生活的次元不断延伸
居所亦承载更多面的期许
新绿与器形对比的重叠交织
在自然物态中体味诗韵节律
木格栅演绎着美学的严谨魅力
因舒展与交错间
随光线影影绰绰
Endow
静对 / 赋色
极致灰与焦糖色沙发的组合
让奢雅暖意的气息在空间中氤氲绽放
艺术吊灯以其独特结构映入视线内
释放精致,阅览纯粹
是空间与情感的对话链接
糅合了视觉调性
于静默中散发微妙的余韵
Peaceful
清雅 / 宁静
阳光透过窗帘洒下斜光斜影,灰色铺陈的卧室焕然一新,处处映照光影婆娑,温柔与惬意便沐在那光的瀑布里。褪去绚丽喧闹,回归清雅宁静。
Eternal
优雅 / 永恒
黑白灰层次变化过程中,融入永恒不朽的经典蓝,点亮了优雅自在的梦幻居所。
在蕴藏的细节之处,皆诠释着精致的生活质感与艺术意境。
日光成为空间活跃的主角,肆意的倾覆让万物踪影浮动。在虚与实之间散发着安静、透明、充满自然的力量,方寸间皆是旖旎般的优雅闲适。
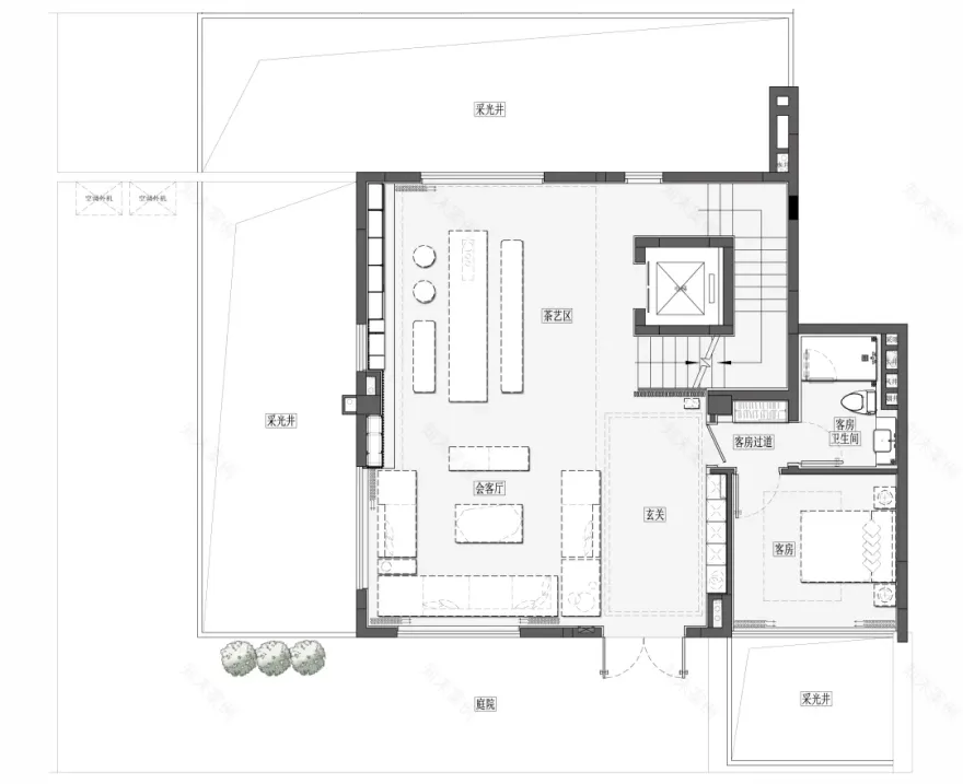
-PLAN-
平面布局
∆ 负一层平面图
∆ 一层平面图
∆ 二层平面图
-INFO-
项目信息
项目名称:成都麓府 A 户型下叠墅示范单位
项目地址:中国·成都
委托单位:成都新元素置业有限公司
项目面积:450㎡
竣工时间:2020.11
室内设计:JSC 集思创设计
主创设计:司徒曦、许伟峰
撰 文:符碧莹
摄 影:吴旺财
客服
消息
收藏
下载
最近






























