查看完整案例


收藏

下载
/
项目信息
项目地址:深圳·天威花园
项目面积:98㎡|三室两厅
设计风格:现代简约
项目设计:本居设计
软装实施:本居设计
写在前面
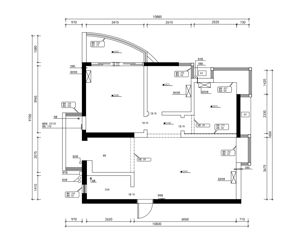
原始结构图
改造前现场照片
未改造之前,房子明显存在着一些不足:
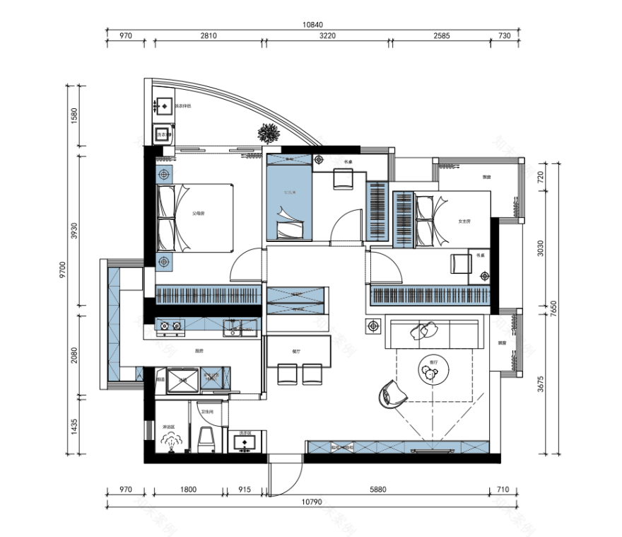
平面布置图
1. 将客厅原本格局对调,进门右侧整面电视柜结合鞋柜功能,收纳空间瞬间变大
6. 大阳台设计洗烘叠放+洗手盆一体,满足父母晾衣需求
清新自然的马卡龙色系,总是充满着神奇魔力,相信任何年龄阶段的女生,都足以被它温柔的色调着迷~那今天,小居就给大家带来这款充满魔力的马卡龙改造案例,一起来欣赏吧!
/
项目实景
- 客 厅
怎样的柜体设计实用方便还有多种功能兼顾呢?入户右手边将原本客厅的格局对调,设计整面到顶电视柜体,并结合鞋柜功能,一柜多用,收纳瞬间变大。加之蓝色系的马卡龙开放格点缀其中,使整体柜面看上去清爽、静谧又自然。
马卡龙黄和高级灰的主色调,沙发背景墙告别了大白墙的死板与寡淡,刷上马卡龙淡粉色,整个空间也更加富有情调。温馨的马卡龙黄色单椅,暖和的阳光色泽,带来的是延续不断的柔情。
- 餐 厅
餐厅的设计细节——设计师将原本推拉门的位置改成了半高窗与餐桌相连,并在靠墙位置设计了兼卡座功能的储物柜,这样一来,不仅合理规划了餐厨动线,还增加了餐厅区域的收纳,一举两得。
马卡龙色系的餐椅时刻都散发着浪漫,金属黄铜色的餐桌椅底脚又带来丝丝清爽,配以柔和的吊灯辉映着餐区,每每用餐其中,都仿佛是在参与一场马卡龙的甜蜜盛宴。
- 女 主 房
考虑到女主偏好,设计师将她的房间设在了带大飘窗的房间。蓝白粉的主色调,进门即收获满满梦幻之感。整面的粉白拼色衣柜,榻榻米靠飘窗而放,床头另设储物柜体,或许,美好的日子就是这样简简单单。
娇俏嫩粉色混合着清爽淡蓝色与金属质感装饰结合,好似城堡里的公主,头戴水晶皇冠,身穿华丽蓬蓬裙,洋溢着娇艳的笑靥迎面而来,释放出难以言表的色彩张力与唯美视感。
- 父 母 房
父母房空间宽畅,满足基本生活需求的同时不设过多家具,避免磕碰,推拉门连接阳台,采光充足。用色也十分讲究,空间内醇透的亮白色与蓝色及浓郁黑的辅佐补充,自然沉稳的同时也加深着空间的层次质感与通透性。
- 阳 台
空间不够用?洗衣机、烘干机无处安放?试试这样,在阳台设计一个多功能柜体,把洗衣机、烘干机全部塞下,还兼带储物功能,空间利用百分百!当然了,考虑到本案女主的父母偏爱阳光晾晒衣物,所以阳台上也设计了晾晒区域哦~
- 女 儿 房
- 厨 房
原本的厨房空间非常局促,设计师把冰箱和嵌入式家电设计成整体柜体,较大型的厨房电器即可罗列其中。进入厨房则是洗切炒一气呵成的操作台,十分方便。当然,精致的文艺花砖,更是让厨房多了另一番风味。
打通原本紧靠厨房的小阳台,设计成一长条置物柜,300mm的深度即可满足各种小家电的摆放。增大的储物空间,也让锅碗瓢盆不再无处安放!
- 卫 生 间
“马卡龙色”的天生梦幻画风总是让人倍感家庭的温馨。每每踏进家门,就仿佛回到了温暖的小港湾,让人身心得到彻底放松,温暖又治愈。
客服
消息
收藏
下载
最近




































