查看完整案例


收藏

下载
追求高品质的生活方式和生活里的每个细节,
生活的诗意源于美好的自然与设计,
丰富功能的同时尽可能的把空间做的更通透,
让业主保持对未来的憧憬与期待。
写在前面:
这一次我们准备讲述一个不一样的故事。
嗨!正在看文章的你,请允许我们向你介绍下自己。我们是合肥尊道国际设计,我们来自杭州,由杭州第六空间家居集团投资控股,以设计、创意、品质为精髓,专注为高端住宅、样板间、会所、办公餐饮等,提供高品质服务的整体家居设计机构。
其实,我们最初的想法很简单,通过设计为更多的人改善他们的生活空间和生活质量。所以,我们走到一起,我们充满了理想,并一直为此而努力,我们希望无论将来如何,都会有一批热爱生活的人,和我们一起憧憬未来!
每个人心中对家的畅想是不一样的,最终的愿景是想一个与自己心灵契合的地方,呈现出来是多么的安静和闲暇。
运用材料:岩板,木质墙板,皮革硬包,通体瓷砖等
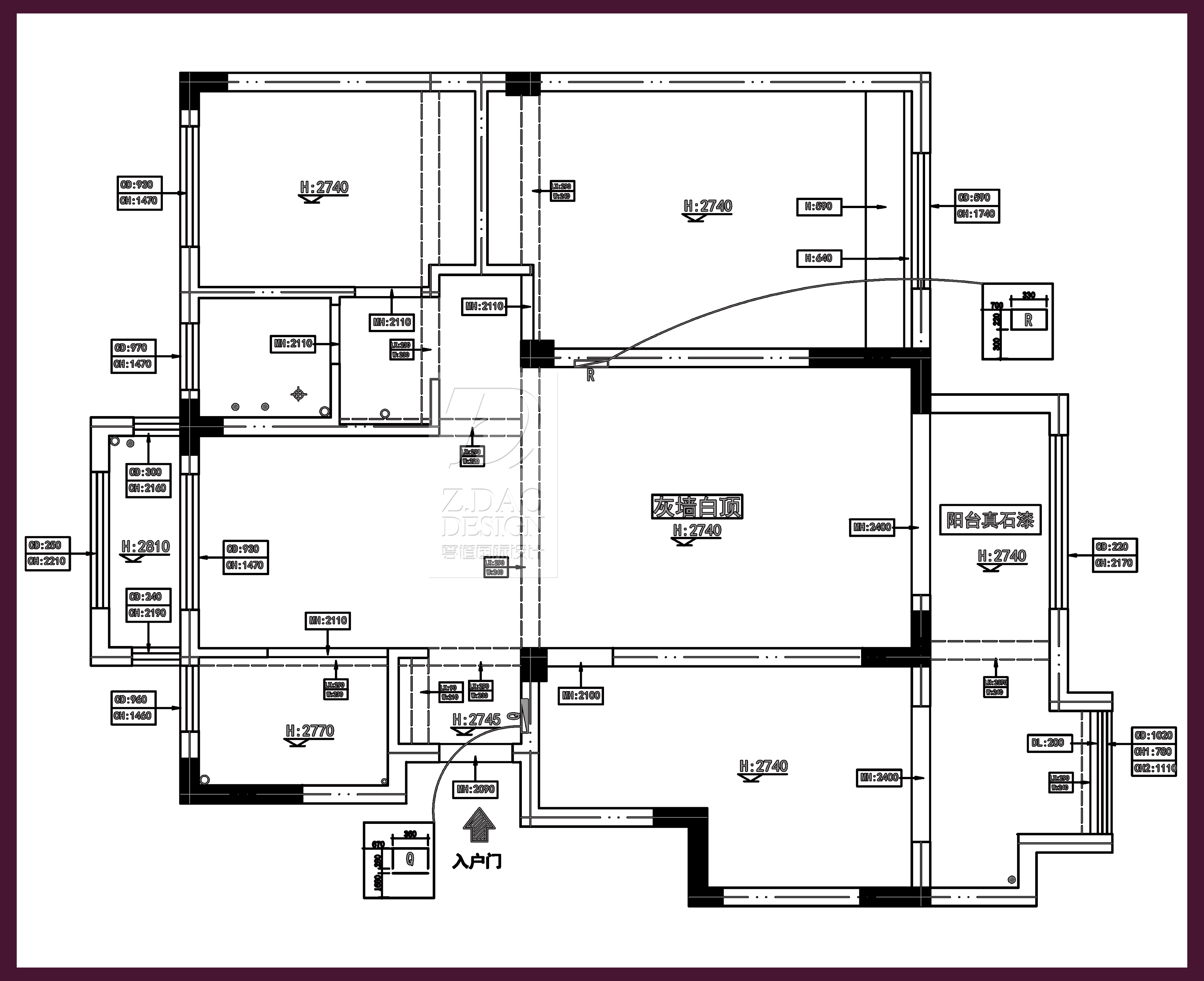
原始户型与平面布局
原始户型解析:
1、原始户型三室两厅一卫一厨;
2、餐厅面积不大;
3、厨房空间不理想。
平面方案优化解析:
1、把厨房门扩大,增加了厨房空间;
2、次卧的门外推,客厅的一字型电视柜,整体做了内嵌,避免了尖角;
3、餐厅中岛和餐桌一体化增加了收纳的同时,也保证了设计的美感;
4、阳台门拆除,使客厅和阳台空间相互扩大;
5、客卧改成衣帽间,客卧与主卧的墙体拆除,把原有的客卧门洞改成收纳柜,主卧做成了带有衣帽间的套房。
Rendering / 效果图
◾️Living Room | 客厅
电视背景:中间采用岩板设计,展示大面的色块,左边展示柜和定制一字型电视柜做成内嵌式,避免的了尖角的同时,也增加了设计美感。
电视柜下面做成镂空,预留氛围灯,点缀了整个空间。卧室门向外推,在拐角处做出圆弧角景,上面一盏掉线灯,下面一个暴力熊,景观就彰显出来。厨房门做成了4扇推拉门,让厨房的采光更加的充足,也保证了厨房和餐厅的融入。
◾️MasterBedroom | 主卧
床头背景:
使用大面积的墙布,色调以脏粉色为主,床头靠背以高靠背为重点,侧边的床头柜在吊线灯作为呼应,让卧室温馨,安逸。
客服
消息
收藏
下载
最近












