查看完整案例


收藏

下载
前 言
如果每个人都有一些鲜明个性标签的话,那么我眼中的牟小姐一定可以拥有拒绝刻板、不落俗、可盐可甜的标签。而房子的标签也是屋主的标签。
她在心愿单里畅想着自己在单身空间的生活场景,撸猫,看剧在这个空间做真实的自己,拥抱精致美好的自己同时也拥抱粗燥舒适的自己。
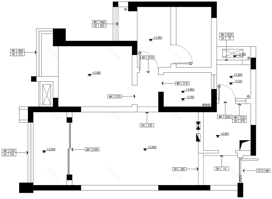
△ 原始户型图
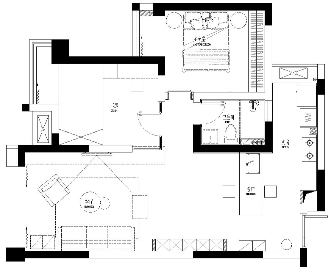
△ 平面布局图
项目摄影:星辰
项目面积:75 ㎡
施工时间:5个月
项目地址:成都,中央远大
全装花费(含电器):23 万
设计机构:致物设计
施工单位:造梦家施工工作室
屋主需求
- Tips 1 -只要美的风格都不排斥,不喜欢盲目跟风
- Tips 2 -客厅的软装材质尽量选择不容易被猫抓破的
- Tips 3 -不同空间的风格可以不同
改造重点
- Tips 1 -利用高饱和度的色彩和软装搭配出vintage 元素
- Tips 2 -拆除原始户型连接厨房与餐厅的非承重墙,将空间合理重组
▼餐 厅
我们去拍毕业照时,刚进门就得到“主子们”的好奇迎接原始户型的餐厨区非常狭窄阴暗,于是我们打通了非承重墙,解决原餐厨区的缺点我们把墨绿色(Olde hunter)作为客厅区的重点色,大胆的在入户时直接利用整面墙去上色,高饱和度的色彩也让留白的区域添彩,仿佛进入了《天使爱美丽》的复古美学世界这抹绿继续延续到餐厨区,温暖柔软的天鹅绒餐边椅,缓解墙体的硬朗感用浓妆淡抹总相宜来形容在合适不过了
▼客 厅
考虑到房屋面积和主子们的喜欢在房屋里自由探索的天性所以我们并没有特别去打造一个隔离和撸猫的区域。
也让牟小姐与喵子的关系可以更加亲密客餐厅中间区域,专门留出空间给屋主做KEEP的空间用一面镜柜让她可以在日常健身跳舞纠正动作的同时满足日常收纳功能封闭玻璃边柜作为小物件收纳的同时还避免猫咪奔跑时物件掉落。
▼多 功 能 房
雾霾蓝与中性光源就是惬意的存在
我们试图在每一个空间找到与屋主性格契合的平衡点
由于日常居住和使用整个空间的人只有牟小姐所以我们没有刻意的去打造一间传统次卧当家里偶而来人时榻榻米就可以作为休息区使用
在设计多功能房时,将转角的墙面全部设计成玻璃墙体一方面来的客人有对猫毛过敏的话就可以做一间隔离室二是当猫咪们独自在客厅玩耍时不会因为找不到主人而感到孤独焦虑
当她独自在次卧里工作或是学习时,也能观察到猫咪在外的一举一动
▼主 卧
茱萸粉VS黑色,在温柔与cool之间寻找身体的舒适感
灰色棉麻床品让需要真正休息放松的人们达到它最大的目的
▼卫 生 间
后话
她说,我会在这个空间听听欧美各种类型的音乐,周末撸着喵子,看美剧英剧,跳爵士拉丁,所以会有一点喜欢复古而精致的感觉。同时我热爱运动所以也喜欢个性有活力的生活方式。
我喜欢温馨优雅小巧精致,也喜欢个性现代干练酷酷的范儿,只要美的风格都不排斥,不喜欢盲目跟风,不喜欢小方格白砖。
我们无法给自己贴上阿拉丁神灯的标签,但我们期望能给这房子赋予它有灵魂气息的标签。所以我们结合屋主的习性与气息为她打造出这套Vintage 的小而温馨的house 。
客服
消息
收藏
下载
最近






























