查看完整案例


收藏

下载
设计时间:2016年10月-2017年5月建成时间:2018年7月面积:10442㎡
日上三竿风露消
——万科时代中心的设计纪录
第一次去现场是在冬天。北京的天空照例弥漫着雾霾的味道。
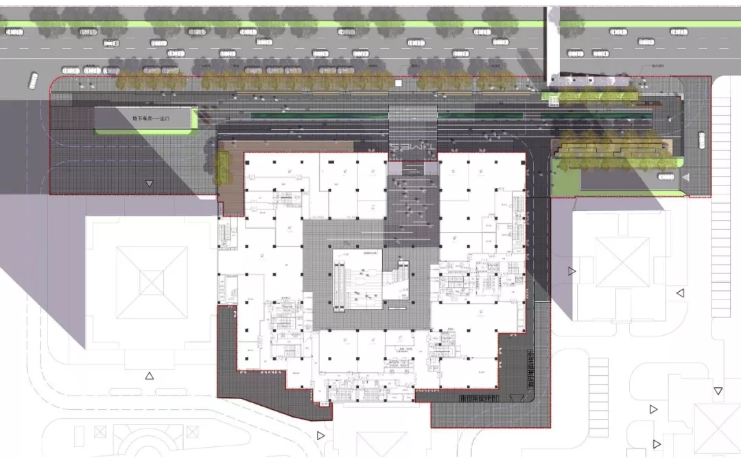
北京万科收购了原来的十里堡西单商城,历时两年,将其改造成为一个办公商业一体化的综合体。建筑师将自然引入建筑内部和屋顶,而作为未来主要城市公共空间的是建筑和街道之间19米x90米的消防登高场地。空旷的场地笼罩在南侧建筑巨大的阴影下面,黑乎乎的,阴冷阴冷,没有一丝活力。
做点什么好呢?
在百度街景上看,场地没那么糟糕。春天的时候阳光穿过街边行道树的树梢,逆光的光影斑斑驳驳洒在场地上;夏天的太阳会更多些,一扫冬季的阴霾;秋季,北京最好的季节,人们常说秋高气爽......这是一个可以反映季节变化的场地。
小的时候老家的房子朝西。记忆中奶奶经常问看看太阳到哪里了,然后决定是否该做饭——看太阳掌握时间进度曾经是人的本能。现在,在这样一块1800平方不到的场地上,是不是可以做一个关于阳光的时间刻度,可以让人看季节、读时间呢?
我们用5厘米宽的不锈钢条镶嵌在广场上,标识出阳光在不同季节的位置。
太阳上的核反应发出的辐射光射向地球,是我们的阳光。它产生夜晚和白昼;而太阳带电粒子流进入地球磁场,在南北两极附近的高空,形成美丽的极光。
时间和光阴,光,还可以更加极端的表现出来,比如使用在地球两极才会看到的极光,那么纵使在夜晚,仍然可以看到光阴的飞逝,如同旁边宽阔的大街上疾驰的光亮、飞奔的车灯。
浅浅的玻璃水景,LED灯光透过绿色的玻璃在傍晚成为这个小广场的活力源泉。
因为这个“时间”的概念,甲方决定将这个项目案名定为“TIMES”时代中心。
除了街边不到2000平米的广场,建筑改造后在屋顶和建筑中形成多个空中花园。他们将会成为未来商务办公人群独享的空间。设计特意留下了空隙,待企业入驻后再自发注入活力。
要想城市让生活更美好,首先城市需要更美好。城市建设粗制滥造的阶段很快就会过去了,作为设计师下一个更重要、更艰巨的任务是对现有城市设施的改造升级。在这个项目中,我们作为景观设计咨询方参与其中,体会到城市改造项目操作实施的不易。
项目建成后再回头看看,遗憾是免不了的,原先一些很好的想法最终没能实现。但事实上,甲方和建设方克服各种阻力和困难能将现有的部分设计执行出来,已经实属不易了。但愿随着这类城市更新改造项目越来越多,国家相关的政策法规也能细致、完善,纠纷越来越少,改造越来越好。
项目概况:
地址:北京市朝阳区万科时代中心
业主:北京万科
景观设计:上海张唐景观设计事务所
设计团队:张东、唐子颖、范炎杰、牛宇轩、周啸、孙川、胡一昊、彭阳、杨玉鹏、丛正
项目施工&水景照明咨询:沈阳福瑞园林装饰工程有限公司
水景咨询:素水设计
摄影:张海
客服
消息
收藏
下载
最近




































