查看完整案例


收藏

下载
▼
背 景
项目位于北京东城区西扬威胡同,院落格局方正,是一个标准四合院的倒座。屋主一家是本地居民,三代人在院子里生活了四十多年,尤其对院子中央的大枣树感情深厚,对设计师的改造寄予厚望。
↑ 鸟瞰夜景
↑ 院内夜景
▼
构 思
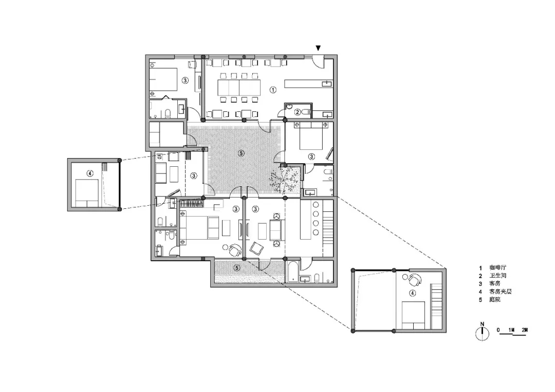
原有存在木结构遭腐蚀、强度破坏、空间压抑灰暗等明显不足,院内更是私搭乱建出各种房间,蚕食了本来开敞的院子。院子新的功能使命是一个小型精品民宿,设计者首先希望恢复四合院的精髓,创造一个豁然开朗的院子,把枣树、阳光以及使用者的各种活动装进去。两个L型房间的布局帮助设计师实现了这一空间,沿街的北房与东房是一个公共客厅连带两个客房,南房与西房被分成三间不同大小的客房。并以京剧特有的角色生旦净末丑来命名这5间不同性格的房间。
▼
材 料
为了营造内合院传统自然的氛围,设计者选用了竹钢作为外围护和立面的主要材料。竹钢是一种高性能竹基纤维复合材料,具有绿色环保,强度高,加工性好的特点,最重要是它既可以作为结构承重构件,同时也可以直接作为外饰面。颜色和质地都好过与后期加上去的装饰材料。内院立面大面积玻璃和竹木材质构成了充满现代主义的简洁构图,表达了设计者对传统的尊重,对自然的追求和对居住品质的追求。
↑ 立面材质
↑ 立面细节
↑ 公共客厅
▼
建 造
在改造过程中设计者保留了老屋结构性的屋架,增加了檩条,全屋更换了防水和屋面瓦。南房和西房在原有标高基础上下降了60cm,与东、北房标高一致,并保持屋脊高度不变,这样一来西、南房增加了室内净高,设计者利用增加的高度在两个客房做了夹层,增加了客房的趣味性。
↑ 客房
▼
项目价值
旧城区老房子里的内部改造总能对社会人群形成极大的吸引力。它的最大价值不仅在于住宿,而在于展示了一个新旧结合的可能性,为老城更新赐予了更高的信心,勾勒出了北京旧城更新的前景。
↑ 平面图
↑ 轴测图
↑ 门窗拆解图
设计单位:全壹建筑设计建筑师:尚懿、白云祥、刘云、齐莹 、王虓栩项目地点:西扬威胡同,北京项目时间:2016/10-2017/2项目类型:历史建筑改造改造面积:230㎡
摄 影:锐景摄影
客服
消息
收藏
下载
最近



















