知末
知末
创作上传
VIP
收藏下载
登录 | 注册有礼

墨西哥市南部灰褐色矩形住宅——开放式空间与自然融合

2019/09/03 10:04:19
查看完整案例
微信扫一扫
收藏
下载
设计师:DCPP Arquitectos
位置:墨西哥 墨西哥市
分类:住宅装修
内容:实景照片
材料介绍:石头 木材
墨西哥市南部灰褐色矩形住宅——开放式空间与自然融合-5
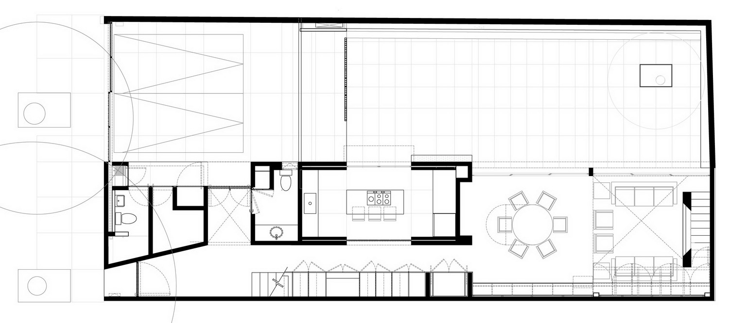
由DCPP Arquitectos设计的这栋灰褐色矩形住宅位于墨西哥墨西哥市南部。住宅巧妙地利用了正负空间的变换,与传统住宅的大小和尺寸都有很大差异。
墨西哥市南部灰褐色矩形住宅——开放式空间与自然融合-7
住宅整体上被设计成了灰褐色,除了卫生间和厨房,住宅的一侧被设计成了开放式的,与之对应的是一栋同样高度的强,将房屋与周围分隔开来。
墨西哥市南部灰褐色矩形住宅——开放式空间与自然融合-9
墨西哥市南部灰褐色矩形住宅——开放式空间与自然融合-10
墨西哥市南部灰褐色矩形住宅——开放式空间与自然融合-11
墨西哥市南部灰褐色矩形住宅——开放式空间与自然融合-12
墨西哥市南部灰褐色矩形住宅——开放式空间与自然融合-13
墨西哥市南部灰褐色矩形住宅——开放式空间与自然融合-14
墨西哥市南部灰褐色矩形住宅——开放式空间与自然融合-15
墨西哥市南部灰褐色矩形住宅——开放式空间与自然融合-16
墨西哥市南部灰褐色矩形住宅——开放式空间与自然融合-17
墨西哥市南部灰褐色矩形住宅——开放式空间与自然融合-18
墨西哥市南部灰褐色矩形住宅——开放式空间与自然融合-19
墨西哥市南部灰褐色矩形住宅——开放式空间与自然融合-20
墨西哥市南部灰褐色矩形住宅——开放式空间与自然融合-21
墨西哥市南部灰褐色矩形住宅——开放式空间与自然融合-22
墨西哥市南部灰褐色矩形住宅——开放式空间与自然融合-23
墨西哥市南部灰褐色矩形住宅——开放式空间与自然融合-24
南京喵熊网络科技有限公司 苏ICP备18050492号-4知末 © 2018—2020 . All photos and trademark graphics are copyrighted by their owners.增值电信业务经营许可证(ICP)苏B2-20201444苏公网安备 32011302321234号
客服
消息
收藏
下载
最近