知末
知末
创作上传
VIP
收藏下载
登录 | 注册有礼

伦敦老砖房蜕变现代住宅

2019/09/03 09:20:20
查看完整案例
微信扫一扫
收藏
下载
位置:英国 伦敦
竣工:2012年
分类:住宅装修
内容:实景照片
设计师:Bureau de Change Design Office
伦敦老砖房蜕变现代住宅-5
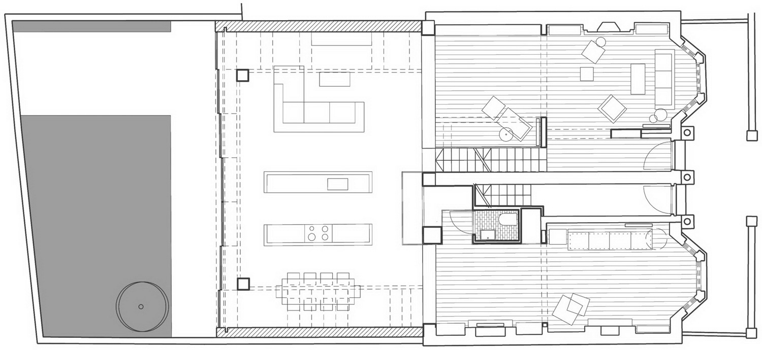
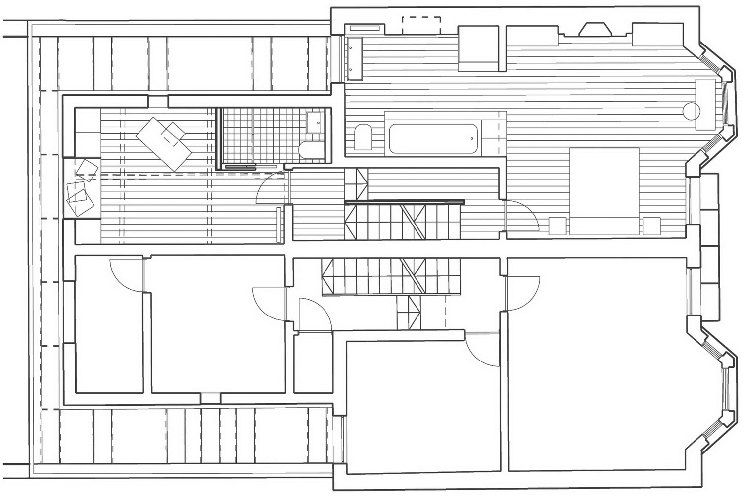
这栋现代住宅坐落在英国伦敦,由Bureau de Change Design Office于2012年改建而成。长达11米的滑动玻璃门将室内外分隔开。
伦敦老砖房蜕变现代住宅-7
钢结构厨房隐藏在两个超大的树脂面板后面。抛光树脂地板带来的清凉与大型再生砖墙带来的温暖结合在一起,白色的墙壁与黑色的木地板结合在一起。
伦敦老砖房蜕变现代住宅-9
伦敦老砖房蜕变现代住宅-10
伦敦老砖房蜕变现代住宅-11
伦敦老砖房蜕变现代住宅-12
伦敦老砖房蜕变现代住宅-13
伦敦老砖房蜕变现代住宅-14
伦敦老砖房蜕变现代住宅-15
伦敦老砖房蜕变现代住宅-16
伦敦老砖房蜕变现代住宅-17
伦敦老砖房蜕变现代住宅-18
伦敦老砖房蜕变现代住宅-19
伦敦老砖房蜕变现代住宅-20
伦敦老砖房蜕变现代住宅-21
伦敦老砖房蜕变现代住宅-22
南京喵熊网络科技有限公司 苏ICP备18050492号-4知末 © 2018—2020 . All photos and trademark graphics are copyrighted by their owners.增值电信业务经营许可证(ICP)苏B2-20201444苏公网安备 32011302321234号
客服
消息
收藏
下载
最近