查看完整案例


收藏

下载
Wren Residence by Chris Pardo Design: Elemental Architecture
位置:美国 蒙大纳
分类:住宅装修
内容:实景照片
材料介绍: 钢材 木材 玻璃
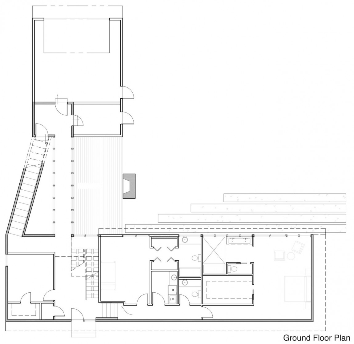
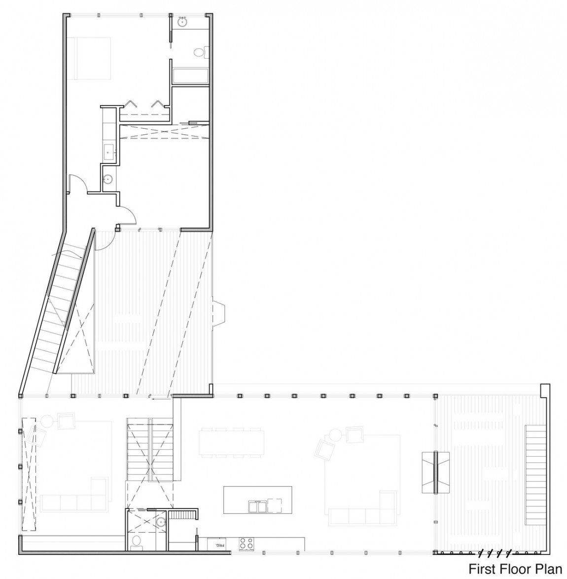
这座2300平方英尺的当代住宅坐落在美国蒙大纳米苏拉市中心,由来自西雅图的建筑事务所Chris Pardo Design: Elemental Architecture设计完成。
业主要求设计一座可持续的住宅,为此,设计师采用了两个太阳能电池板、太阳能热水系统、地热系统、LED照明系统和Optiwin高性能窗户等节能环保设备和系统。
住宅的外墙和甲板采用钢板、再生barnwood及混凝土建造,5个甲板的面积共达2300平方英尺,为欣赏蒙大纳四季多变的山中美景提供了条件。宽大的落地窗为室内提供了充足的采光,以尽可能减少对能源的浪费。
客服
消息
收藏
下载
最近


































