查看完整案例


收藏

下载
案 例 基 信 息
项目地址:重庆富洲新城
项目面积:52平方米(室内)
总 造 价 :13万
全案设计:王城炫
风格定位:北欧
施工负责:明海平
项目摄影:俊俊
春风一里,二里、三里,四里······十里
不如每天睁开眼就能看见你!
案 例 预 览
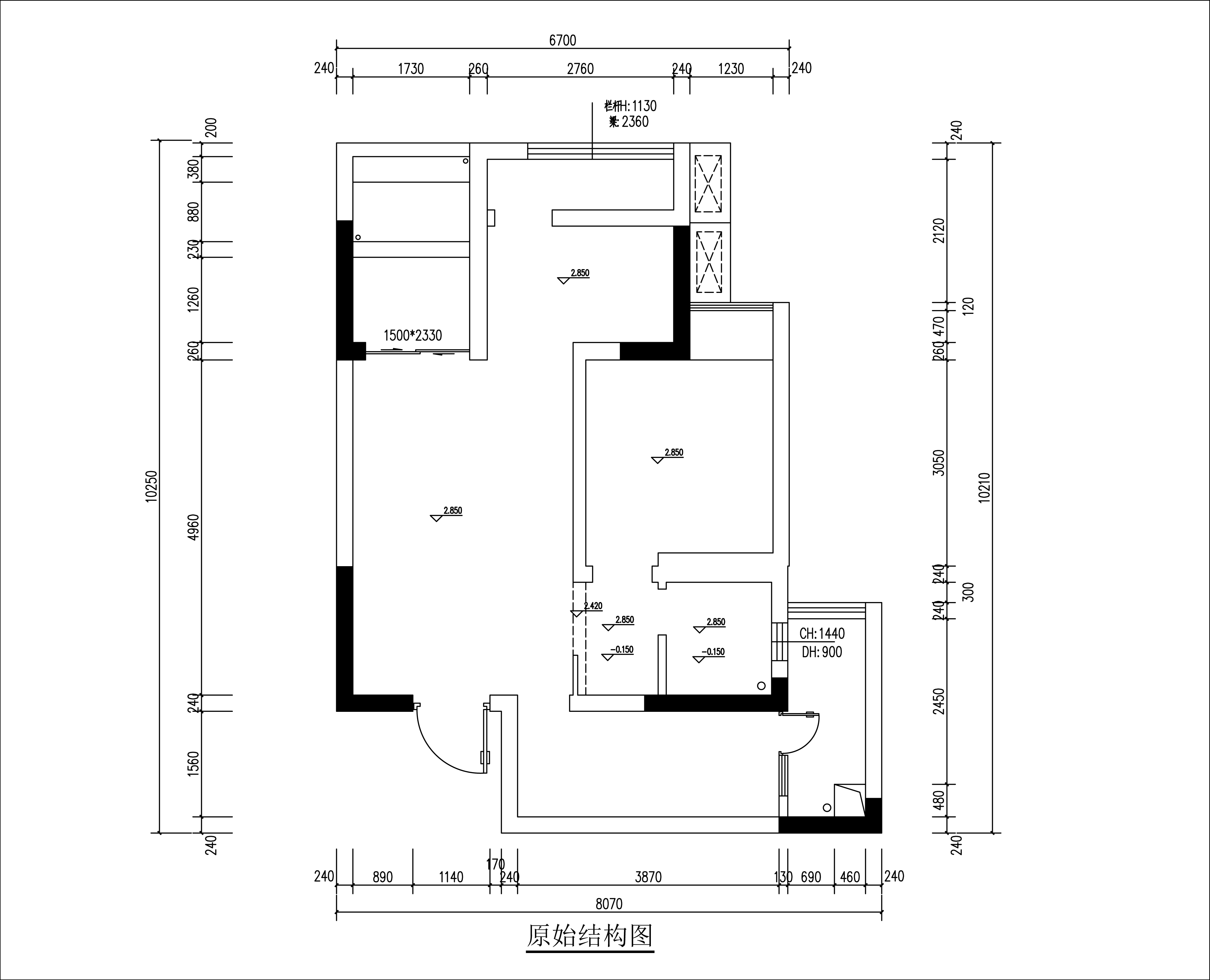
▼ 原始结构图
本案的业主是设计师的表姐,以至于还没接房就天天催图。一开始业主发来参照图片全是那种欧式、美式、甚至电视墙两边有棱镜的那种造型,应该称为kTV欧吧。让不怎么做简欧设计的设计师很头疼,最后在百般洗脑后,业主接受偏小清晰的风格。其实风格不那么重要,居住者住进家里无论是生活上还是精神上感觉舒适才是最重要的。
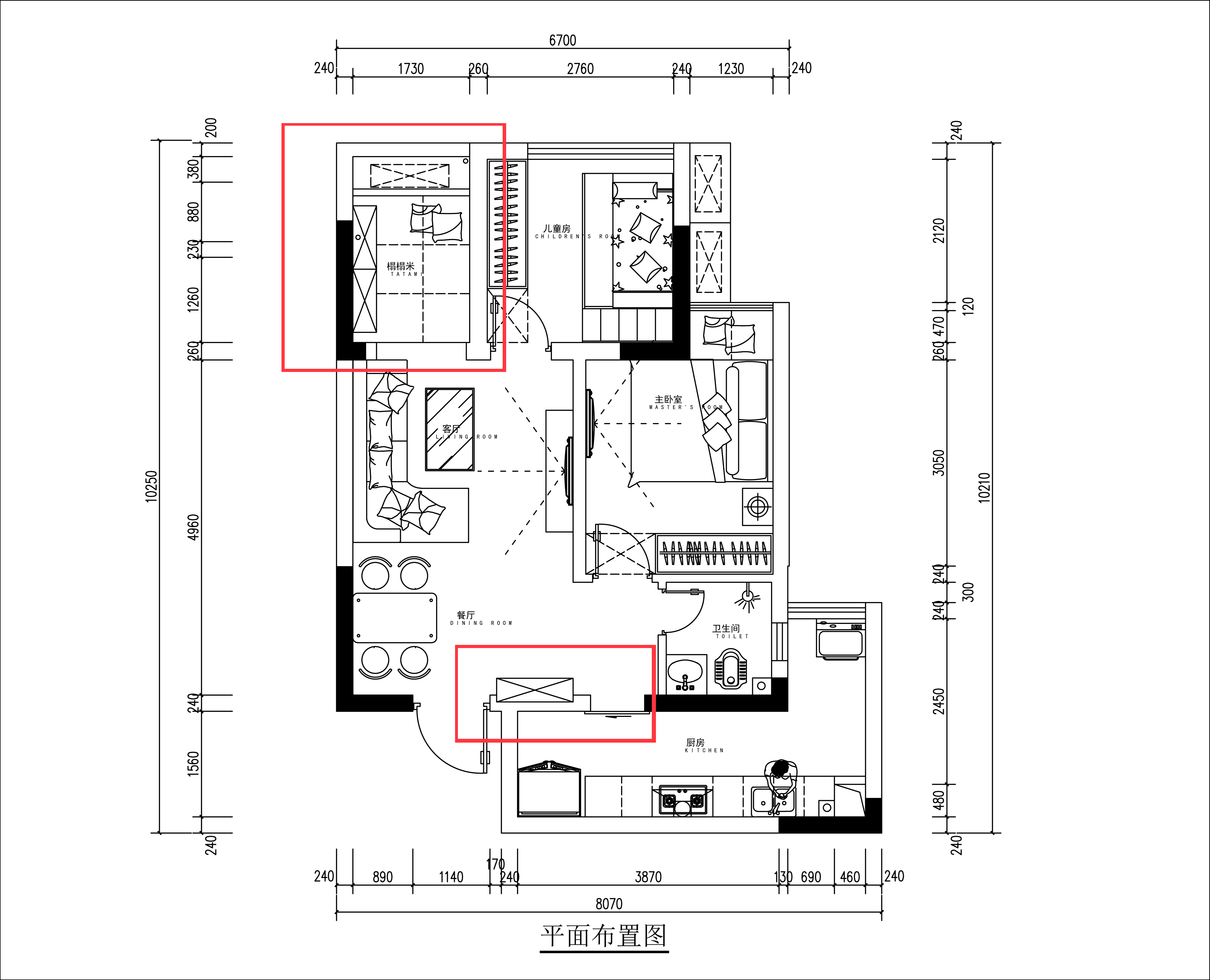
▼ 平面布置图
很典型的的重庆小户型。考虑到鞋柜收纳问题封掉进门右手厨房的门,增加客厅的面积,改变为鞋柜位置。厨房门改由卧室对面开门,一间主卧室,一间儿童房,原本阳台处可多现浇出2平方米左右的面积作为榻榻米,遗憾因为小区物业的原因没能实现。
案 例 预 览
由于空间比较小,尽可能考虑能满足日常生活需要后再进行装饰上的设计,麻雀虽小五脏俱全是小户型设计的基本要求。浅绿色的墙面让空间显得十分清爽,考虑到采光问题,色号比效果图浅了一个度。
白色文化砖,配色木色的电视柜,让单一的墙面显得更有质感。电视墙吊顶上方预留的投影仪的挂槽,施工时将视频线安装在沙发背景墙上,对于喜欢在家看电影的朋友来说很值得借鉴。
墙面的置物板是最简单的展示架,摆放旅行途中收集的小物件,特意放上装饰画遮挡背后的弱电箱。
L型沙发是业主强烈要求的,偶尔和几个闺蜜窝在沙发上看电影的感觉很棒。
整个空间都选用金色的吊灯 让整个搭配有一点小轻奢的感觉。平板的茶几在美感上有点欠缺,但是对于经常喜欢请朋友到家里做客的业主来说功能性很强大,可以升降起来当做饭桌使用。
餐厅虽然很小,氛围的营造却很重要。为了让空间不那么呆板,设计师用了两款不同的椅子来增添活泼的氛围。铺上桌布摆上鲜花让平淡的生活也能拥有小资的情调。餐厅墙上设计师原计划挂一个简单的方格网,无奈业主强烈要求需要这样的酒架,于是自行购买了这样对称的酒架·····
手工编织的挂毯背后是强电箱。藏与收显得很重要。
遗憾没有完成的榻榻米,作为阳台使用 。种几盆小花摆一张小椅,生活的一点“生气”。
改变布局后做的鞋柜满足基本的收纳需求。厨房延伸出来的地砖与客厅的木纹砖相结合,让空间更有延续性。
一字型的厨房,用上白色小方砖,视觉上有一种厨房面积被放大的效果,地面的六角砖更显随意。谷仓门比平开门更节省空间的尺寸。让这个小户型的厨布局更合理。
主卧浅灰色的墙面让卧室显得更安静。
灰色,金色,粉色应该是网红色吧。
业主希望能安装1.8m宽的床,但空间不要显得不透气,除了白色的床之外我们选择了一个造型简单的床头柜,成了卧室的点睛之笔。
儿童房大面积的落地窗和浅蓝色的墙面,让房间十分通透,家里无论是一个小孩还是两个小孩,小朋友都觉得上下床更有趣味性。
采光最好的地方,我们设计了一个简单的书桌,即使空间很小也尽可能小朋友学习需要。
每一套案例完成之后都有超出预想的效果和一些遗憾,在预算有限,客观阻力下,尽最大的努力完成设计是上的构想,是设计的初衷,这种不完美中的完美在最后应该可以忽略不计的。
客服
消息
收藏
下载
最近



























