查看完整案例


收藏

下载
50 Hudson Yards
办公塔楼
哈德逊河西岸
富有创新精神的
△曼哈顿
哈德逊广场
地达 10.5 公顷,
总投资超 250 亿美元,
Hudson Yards 总平面图
Related Companies
斯蒂芬·罗斯/瑞联集团董事长兼创始人
哈德逊广场 50 号
以智能高度先进的技术、业务连续性系统和全天候现场安全指挥中心以获得最高水平的安全性与灵活性。
# 建筑 #
78 层的哈德逊广场 50 号办公楼(50 Hudson Yards)覆盖了整个建设场地,塔楼底部的商铺、餐厅及街道层的交通系统将回馈当地居民,为他们提供便利。这栋建筑拥有美妙的景色和无限的灵活性。“fos ter partners 创始人兼执行董事长诺曼•福斯特说道。”
其不仅获得了 LEED 金级可持续设计的认证,
设计师为塔楼外立面精心挑选了子爵白石材点缀结构边缘,其高档细腻的纹理为建筑增添优雅质感。
透过 50 号大厦的大面积玻璃幕墙可将曼哈顿城市美景尽收眼底,人们可以俯瞰其西侧的哈德逊河或眺望东侧的帝国大厦。
塔楼的内部设计中采用了传统的跃层双电梯系统,这也是纽约商用办公建筑中的首个建成案例,同时人们可以直接穿越建筑到达南北两侧的活跃街道。
△建筑剖面图
日照充足的首层玻璃空间囊括了丰富的零售商店、高端精品店及各类公共空间,吸引大批游客和居民汇聚于此。
# 室内设计 #
Tony Ingrao 亲力打造,令人赞叹的内饰、纹理、色彩和富有表现力的设计融为一体。
# 发布会大堂
入口大堂的正对墙面挂设了两幅由美国著名抽象画家 Frank Stella 所作的大型艺术作品,活泼的色彩将人们从街道引入室内,并向他们展示了当地独有的创意文化产物。
墙面两张定制的动态艺术作品由涂漆钢、铝和玻璃纤维共同制成,宽敞高大的大堂平时也可开办各类研讨会、产品发布会或举办小型音乐会。
大堂右侧则通过一座弧形的特色楼梯与二层夹层相互连接,站在楼梯上可以欣赏到高大玻璃幕墙外的景色。
Frank
外围结构
无柱大开间
灵活划分办公空间。高大的落地玻璃窗让自然光线充分洒入办公空间,为员工提供舒适温暖的办公环境。
#顶
层办公
顶级公寓都有顶层复式一说,这栋写字楼却有着「顶层办公室」,专为商业高层设计的顶层空间拥有大气的会客中庭,沿墙分布的独立办公室保证了必要的归属感和隐私。
顶层办公室具备高耸的天花板和大片落地窗,站在窗边可全方位俯瞰曼哈顿的壮丽景色。
# 配套设施 #
50 Hudson Yards 的配套设施十分齐全,包含各类专用入口和代客泊车服务。入口的专门接待区服务台由闪闪发亮的金属面打造而成,暖黄色调营造一丝奢华尊贵的空间体验。
一侧的休息区墙面拥有整片独特的手工雕刻石灰饰面,底部的人造暖炉为室内持续输出丝丝暖意。
大楼内还设有一间独立的私人酒吧和休息间,其即可作为员工与客户间的社交场合,也可成为员工们工作之余放松身心的好去处。
这座办公塔楼是集低调纽约美学和精湛建造技术于一体的工程杰作,为未来城市的发展提供一种新的工作和生活方式。
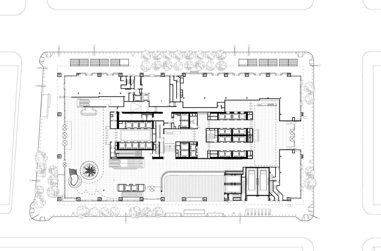
首层平面图
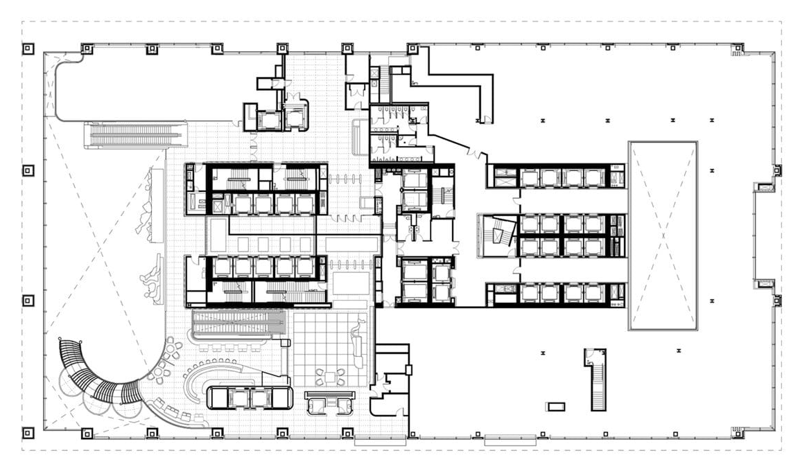
二层平面图
五层平面图
七层平面图▽
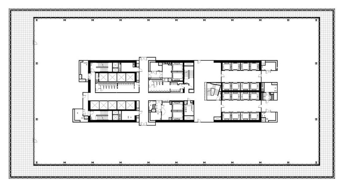
三十一层平面图
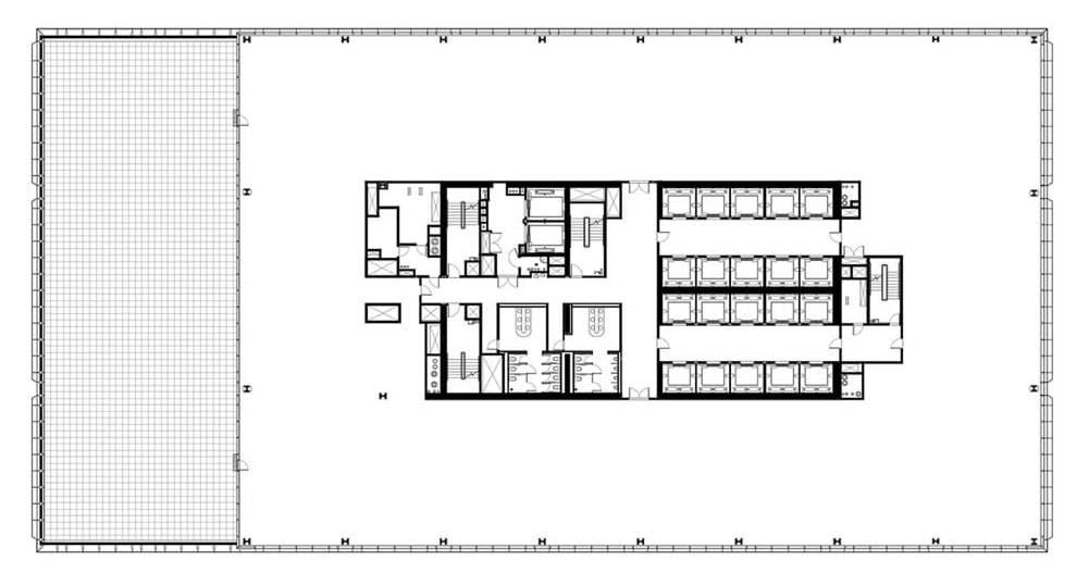
五十五层平面图
立面图
客服
消息
收藏
下载
最近










































