查看完整案例


收藏

下载
【项目名称】身悦艾灸生活馆太原店
【项目面积】300m2
【参与设计】袁世雄,王凯丽
【项目摄影】刘育麟
【主要材料】瓷砖,双饰面板,铝方通,乳胶漆,雅士白,铁艺,松木
【主创设计师】荣毅
身悦艾灸馆是将传统的以火烧艾草刺激穴位的方式用现代仪器加电通过红外导入艾热以达到人体生理机能防病治病目的的一家体验店。
初次到现场勘察,发现这一临街商铺的原始状态是拥有不错的层高,但空间分隔呆板并不适合未来的商业入住,所以设计之初我们便将空间梳理作为重点。
首先楼梯下卫生间门做了调整,一楼与地下室打通楼板加建了楼梯,利用二楼与楼梯平台间的高度增设了夹层,丰富了空间层次。原先二楼的隔墙我们以错落的多宝阁代替,南面最大的一间房嵌入了木质梁柱,以建筑苏结构的形式完成了空间区隔! 商家步入大厅简洁的背景墙以一圈光带环绕与一款仪器暗合。整面墙的陈列柜将产品位置凸显,顶面的铝格栅与之呼应并将目光引向二楼。
移步进入,映入眼帘的整面植物墙。她笑意盈盈迎接每一位到店的顾客,她深情款款的注视着店里每一位员工。踩着实木的踏板层层而上,进入二楼,错落的大面白色展示墙,与顶天立地的两道陈列柜相邻,而他们又共同环抱着新建的夹层,仰望与俯看,就这样凝神对望着彼此。
过道的墙面上的徽宗的名作吸引目光,房间以宁静的夏绿调色,而散座区以木结构与弧形坡顶搭建室内建筑空间与靠墙一面的卡座一张一弛,梁间纱帘相隔为来店顾客提供一处身心休息的宁静所在。
【项目名称】身悦艾灸生活馆运城店
【项目面积】261㎡
【主创设计师】荣毅
【参与设计】袁世雄,王凯丽
【项目摄影】刘育麟
【主要材料】瓷砖,双饰面板,铝方通,乳胶漆,雅士白,铁艺,松木。
运城店以开阔的大厅布局展开,吧台背景墙顶连接的灯幕既为引人注目,亦表达明亮待客之道。整面墙的展示柜以黑与原木做出序列营造出仪式感。半透半圆的墙隔出休闲体验区。拾阶而上,循着木扶手和扶手下的灯光进入二楼的房间。整个过道的房间以格栅状的木门与屏风相连,宛如传统与现代之间相隔对望,光线穿透,使人目及之处犹未有尽。
房间内的 暖咖色墙纸呼应木质的温润,白纱曼舞又添灵动之美。再往前行行之三楼,云灯,枯枝字画以及墙壁点满月,视图以月影下的宁静之美,来丰富整个楼梯间。三楼过道的落地灯诉说着古朋自远方来的喜悦之情。推门而入,眼前的以榻一灯,窗前的一方地台一圈光带,都希望为客人放松和宁静营造一份质朴的材料,柔和的光照,对于空间的氛围与商业气氛的和谐相处的探索,我们从未停止!
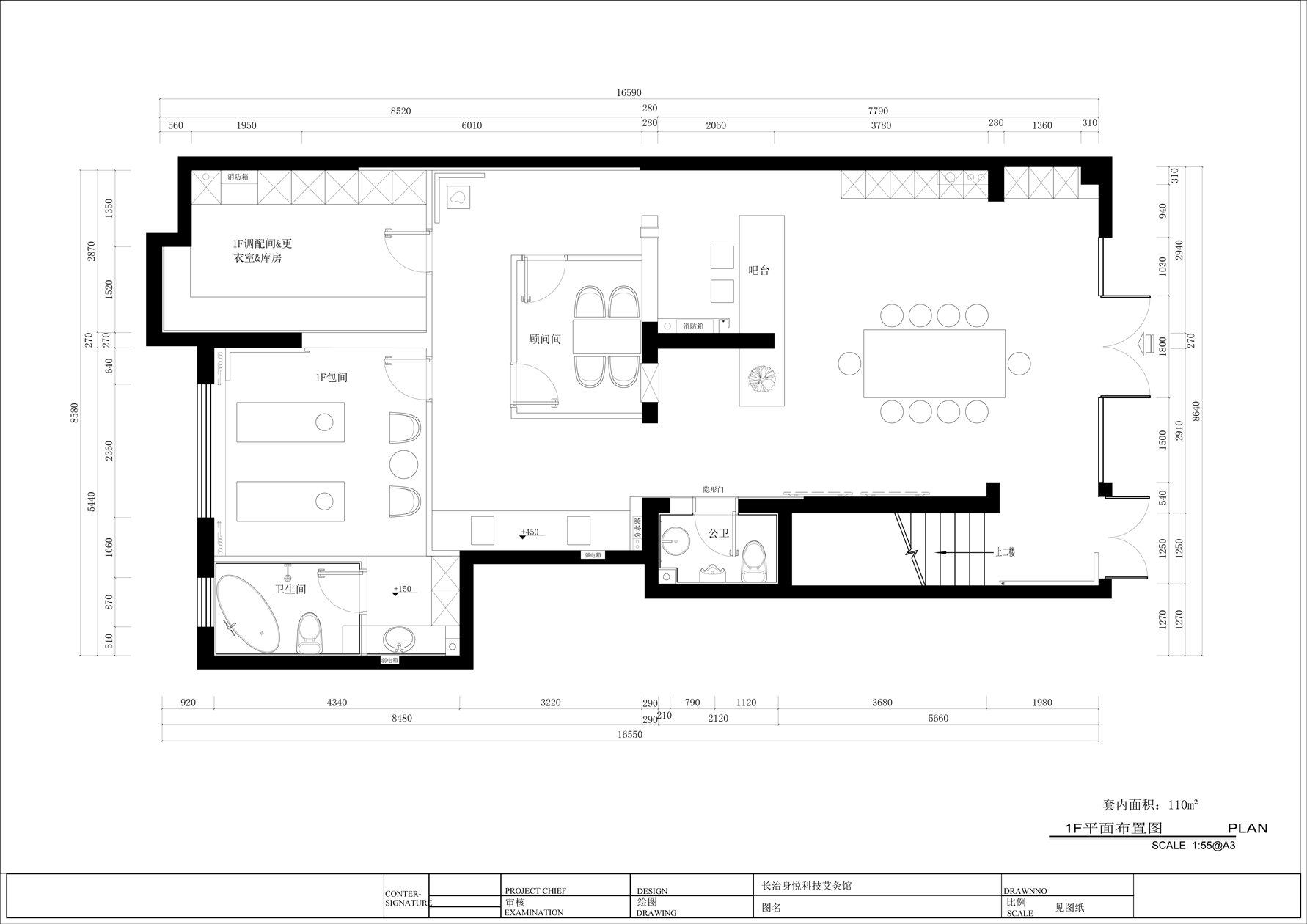
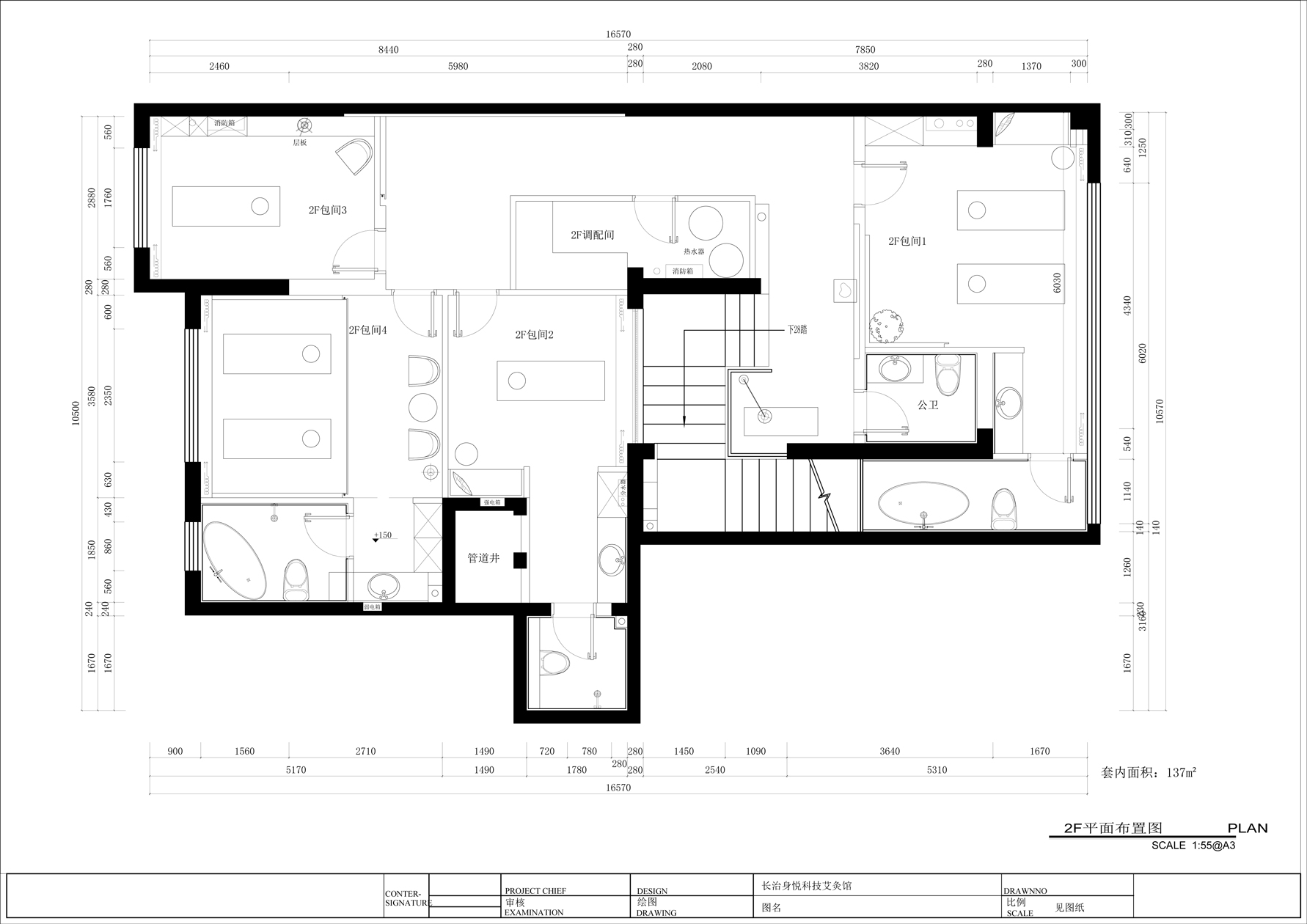
【项目名称】身悦艾灸生活馆长治店
【项目面积】247㎡
【主创设计师】荣毅
【参与设计】袁世雄,王凯丽
【项目摄影】刘育麟
【主要材料】瓷砖,双饰面板,铝方通,乳胶漆,雅士白,铁艺,松木。
长治店初到现场即遇到二楼楼梯及承重墙占据一楼空间主位的尴尬。所以在设计之初便着手考虑如何将楼梯斜面与承重墙消隐。于是将大厅界面分为两个层次楼梯处降低高度将斜面隐藏,另外将吧台贯穿悬挑与承重墙上,形成横向与竖向的平衡,使之浑然一体。 形象墙与其背后的空间因为墙面镂透的处理而让视线连贯,同时又让远端屏风下的光线温暖而吸引。其余部分的光都是有的放矢,或烘托出空间高出的尺度,或点亮桌上的展品。
移步二楼,过道的一组七连屏的字画让人驻足,小的插花是一点自然地趣味、观赏。过道尽头的毛石与插花希望给人们一个预设,放松身心进入房间体验艾灸的温阳。南面的房间因外立面的冲孔铝板,当阳光洒入的时候形成一幅光与影的画面,引人遐思,其余房间以壁纸和木饰面来打造一个舒缓温润的格调,为顾客提供一个修养身心的所在。
更多实景推荐:
当诗意照进现实,工作便有了情趣 | 办公空间
桃花帘外春意暖, 桃花帘内晨妆懒
曲水流思 灰白交融 | 卓越会所百晟花园
客服
消息
收藏
下载
最近











































