查看完整案例


收藏

下载
项目名称|Project Name:《 魔法曲线 》
项目地址|Location:上海 · 松江区
面 积| area:165㎡
设计机构|Design Agency:简狄设计事务所
前言
# PREAMBLE #
本案坐标上海松江区,是一套老公寓房的顶楼普通跃层户型,上下两层加一个小阁楼,建筑面积165平。原始户型梁体和封闭空间较多,入户后朝北一侧三个房间几乎全部封闭,导致采光不佳,剩下朝南的空间要作为客餐厅,还要考虑楼梯的位置……如果按照常规布局,动线和空间感都不会理想。
屋主的需求:三口之家,生活简单,喜欢现代风格浅色系的调子,希望尽可能把空间打开,保留挑空的感觉,最大限度改善和提升居住需求。通过对原始结构的深入了解,我们将别墅设计的手法引入本案,以大量弧形元素的运用化解原结构斜墙、承重墙凸出较多等问题。整体以奶油色的乳胶漆为主调,通过灯光的烘托表现温暖、干净、简洁的设计风格。
案例详解# CASE EXPLANATION #
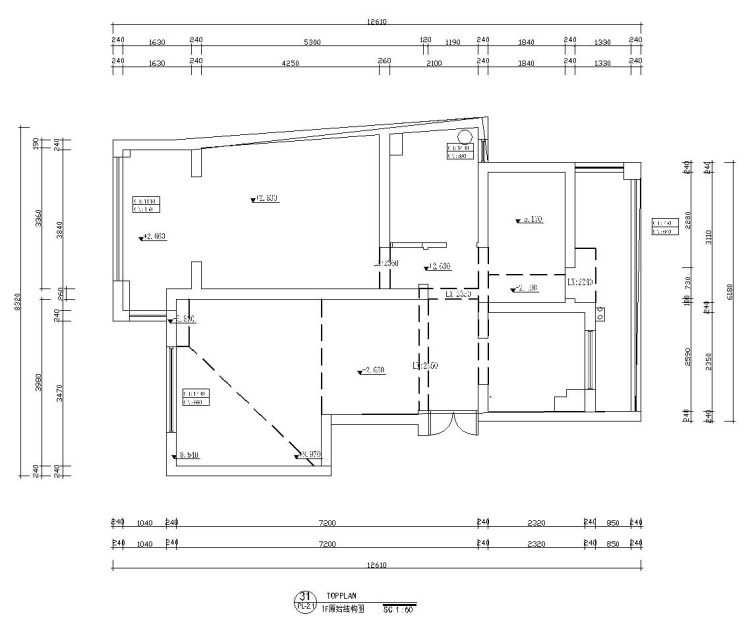
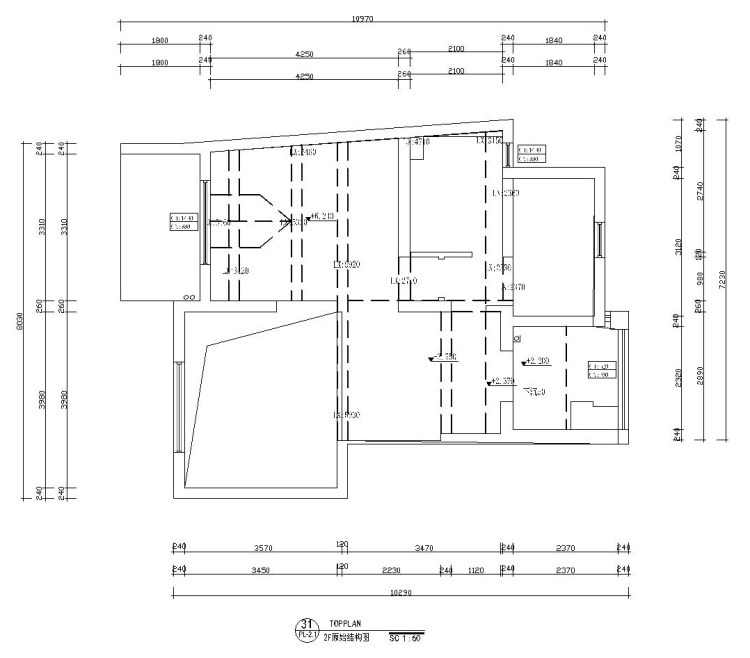
户型图
原始户型图2层复式+一个小阁楼,1层比2层多了朝北的阳台,阁楼面积大约为2层的一半,所以1到3层的面积是至下而上呈递减。朝西一侧有一整面的斜墙需要处理。原结构梁体较多,一定程度限制了楼梯的位置,且空间被切割得比较零碎,影响了整体空间的通透感。
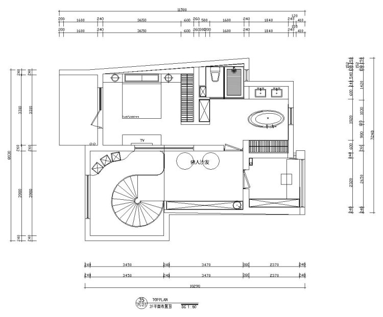
平面布局图1层集合了客餐厅、中西厨和公卫等功能,是我们重点改造的区域。拆除掉多余的墙体仅仅是最基础的第一步。楼梯的造型、上下楼层之间的关系、沙发背景墙和一段突出较多的承重墙体……这些原本生硬的部分要衔接得优美自然,又能放大整体空间,还需考虑人在空间里的舒适度和动线是否流畅,绝非易事。经过对原始结构的深入分析,我们引入“曲线”的设计思路,将旋转楼梯位置定在挑空区,上下两层的弧形楼梯成为全屋的核心与亮点,不能拆除的承重墙体也按照楼梯的弧度处理为弧面,客厅沙发后的斜墙同样设计为弧形,巧妙得解决了斜墙的问题,再配合一组弧形沙发,很好地呼应了弧形楼梯,也让客厅更具有围合感。朝北一侧的阳台纳入室内,面积扩充了不少,我们规划了半开放式的中西厨,光线也能更多引入室内。2层为主人套间,外加一间小书房,还利用宽敞的过道设计了起居区。3层是儿童房,配备了学习区和独立的卫生间。整套设计充分满足了屋主的功能需求。
玄关
入户玄关打破固有公寓房的常规设计,推远后的玄关拉升了空间的尺度,有一种大平层或者别墅的入户既视感。
玄关背景为弧形墙面造型,通往客厅的墙面内嵌了壁炉,很好地烘托了温暖的氛围
跟随一组超长的收纳柜,可进入到客餐厅空间,露出一半的弧形楼梯和弧形墙体非常具有视觉冲击力
客厅
客厅背景设计为弧形,很好地规避了斜墙的存在。弧形的收纳展示柜、圆形的吊顶、弧形沙发以及弧形的电视背景墙……这些流畅的弧形元素在自然光的抚慰下,显得异常温柔而和谐。
利用一段承重结构我们设计了这面电视背景墙,这里的难点是弧度的计算如何保证两面的功能和美感,如何与吊顶衔接,还要契合楼梯的弧度。将图纸里的造型放样到实际的空间中,还需要反复修正,差之毫厘都可能影响最终的还原。
客厅和中西厨区域互为连通,空间与空间的贯通也让动线更灵活,由此通道直达厨房更为便捷,并且通道里还隐藏了公共卫生间。
客厅的落地窗前营造出偏厅的氛围感,在这里可享受音乐与咖啡的香醇,或者阅读一本好书……美好而惬意的周末时光就这样被温柔以待。
和简单的loft设计不同,我们采用了别墅的设计手法,让楼梯在整个挑空区域盘旋而上,高挑的层高和弧形楼梯相得益彰,落地窗投射的阳光将楼梯照亮,让上下楼梯成为一种享受。
楼梯下的落地窗前,阳光滤过纱帘,一把经典的Terminal单椅凹出了高级感。
弧形的墙面凹出三个拱形壁龛,一个雕塑、一盆绿植……就能营造出不一样的家居情境,简单的美总是耐人寻味、百看不厌。
厨房
正对玄关右手一侧即是中西厨区域。功能的不同并不需要从结构上去隔断两个空间,中西厨之间我们只是分割了一段,另外一段用艺术玻璃移门来阻隔油烟,大空间上依然是连通。
北阳台纳入室内空间后,中西厨的面积得到较大扩充,除了功能性全部满足之外,采光和空间感完全可以和别墅相提并论。
西厨的橱柜全部采用烤漆面板,内嵌双门冰箱。岛台则是烤漆门板+岩板台面的组合,统一的暖白色调,细腻温润而有质感。
中厨同样为暖白色调,搭配白色柔光墙砖,和西厨连通成为一个大空间,具有非常统一的整体感。
餐厅
客餐厅一体化可最大限度增加空间利用率,6人位的岩板餐桌可供6-7人用餐,奶白的色调的餐桌椅很好的融入在大空间里。
卧室
卧室的设计看似简单,但一样藏着很多细节:床头一侧的吊顶和整面背景墙统一设计为圆弧形,包括半高的床背及床头柜也是按墙面定制为两头圆弧的造型,床背还内嵌反光灯槽,增加氛围灯光。
卫生间
主卫为干湿分离+独立浴缸的设计,同样延续了暖白的主基调。马桶、龙头、毛巾架全部采用预埋式,充满高级而简洁的现代感。
楼梯
优美的鹦鹉螺旋转楼梯,每层踏步下内嵌灯带,暖黄色的光晕将楼梯照亮,美若盛开的花朵。
楼梯和众多弧形元素展现出一种结构之美,让一套普普通通的老公寓房散发出新的生命和魅力。
书房
2层的过道比较宽敞,我们将这块空间赋予了起居室的功能,在这里可以观影、游戏,也不会影响到卧室内休息的家人。
和主卧一墙之隔的小房间设计了一间书房,吊柜+悬浮桌面的形式,既解决了收纳又不挤压空间。
客服
消息
收藏
下载
最近































































