查看完整案例


收藏

下载
▲
更多精品,点击
关注
“
搜建筑
”
Bambu大厦是GL联营公司的总部,它的设计理念是将 "空间、设计师、期望 "结合在一起,是一个设计师期望的空间,在其他建筑之间的小场地内,这些建筑紧凑地排列在首尔最繁华的江南区三成洞中间。
The Bambu Tower, which is the headquarters of GL associates begins with a concept that combines ‘Space, Designer, Desired’, a space desired by designers’, within the small site between the other buildings that are compactly arranged in the middle of Samseong-dong, Gangnam-gu, the most urban place in Seoul.
目前,江南区有无数大大小小的办公室和联合办公空间。我们的目标是通过将其与这些建筑物区分开来,创建一个可以对用户产生良好影响的建筑物。着眼于聚集在这里的各种人的场所性,我们深入思考通过“偏好”这个关键词来形成一个空间。Bamboo Tower 是这些想法的结果,是一个共享办公室,WorkSpace、居住者办公室和 Bamboo Collection 以及各种便利和文化设施并存。
At present, there are countless large and small offices and co-working spaces in Gangnam-gu. We aimed to create a building that can exert a good influence on users by differentiating it from these buildings. Focusing on the placeness of various people gathering here, we thought deeply about forming a space by deriving the keyword ‘preference’. Bamboo Tower is a result of these thoughts and is a shared office where the WorkSpace, the occupant’s office, and Bamboo Collection, various convenience and cultural facilities, coexist.
每层提供的空间都是灵活的空间,考虑了用户的各种工作方式和生活方式。协作空间是面向个人和企业的开放式办公空间,也是汇聚各种生活方式的文化艺术空间,是人们在自由共享信息、技术的同时共享办公室、共同工作的协作交流空间、想法等。包括一个垂直延伸的研讨会空间,一个可以根据需要改变的多用途空间,一个有助于通风和自然光的休息空间,是餐厅和协作空间之间的传递空间。
The spaces provided on each floor are flexible spaces that have considered the various work styles and lifestyles of the users. The collaborative space, which is an open-type office for individuals and companies as well as a space for culture and art where various lifestyles gather, is a space of collaboration and exchange where people share the office and work together while freely sharing information, technology, ideas, etc. A vertically extended seminar space, a multipurpose space that can change according to the needs, and a resting space that helps ventilation and natural light and is a transfer space between the restaurant and collaborative space are included.
每层楼都包含不同的功能,通过在多个特定楼层提供不同的工作方式和生活方式可以共享的差异化空间,呈现出竹塔独特的特殊共享办公室。这也体现在建筑的设计中,让每个空间的特征都能在外观上看到。立面以一种类似于城市中心内的肿块的方式被有节奏地环绕,随着室内空间的光线向外发射而发光。它像楼梯一样投射在云层之上。中间是一片小小的竹林。
Each floor contains various programs, and by providing a differentiated space where the various work styles and lifestyles can be shared on a number of specific floors, Bamboo Tower’s unique special shared office is presented. This was also expressed in the building’s design to allow the characteristics of each space to be seen on the exterior. The elevation, which is surrounded in a way that resembles a lump within the city center being rhythmically banded, shines as the light of the interior space is emitted to the outside. It projects the space like a staircase that ascends above the clouds. In the middle, a small bamboo forest can be found.
至于每一层的节目,地下二层的Bamboo Studio是一个创意空间,每个用户都可以在这里创作自己的内容,也可以举办工作坊或研讨会等创意活动。地下一层的竹剧场和画廊是为各种文化活动和社区活动优化的空间,例如使用竹空间观看各种外部艺术家和新兴艺术家的作品、放映视频和举办讲座。
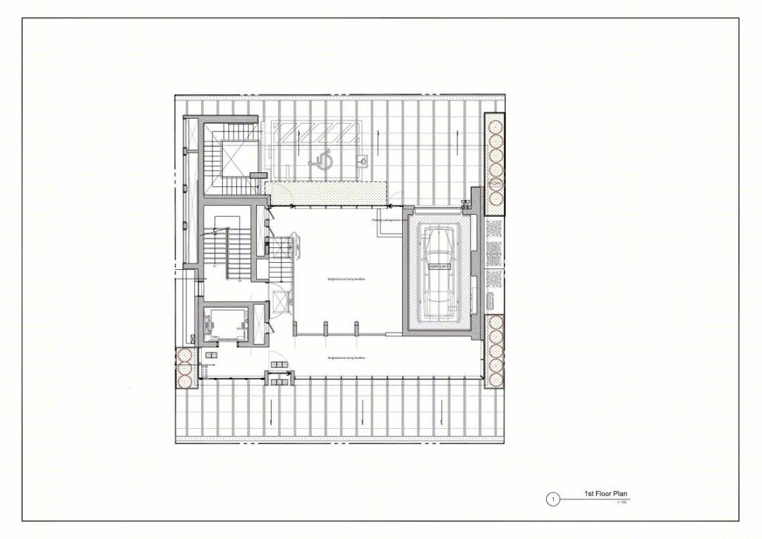
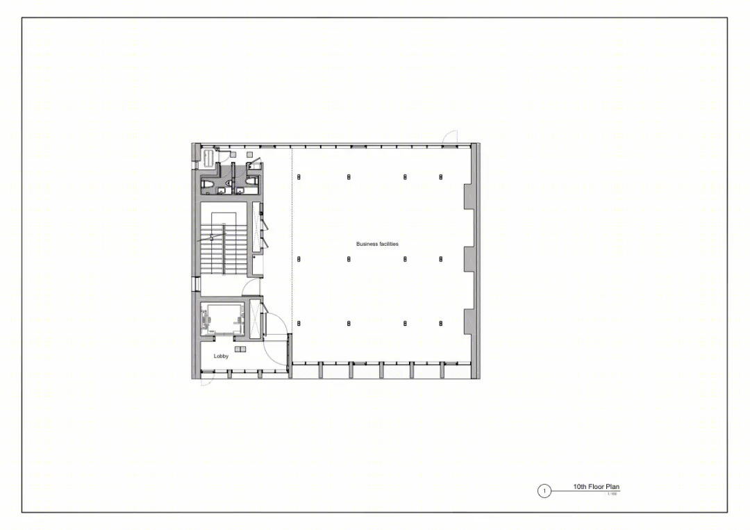
一楼的咖啡厅是竹塔营造的独特氛围的空间,可以与其他咖啡厅区分开来,是一个为用户提供便利和休息的放松空间。二至十二层为一般办公空间,为各类企业和个人提供办公场所。13 层的 Bamboo Space 由会议室和开放式办公桌组成,开放式办公桌在以商务为中心的三成洞为需要办公地址的个人和企业提供了一个虚拟办公室。最后,14至16层被规划为GL的办公楼。
As for the programs on each floor, the Bamboo Studio on the second basement floor is a creative space where each user can create their own content or creative activities such as workshops or seminars can be held. The Bamboo Theater and Gallery on the first basement floor are spaces optimized for various cultural activities and community activities such as viewing the works of various outside artists and rising artists using Bamboo Space, screening videos, and holding lectures. The cafe on the first floor is a space with a unique atmosphere created by Bamboo Tower that can differentiate itself from other cafes, and it is a space of relaxation that provides users with convenience and a place to rest. The second to twelfth floors are general office spaces that provide office spaces for various businesses and individuals. The Bamboo Space on the 13th floor consists of meeting rooms and open desks, and the open desks provide a virtual office in the business-centered Samseong-dong for individuals and businesses that need business addresses. Lastly, the 14th to 16th floors were planned as the office building of GL.
平面图
立面图
剖面图
建筑师:UnSangDong Architects
地点:韩国
面积:2787平方米
年份:2018
▼ 更多精品·
点击关注
本资料声明:
1.本文为建筑设计技术分析,仅供欣赏学习。
2.本资料为要约邀请,不视为要约,所有政府、政策信息均来源于官方披露信息,具体以实物、政府主管部门批准文件及买卖双方签订的商品房买卖合同约定为准。如有变化恕不另行通知。
3.因编辑需要,文字和图片无必然联系,仅供读者参考;
—— 作品展示、直播、
访谈、
招聘
——
搜建筑·矩阵平台
合作、宣传、投稿
联系
推荐一个
专业的地产+建筑平台
每天都有新内容
客服
消息
收藏
下载
最近





























